plackos pisze:Tomasz_Brzeczkowski pisze:plackos pisze:Witam .
Zakladalem cos z Teslagreen . Wyjścia pionowe przez strop na strych i tam "bałagan".
Centrala usytuowana w garażu w kącie dedykowanym urządzeniu.
Pawel
airpack 200 czy 300?
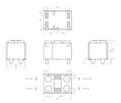
Panie Tomaszu Tesla green 300 .
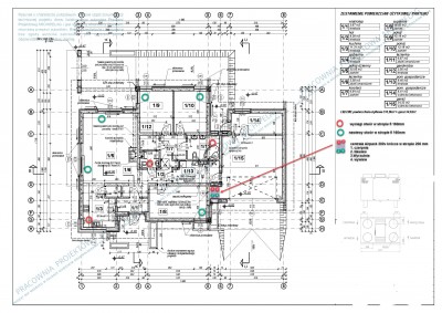
Teraz budują mi się ściany i za chwilę będzie wylewany strop . Chciałbym poprawnie wyznaczyć lokalizacje otworów dla anemostatów. :
1. Które pomieszczenia uwzglednić
2. Jakie lokalizacje w konkretnym pomieszczeniu wybrać (okolice okna (?) , środek pomieszcenia (?) .
3. Jakie odległości od ścian ?
Za chwile bede miał problem ze wskazaniem majstrom

proszę o pomoc.
Paweł
Dodam jeszcze kilka mam nadzieje cennych informacji :
-> Dom będzie ogrzewany gazem
-> przewiduje w kuchni uzywać kuchenki gazowej
-> W domu będzie w ogrzewanie podłogowe z wyłączeniem spiżarni kotłowni i garażu.
-> Nie przewiduje kominka zlikwidowałem
-> Strych (pokrycie dachu nie bedzie ocieplone) -- przewiduje ocieplenie stropu.
Planuję centrale wentylacyjną TeslaGreen Airpack 300v
W załączeniu dałem swoj projekt rozmieszczenia utworów w pomieszczeniach . Proszę o sugestie i czy to dobre rozwiązanie i proszę o skorygowanie błędów . Dla otworów w pomieszczeniach użytkowych przewidziałem średnice w stropie 160mm dla otworów doprowadzających do centrali średnice 200mm . Nie wiem za bardzo jak podejśc do otworów WYRZUTNIA/CZERPNIA czy optymalnie i prawidłowo jest wyprowadzić je bezposrednio na dach , czy też może w elewacji bocznej pod zadaszeniem . Zamieszczam w załaczniku stosowne zrzuty. Z góry dziekuje za odpowiedź.