Tomasz_Brzeczkowski pisze:Nie bardzo rozumiem. Instalacja HVACPV jest tańsza od gazowej czy weglowej, nie wymaga dodatkowego przyłącza , bo prąd i tak musi być. Jakie ograniczenia?Jeśli chodzi o ogrzewanie ma Pan racje tylko mam troche ograniczone mozliwości. Może Pan odsunąć .Problemu z wykonaniem otworu w stropie nie ma jeśłi chodzi o pomiesczenia użytkowe. Tylko trochę martwi mnie agregacja otworów "zasilających" , "odprowadzajacych" w stropie nad miejscem gdzie będzie stała centrala. 4x 200mm w małej odległosci. Co do wyrzutni rozumiem i pewnie "przebiję" się przez dach chociaż mi to nie bardzo pasuje
Tak nie za bardzo moge rozsunąć/odsunąc od siebie.
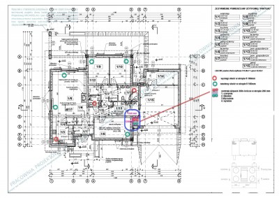
Rekuperator jest przewidziany we wnęce garażu . Wnęka należy już konstrukcyjnie wg stropu do bryły budynku głównego nie garażu i ma ograniczone wymiary . Pewnie tak zrobie maksymalnie jak Pan sugeruje ale łatwo nie bedzie.
W załaczniku dałem zrzut poglądowy jak to jest . Po południu dorzucę zdjęcie tego miejsca.
Jeśli chodzi o instalacje ciepła no to chyba drożej wyjdzie pana rozwiązanie . wiem że w czasie uzytkowania te koszty inaczej wychodza ale te startowe kwoty mnie w tej chwili blokują. aha prosze jeszcze raz spojrzec na drugi zrzut z usytuowaniem czerpni i wyrzutni.
Co Pan o tym myśli.



