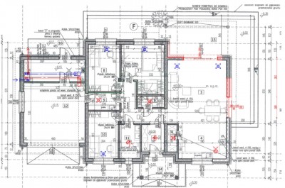
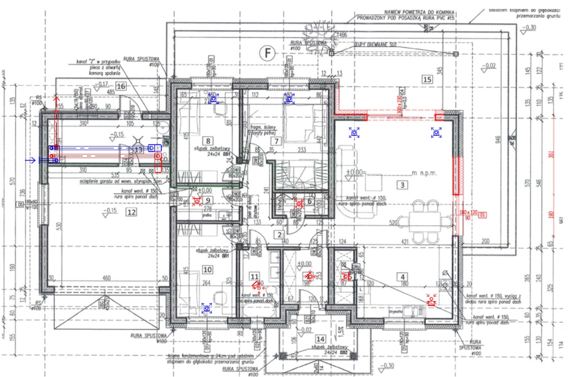
Umiejscowienie anenostatów
Moderator: Redakcja e-instalacje.pl
-
Sylwek1991
- Początkujący

- Posty: 2
- Rejestracja: 24 lis 2024, 17:42
-
Tomasz_Brzeczkowski
- Superużytkownik

- Posty: 24712
- Rejestracja: 16 mar 2006, 13:07
- Lokalizacja: Warszawa
Re: Umiejscowienie anenostatów
Tak zrobiona instalacja nie będzie skuteczna, Nie zapewni nawet niskiej jakości powietrza w pokojach. Jest za dużo anemostatów i za długie kanały.
By do Pana sypialni trafiło minimum 2x30m3/h centrala nocą musiałby pracować na wietrzeniu 360m3/h, To bardzo drogo i głośno.
Poza tym kanały są za długie a więc i opory instalacji będą duże.
Jakiś oszołom zrobił Panu "projekt" pod zestaw z allegro.
By do Pana sypialni trafiło minimum 2x30m3/h centrala nocą musiałby pracować na wietrzeniu 360m3/h, To bardzo drogo i głośno.
Poza tym kanały są za długie a więc i opory instalacji będą duże.
Jakiś oszołom zrobił Panu "projekt" pod zestaw z allegro.
rekuperacja od 1989r
-
Sylwek1991
- Początkujący

- Posty: 2
- Rejestracja: 24 lis 2024, 17:42
Re: Umiejscowienie anenostatów
Czyli idąc Pana tokiem myślenia to jedyne rozwiązanie to umiejscowić rekuperator na poddaszu w centrum domu?
-
Tomasz_Brzeczkowski
- Superużytkownik

- Posty: 24712
- Rejestracja: 16 mar 2006, 13:07
- Lokalizacja: Warszawa
Re: Umiejscowienie anenostatów
Instalacji nie robi się na poddaszu. Kanały mają być krótkie na ile to możliwe ale nie muszą być równe. Anemostaty naprzeciwko okien i NAWIEW KIEROWANY.Sylwek1991 pisze:Czyli idąc Pana tokiem myślenia to jedyne rozwiązanie to umiejscowić rekuperator na poddaszu w centrum domu?
Pan policzy dodając wydatek na poszczególnych anemostatach, na ilu mysi pracować centrala , by do Pana sypialni trafiło 60m3/h.
To co Pan ma to nie wentylacja w próba oszukania Pana.
rekuperacja od 1989r
Re: Umiejscowienie anenostatów
Dobrze radzę nie słuchać tego oszołoma ma bana na innych forach właśnie za oszustwa.
Tomasz_Brzeczkowski pisze:Przyczyną smogu w Polsce jest wentylacja grawitacyjna