Sam robię wentylację mechaniczną
Moderator: Redakcja e-instalacje.pl
Re: Sam robię wentylację mechaniczną
Jest Pan pierwszą osobą, z którą cokolwiek można w tym temacie porozmawiać.
Rozumiem o co Panu chodzi.
Jeśli chodzi o kanały to są to rury pe 50mm z powłoką ag. Całość nie kosztowała mnie wiele dlatego wolałbym o tym nie rozmawiać bo spokojnie w kwotach które Pan podał jestem w stanie się zamknąć razem z centralą. Czyli wychodzi na to, że ilość przewodów które będą doprowadzane do slrzynek rozprężnych pomieszczeń są w porządku a problemem może okazać się centrala. Jeśli majac centralę na oku 550 m3/h, która chodziłaby na 30% daje nam to wartość ~ 150 m3/h a to połowa wartości, która została obliczona. Tak więc aby to działało należałoby okroić nieco ilość przewodów szczególnie wywiewów. No i tych nawiewów. Tylko czy bedzie to skuteczne?
Jeśli chodzi o instalację wykonuje ją sam cały montaż. Projekt był raczej tylko do podglądu jak ktoś to by zaproponował jak to zrobić a w rzeczywistości i tak sam tyczyłem sobie trasy i wybierałem i dobierałem wszystko to co mi potrzebne i dostosowane do swoich warunków.
Rozumiem o co Panu chodzi.
Jeśli chodzi o kanały to są to rury pe 50mm z powłoką ag. Całość nie kosztowała mnie wiele dlatego wolałbym o tym nie rozmawiać bo spokojnie w kwotach które Pan podał jestem w stanie się zamknąć razem z centralą. Czyli wychodzi na to, że ilość przewodów które będą doprowadzane do slrzynek rozprężnych pomieszczeń są w porządku a problemem może okazać się centrala. Jeśli majac centralę na oku 550 m3/h, która chodziłaby na 30% daje nam to wartość ~ 150 m3/h a to połowa wartości, która została obliczona. Tak więc aby to działało należałoby okroić nieco ilość przewodów szczególnie wywiewów. No i tych nawiewów. Tylko czy bedzie to skuteczne?
Jeśli chodzi o instalację wykonuje ją sam cały montaż. Projekt był raczej tylko do podglądu jak ktoś to by zaproponował jak to zrobić a w rzeczywistości i tak sam tyczyłem sobie trasy i wybierałem i dobierałem wszystko to co mi potrzebne i dostosowane do swoich warunków.
-
Tomasz_Brzeczkowski
- Superużytkownik

- Posty: 24712
- Rejestracja: 16 mar 2006, 13:07
- Lokalizacja: Warszawa
Re: Sam robię wentylację mechaniczną
Jak wykonać wentylację mechaniczną z odzyskiem ciepła.
Wentylacja mechaniczna z odzyskiem ciepła jest bardzo prosta w wykonaniu i może być tańsza od poprawnie (o ile to w ogóle możliwe) wykonanej tzw. wentylacji grawitacyjnej.
1- obliczeń i wybór centrali.
Komfortowa wentylacja to 20 do 30m3/h na osobę. W okresie grzewczym, by nie przesuszać powietrza, ustawiamy sobie strumień w dolnej części „komfortu” . Optymalna praca współczesnych central to okolice 30% wydatku. Czyli na dwie osoby, centrala około 200m3/h, na 2-4 około 300m3/h na 5 -6 to 400m3/h. ( Warto tu przy[pomnieć, że wentylacja jest dla ludzi, nie kubatury! )
Gdy już wiemy jakiej centrali szukać, kolejną kwestią jest cena . Domowe centrale zaczynają się od (ceny podawane są brutto 23% i są to ceny zakupu, nie z katalogu. ) 2500 zł . Ceny central z ponad 80% odzyskiem ciepła i wentylatorami EC (bardzo mały pobór przy pracy na 30%) zaczynają się od 4000zł .
Nawet najtańsza centrala będzie lepsza od wentylacji grawitacyjnej!
2- Po wybraniu centrali dopasowanej do ilości osób i możliwości finansowych, bierzemy się za dystrybucję.
Wentylację domową rozprowadza się elastycznymi kanałami miękkimi lub twardymi (PE75) , kanały twarde są dedykowane do zalewania na stropie.
- radzę unikać kanałów gładkich wewnątrz, mogą zwiększać opór przepływu i poziom szumów
Rozdzielacz wywiewny i nawiewny powinny mieć wejście dokładnie takie jak centrala.
Ilość kanałów odchodzących od rozdzielacza. Powietrze w kanałach nie powinno zbytnio rozprężać, dlatego suma pól przekrojów kanałów odchodzących od rozdzielacza, może być większa maksymalnie o 20% od pola powierzchni kanału głównego .
Żaden kanał powyżej optimum, nie zwiększy strumienia wentylacyjnego!!
W praktyce, dla kanałów PE75 – centrala z wyjściem 125mm to rozdzielacz 5-6x75 160mm 7-8 x75 200mm 10-12.
Nawiew – Nawiew należy skierować głównie na sypialnie, przebywamy tam najdłużej, uczymy się, czytamy. To wszystko wymaga większej ilości tlenu. Poza tym, trzeba uwzględnić zamknięte drzwi. Nawet odpowiednio podcięte zwiększają opór przepływu. Nawiew w salonie należy robić niewielki, tam miedzy wywiewem w kuchni, nie ma drzwi!!! Gdy rodzina siedzi w salonie, to z pokoi wychodzi świeże powietrze, więc problemów nie ma.
Gdzie umieszczać nawiewy? Nawiewy umieszczamy na suficie lub w ścianie jak najbliżej sufitu. Miejsce w pokoju nie ma znaczenia. Wentylacja wymienia powietrze co kilka godzin, dyfuzja ( wyrównanie ciśnienia cząsteczkowego składowych powietrze ) trwa sekundy. Gdy wydychamy CO2 i H2O to przybywa go równo w całym pokoju i domu a nie wkoło nas, podobnie jest z nawiewem świeżego powietrza, rozchodzi się to po całym pokoju.
Wywiew- Łazienki wymagają 50m3/h , więc właściwie cały wywiew odbywa się przez łazienki. Kuchnia to 30m3/h – wiec przy kanałach PE75 i pamiętając, ze tu pomiędzy nawiewem a wywiewem nie ma drzwi, dajemy 1x75!!! Większa ilość kanałów „zabierze” powietrza z sypialni !!.
Przykładowy rozdział do domu salon + gabinet +4 sypialnie dwie łazienki , dla czterech osób i centrali z wyjściem 200mm
Nawiew- Sypialnia podwójna 3x75 pojedyncze 2x75 sypialnia dla gościa 1x75 , gabinet i salon po 2x75
Wywiew- główna łazienka 160/6x75 druga 160/5x75 i kuchnia 100/1x75
Bilans
Nawiew =wywiew
Nawiew 4 x 30m3/h = 120m3 Wywiew 50m3/h łazienka 40m3/h łazienka 30m3/h kuchnia.
Wentylacja mechaniczna z odzyskiem ciepła jest bardzo prosta w wykonaniu i może być tańsza od poprawnie (o ile to w ogóle możliwe) wykonanej tzw. wentylacji grawitacyjnej.
1- obliczeń i wybór centrali.
Komfortowa wentylacja to 20 do 30m3/h na osobę. W okresie grzewczym, by nie przesuszać powietrza, ustawiamy sobie strumień w dolnej części „komfortu” . Optymalna praca współczesnych central to okolice 30% wydatku. Czyli na dwie osoby, centrala około 200m3/h, na 2-4 około 300m3/h na 5 -6 to 400m3/h. ( Warto tu przy[pomnieć, że wentylacja jest dla ludzi, nie kubatury! )
Gdy już wiemy jakiej centrali szukać, kolejną kwestią jest cena . Domowe centrale zaczynają się od (ceny podawane są brutto 23% i są to ceny zakupu, nie z katalogu. ) 2500 zł . Ceny central z ponad 80% odzyskiem ciepła i wentylatorami EC (bardzo mały pobór przy pracy na 30%) zaczynają się od 4000zł .
Nawet najtańsza centrala będzie lepsza od wentylacji grawitacyjnej!
2- Po wybraniu centrali dopasowanej do ilości osób i możliwości finansowych, bierzemy się za dystrybucję.
Wentylację domową rozprowadza się elastycznymi kanałami miękkimi lub twardymi (PE75) , kanały twarde są dedykowane do zalewania na stropie.
- radzę unikać kanałów gładkich wewnątrz, mogą zwiększać opór przepływu i poziom szumów
Rozdzielacz wywiewny i nawiewny powinny mieć wejście dokładnie takie jak centrala.
Ilość kanałów odchodzących od rozdzielacza. Powietrze w kanałach nie powinno zbytnio rozprężać, dlatego suma pól przekrojów kanałów odchodzących od rozdzielacza, może być większa maksymalnie o 20% od pola powierzchni kanału głównego .
Żaden kanał powyżej optimum, nie zwiększy strumienia wentylacyjnego!!
W praktyce, dla kanałów PE75 – centrala z wyjściem 125mm to rozdzielacz 5-6x75 160mm 7-8 x75 200mm 10-12.
Nawiew – Nawiew należy skierować głównie na sypialnie, przebywamy tam najdłużej, uczymy się, czytamy. To wszystko wymaga większej ilości tlenu. Poza tym, trzeba uwzględnić zamknięte drzwi. Nawet odpowiednio podcięte zwiększają opór przepływu. Nawiew w salonie należy robić niewielki, tam miedzy wywiewem w kuchni, nie ma drzwi!!! Gdy rodzina siedzi w salonie, to z pokoi wychodzi świeże powietrze, więc problemów nie ma.
Gdzie umieszczać nawiewy? Nawiewy umieszczamy na suficie lub w ścianie jak najbliżej sufitu. Miejsce w pokoju nie ma znaczenia. Wentylacja wymienia powietrze co kilka godzin, dyfuzja ( wyrównanie ciśnienia cząsteczkowego składowych powietrze ) trwa sekundy. Gdy wydychamy CO2 i H2O to przybywa go równo w całym pokoju i domu a nie wkoło nas, podobnie jest z nawiewem świeżego powietrza, rozchodzi się to po całym pokoju.
Wywiew- Łazienki wymagają 50m3/h , więc właściwie cały wywiew odbywa się przez łazienki. Kuchnia to 30m3/h – wiec przy kanałach PE75 i pamiętając, ze tu pomiędzy nawiewem a wywiewem nie ma drzwi, dajemy 1x75!!! Większa ilość kanałów „zabierze” powietrza z sypialni !!.
Przykładowy rozdział do domu salon + gabinet +4 sypialnie dwie łazienki , dla czterech osób i centrali z wyjściem 200mm
Nawiew- Sypialnia podwójna 3x75 pojedyncze 2x75 sypialnia dla gościa 1x75 , gabinet i salon po 2x75
Wywiew- główna łazienka 160/6x75 druga 160/5x75 i kuchnia 100/1x75
Bilans
Nawiew =wywiew
Nawiew 4 x 30m3/h = 120m3 Wywiew 50m3/h łazienka 40m3/h łazienka 30m3/h kuchnia.
rekuperacja od 1989r
-
Tomasz_Brzeczkowski
- Superużytkownik

- Posty: 24712
- Rejestracja: 16 mar 2006, 13:07
- Lokalizacja: Warszawa
Re: Sam robię wentylację mechaniczną
Zacząć trzeba od centrali.
Kanał PE 75 ma pole przekroju 31cm2 a PE75 14cm2 , musi więc ich być 2 x więcej
Do łazienek wywiewy przeważnie mają 4x75 , czyli przy PE50mm potrzeba by osiem kanałów do jednego anemostatu. Ma Pan takie redukcje 125/8x50?
Proszę do mnie zadzwonić.
Kanał PE 75 ma pole przekroju 31cm2 a PE75 14cm2 , musi więc ich być 2 x więcej
czyli przy centrali z fi 160 14-16 dla fi 200mm 20-24.W praktyce, dla kanałów PE75 – centrala z wyjściem 125mm to rozdzielacz 5-6x75 160mm 7-8 x75 200mm 10-12.
Do łazienek wywiewy przeważnie mają 4x75 , czyli przy PE50mm potrzeba by osiem kanałów do jednego anemostatu. Ma Pan takie redukcje 125/8x50?
Proszę do mnie zadzwonić.
rekuperacja od 1989r
Re: Sam robię wentylację mechaniczną
Witam. Mam dom z poddaszem. Parter to kuchnia otwarta z salonem, sypialnia, łazienka i pomieszczenie gospodarcze w którym będzie piec gazowy i pralnia. Poddasze to trzy pokoje i łazienka z której jest przejscie do mniejszego pomieszczenia w którym będzie rekuperator i może też jakaś pralka. Mój plan to kuchnia 1x75, salon 3, sypialnia 3, łazienka 5, pokoje na górze po 2 i na łazienkę zostaje 6. Pytanie czy w pomieszczeniu gospodarczym, gdzie jest piec gazowy też mam dać wywiew, czy robić wentylację grawitacyjną?
-
klaudia844
- Aktywny

- Posty: 147
- Rejestracja: 06 cze 2016, 9:57
Re: Sam robię wentylację mechaniczną
A kanały wentylacyjne gdzie kupowaliście? Kupował ktoś od producenta PS System?
-
TW Arizona
- Początkujący

- Posty: 2
- Rejestracja: 11 lut 2021, 9:30
Re: Sam robię wentylację mechaniczną
Witam
Widzę, że wątek poszedł trochę w zapomnienie ale może uda się go reaktywować za sprawą mojego przypadku.
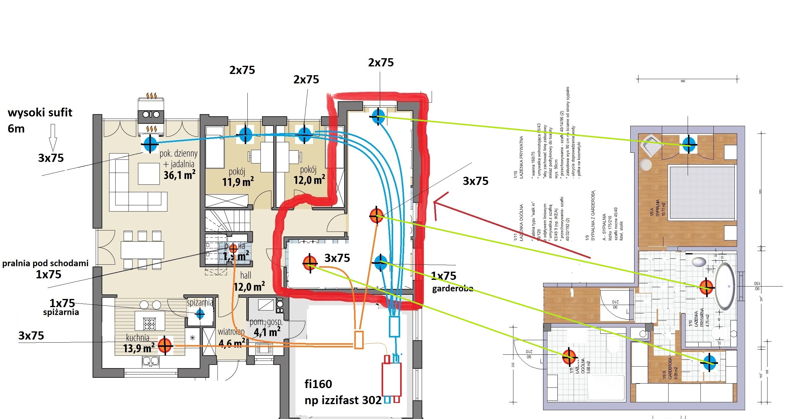
Standardowo... buduję dom i przymierzam się do wykonania instalacji rekuperacji i klimatyzacji kanałowej. Jest to dom parterowy ( projekt Arizona z DobreDomy) z poddaszem użytkowym. Salon z jadalnią ( 36m2) mają wysoki sufit, łagodnie opadający
na antresolę poddasza. Na poddaszu wspomniana już antresola plus 2 pokoje i jedno pomieszczenie, w którym zapewne zrobię mały kibelek. Za kibelkiem pomieszczenie nad garażem ( h~130cm), w którym zamierzam umieścić rekuperator i jedną z jednostek wewnętrznych klimatyzacji kanałowej. Całe poddasze będzie docieplone. Około 20cm płyta PIR pomiędzy krokwie plus co tam jeszcze wejdzie pod zabudowę KG.
Strop jest drewniany. Na chwilę obecną na belkach stropowych przykręcona jest jedna warstwa płyt OSB 22. Po wykonaniu wszystkich potrzebnych instalacji, planuję nabić na tą warstwę legary ~8cm, wypełnić wszystko wełną i przykryć deską 22mm. Przestrzeń w obrębie wieńca, której nie da się zagospodarować, będzie do wykorzystania jako miejsce prowadzenia kanałów wentylacyjnych.
Całość myślałem zrobić na PE-FLEXach 75mm bo część rur mogę zmieścić w podłodze.
Na rysunku ( moja wesoła twórczość w Paint`cie) oznaczyłem punkty instalacyjne i ile rur jest do nich podłączonych. Z racji wysokiego sufitu w salonie, chcę tam zamontować kratkę nawiewną i podłączyć 3x75. Okazjonalnie pewnie odpalana będzie koza kaflowa więc warto rozgonić nagromadzone pod sufitem gorące powietrze.
Problem pojawia się przy klimatyzacji kanałowej. Wstępnie myślałem o dwóch jednostkach 3,5kW każda. Jedna miałaby obsługiawć 3 sypialnie na parterze i 2 pokoje na poddaszu ( 2x 1x75). Druga jednostka, zamontowana w przestrzeni nad kuchnią, obsługiwałaby salon z jadalnią ( dysze dalekiego zasięgu).
Jak połączyć te dwie instalacje, żeby nie zakłócić cyrkulacji powietrza w domu?
W którym miejscu zlokalizować kratki wywiewne ( powrotne) dla klimatyzatorów ( hall , pom. gospodarcze)?
Zapomniałem dodać: powierzchnia po podłodze parteru około 128m2, poddasze około 30m2. Mieszkańcy 2+1.
Widzę, że wątek poszedł trochę w zapomnienie ale może uda się go reaktywować za sprawą mojego przypadku.
Standardowo... buduję dom i przymierzam się do wykonania instalacji rekuperacji i klimatyzacji kanałowej. Jest to dom parterowy ( projekt Arizona z DobreDomy) z poddaszem użytkowym. Salon z jadalnią ( 36m2) mają wysoki sufit, łagodnie opadający
Strop jest drewniany. Na chwilę obecną na belkach stropowych przykręcona jest jedna warstwa płyt OSB 22. Po wykonaniu wszystkich potrzebnych instalacji, planuję nabić na tą warstwę legary ~8cm, wypełnić wszystko wełną i przykryć deską 22mm. Przestrzeń w obrębie wieńca, której nie da się zagospodarować, będzie do wykorzystania jako miejsce prowadzenia kanałów wentylacyjnych.
Całość myślałem zrobić na PE-FLEXach 75mm bo część rur mogę zmieścić w podłodze.
Na rysunku ( moja wesoła twórczość w Paint`cie) oznaczyłem punkty instalacyjne i ile rur jest do nich podłączonych. Z racji wysokiego sufitu w salonie, chcę tam zamontować kratkę nawiewną i podłączyć 3x75. Okazjonalnie pewnie odpalana będzie koza kaflowa więc warto rozgonić nagromadzone pod sufitem gorące powietrze.
Problem pojawia się przy klimatyzacji kanałowej. Wstępnie myślałem o dwóch jednostkach 3,5kW każda. Jedna miałaby obsługiawć 3 sypialnie na parterze i 2 pokoje na poddaszu ( 2x 1x75). Druga jednostka, zamontowana w przestrzeni nad kuchnią, obsługiwałaby salon z jadalnią ( dysze dalekiego zasięgu).
Jak połączyć te dwie instalacje, żeby nie zakłócić cyrkulacji powietrza w domu?
W którym miejscu zlokalizować kratki wywiewne ( powrotne) dla klimatyzatorów ( hall , pom. gospodarcze)?
Zapomniałem dodać: powierzchnia po podłodze parteru około 128m2, poddasze około 30m2. Mieszkańcy 2+1.
-
Tomasz_Brzeczkowski
- Superużytkownik

- Posty: 24712
- Rejestracja: 16 mar 2006, 13:07
- Lokalizacja: Warszawa
Re: Sam robię wentylację mechaniczną
Przed wszystkim nawiewy wentylacji i klimatyzacji robi się naprzeciwko okien, lub dalej od okien. Chodzi o to, żeby nie tworzyć chłodnej strefy przy oknie oraz by nie ciągnąć tak długich kanałów (peflex doradza źle, by sprzedać jak najwięcej) . Inwerter instaluje się 30W/m2, więc 2 x 3.5 kW jest zdecydowanie za dużo, będzie tektowanie (praca on/off)
rekuperacja od 1989r
-
TW Arizona
- Początkujący

- Posty: 2
- Rejestracja: 11 lut 2021, 9:30
Re: Sam robię wentylację mechaniczną
u mnie niestety klimatyzator nie wejdzie pod sufit bo belki stropowe na to nie pozwalają. Zostaje tylko montaż na poddaszu i pociągnięcie kanałów dystrybucyjnych po obwodzie budynku, w okolicy murłaty.
Powietrze z klimatyzatora również można dystrybuować rurami typu pe flex fi75 ( z użyciem skrzynek rozdzielczych) czy lepiej użyć przewodów sonoduct 68 od rozdzielacza na klimatyzatorze do anemostatu?
Panie Tomaszu, na zdjęciu prezentowany jest reku WS 170 firmy Maico. Jaki jest koszt takiego reku i czy dobrze się sprawują? Pytam bo mało o nich się pisze w polskim internecie.
Z tego co pokazują w folderze reklamowym, faktycznie nadmuch powietrza zlokalizowany jest naprzeciw okien ale zamiast anemostatu zastosowano dyszę dalekiego zasięgu umiejscowioną nie w suficie a na ścianie bocznej?
Skoro faktycznie klimatyzatory 3,5kW mogą taktować, to najsłabsza jednostka jaką znalazłem ( na szybko) to Mitsubishi SRC25ZS-W1- jednostka wewnętrzna SRR25ZS-W. Nada się?
Powietrze z klimatyzatora również można dystrybuować rurami typu pe flex fi75 ( z użyciem skrzynek rozdzielczych) czy lepiej użyć przewodów sonoduct 68 od rozdzielacza na klimatyzatorze do anemostatu?
Panie Tomaszu, na zdjęciu prezentowany jest reku WS 170 firmy Maico. Jaki jest koszt takiego reku i czy dobrze się sprawują? Pytam bo mało o nich się pisze w polskim internecie.
Z tego co pokazują w folderze reklamowym, faktycznie nadmuch powietrza zlokalizowany jest naprzeciw okien ale zamiast anemostatu zastosowano dyszę dalekiego zasięgu umiejscowioną nie w suficie a na ścianie bocznej?
Skoro faktycznie klimatyzatory 3,5kW mogą taktować, to najsłabsza jednostka jaką znalazłem ( na szybko) to Mitsubishi SRC25ZS-W1- jednostka wewnętrzna SRR25ZS-W. Nada się?
Re: Sam robię wentylację mechaniczną
Dzień dobry,
Panowie, jestem po montażu rekuperacji na pe-flex z projektu wyszło mi zapotrzebowanie 280m3 nawiew/wywiew. Rekuperator to nibe GV HR 120-500.
https://www.nibe.eu/assets/documents/23486/331805-2.pdf
Kupiłem na allegro prosty anemometr zrobiłem cylinder z rury fi160 wyciąłem otwór na anemometr i dokonałem pomiarów. na prędkości wentylatorów 30% miałem prędkości od 2,7 do 1,3 m/s, wychodzi mi 10% więcej nawiewu, więc zamontowałem przepustnice z gąbki oraz zmniejszyłem prędkość nawiewu i teraz jest zbilansowane, ale wyszło po przeliczeniu suma wszystkich prędkości x PI x R2 (otworu) x 3600 mam 60m3/h więc mało
dużo brakuje do wymaganych i tak mam problem, gdyż po zwiększeniu prędkości 55%(wyciąg)/45% dochodzę do wydajności zaledwie 100m3/h coś mi tutaj nie pasuje, gdyż do osiągnięcia założonej ilości może mi nie starczyć prędkości w reku (?).
Maksymalna wartość przepływu dla tej jednostki to 420m3/ więc zapas jest..
Tak więc coś nie tak z anemometrem, moją tubą, obliczeniami??
Panowie, jestem po montażu rekuperacji na pe-flex z projektu wyszło mi zapotrzebowanie 280m3 nawiew/wywiew. Rekuperator to nibe GV HR 120-500.
https://www.nibe.eu/assets/documents/23486/331805-2.pdf
Kupiłem na allegro prosty anemometr zrobiłem cylinder z rury fi160 wyciąłem otwór na anemometr i dokonałem pomiarów. na prędkości wentylatorów 30% miałem prędkości od 2,7 do 1,3 m/s, wychodzi mi 10% więcej nawiewu, więc zamontowałem przepustnice z gąbki oraz zmniejszyłem prędkość nawiewu i teraz jest zbilansowane, ale wyszło po przeliczeniu suma wszystkich prędkości x PI x R2 (otworu) x 3600 mam 60m3/h więc mało
Maksymalna wartość przepływu dla tej jednostki to 420m3/ więc zapas jest..
Tak więc coś nie tak z anemometrem, moją tubą, obliczeniami??
-
Tomasz_Brzeczkowski
- Superużytkownik

- Posty: 24712
- Rejestracja: 16 mar 2006, 13:07
- Lokalizacja: Warszawa
Re: Sam robię wentylację mechaniczną
Wentylację liczy się 30m3/h na osobę, 280m3/h to na 9 osób.
Nie da się pomierzyć wydatku na poszczególnych anemostatach, przy rozdzielaczu.
By wentylacja działała poprawnie główne wywiewy powinny być w łazienkach i mały w kuchni. Nie może być wywiewów w ciągu komunikacyjnym, garderobie czy spiżarni.
Nie da się pomierzyć wydatku na poszczególnych anemostatach, przy rozdzielaczu.
By wentylacja działała poprawnie główne wywiewy powinny być w łazienkach i mały w kuchni. Nie może być wywiewów w ciągu komunikacyjnym, garderobie czy spiżarni.
rekuperacja od 1989r
Re: Sam robię wentylację mechaniczną
Witam,
Ok, w takim wypadku przy przyjęciu z projektu bilansu wywiew-nawiew i otwarciu anemostatów na ten sam poziom zawsze będzie bilans? Czytałem kilka postów, Pan wychodzi z założenia projektowego bez dalszego ustawiania niestety przy krótkich odcinkach wydaje mi się, że prędkości będą większe i tak wychodziło mi że w salonie było więcej nawiewu niż na wyciągach z kuchni, założenie projektowe to bilans na 0 dla tych kanałów rury 2x2szt 75 peflex nawiew i 2x2szt wyciągu 75 peflex w salonie są dysze dalekiego zasięgu
Ok, w takim wypadku przy przyjęciu z projektu bilansu wywiew-nawiew i otwarciu anemostatów na ten sam poziom zawsze będzie bilans? Czytałem kilka postów, Pan wychodzi z założenia projektowego bez dalszego ustawiania niestety przy krótkich odcinkach wydaje mi się, że prędkości będą większe i tak wychodziło mi że w salonie było więcej nawiewu niż na wyciągach z kuchni, założenie projektowe to bilans na 0 dla tych kanałów rury 2x2szt 75 peflex nawiew i 2x2szt wyciągu 75 peflex w salonie są dysze dalekiego zasięgu
-
Tomasz_Brzeczkowski
- Superużytkownik

- Posty: 24712
- Rejestracja: 16 mar 2006, 13:07
- Lokalizacja: Warszawa
Re: Sam robię wentylację mechaniczną
Dysze są do klimy, nie wentylacji. Wywiewy wiecej jak 1x75 w kuchni i poza łazienkami, wykluczają na ogół zbilansowanie wentylacji, przy normatywnym nawiewie 30m3/h na osobę. Przez łazienki najlepiej jak wyjdzie 50m3/h kuchnia 30m3/h . uwzględniając zamknięte drzwi w sypialniach i łazienkach, w łazience musi być 3-5x75. Należy też pamiętać, że im mniejsze pomieszczenie tym silniejszy strumień.skk123 pisze:Witam,
Ok, w takim wypadku przy przyjęciu z projektu bilansu wywiew-nawiew i otwarciu anemostatów na ten sam poziom zawsze będzie bilans? Czytałem kilka postów, Pan wychodzi z założenia projektowego bez dalszego ustawiania niestety przy krótkich odcinkach wydaje mi się, że prędkości będą większe i tak wychodziło mi że w salonie było więcej nawiewu niż na wyciągach z kuchni, założenie projektowe to bilans na 0 dla tych kanałów rury 2x2szt 75 peflex nawiew i 2x2szt wyciągu 75 peflex w salonie są dysze dalekiego zasięgu
PEflex to firma gdzie projektują chyba największe tumany branży
Gdy puścimy zaprojektowany strumień , to centrala zużyje 1500kWh rocznie, czyli tyle ile ogrzewanie mojej przedwojennej stodoło 100m2 ... czy głupota nie odzysk ciepła,
Jak ustawimy zgodny z polska normą nawiew na cztery osoby 100-120m3/h , przy zamkniętych drzwiach w łazienkach i sypialniach, całe powietrze poleci z salonu do kuchni i holu.
rekuperacja od 1989r
Re: Sam robię wentylację mechaniczną
Witam. Co tu taka cisza ostatnio?;) Mam takie pytanko... Czy ktoś z Was korzystał czy zakładał u siebie reku firmy ECS Piotr Paruszewski? Zastanawiam się nad ich systemem. Tanie centrale, tanie filtry, dużo filmów na youtube. Wydaje się, że wszystko jest w najlepszym porządku, chyba, że gdzieś jest haczyk? Ktoś się wypowie? Pozdrawiam.
-
Tomasz_Brzeczkowski
- Superużytkownik

- Posty: 24712
- Rejestracja: 16 mar 2006, 13:07
- Lokalizacja: Warszawa
Re: Sam robię wentylację mechaniczną
Drogo i źle.
Fatalne projekty wykluczające poprawną pracę wentylacji.
Wymienniki w centralach wymagające modulowanej grzałki do rozmrażania a grzałka on/off
Centrale z AC i tyrystorem dość szybko się rozlecą.
Poprawnie wykonana i cicha instalacja nie jest tak droga.
Fatalne projekty wykluczające poprawną pracę wentylacji.
Wymienniki w centralach wymagające modulowanej grzałki do rozmrażania a grzałka on/off
Centrale z AC i tyrystorem dość szybko się rozlecą.
Poprawnie wykonana i cicha instalacja nie jest tak droga.
rekuperacja od 1989r
Re: Sam robię wentylację mechaniczną
No właśnie zauważyłem, że całkiem inna koncepcja niż ta, którą Pan proponuje. A co Pan uważa na temat rur Spektra 1000, które poleca Paruszewski? I czy rzeczywiście warto iść w średnicę 90? Jaką centralę reku warto brać pod uwagę dla domku parterowego 75mkw i 4 osób? Będzie w ocieplonym pomieszczeniu gospodarczym.Tomasz_Brzeczkowski pisze:Drogo i źle.
Fatalne projekty wykluczające poprawną pracę wentylacji.
Wymienniki w centralach wymagające modulowanej grzałki do rozmrażania a grzałka on/off
Centrale z AC i tyrystorem dość szybko się rozlecą.
Poprawnie wykonana i cicha instalacja nie jest tak droga.