P.S."Prekursor" z firmą w szopie, nie przyznajacy się do montażu swoich wydumek, patrz VAT 23%
Podłączenie rekuperatora parter/ poddasze jak prawidłowo to zrobić
Moderator: Redakcja e-instalacje.pl
Re: Podłączenie rekuperatora parter/ poddasze jak prawidłowo to zrobić
To niech już oceni zainteresowany, kto stara sie pomóc, a kto nieudolnie wciska swoje usługi.
P.S."Prekursor" z firmą w szopie, nie przyznajacy się do montażu swoich wydumek, patrz VAT 23%
P.S."Prekursor" z firmą w szopie, nie przyznajacy się do montażu swoich wydumek, patrz VAT 23%
Re: Podłączenie rekuperatora parter/ poddasze jak prawidłowo to zrobić
W tym pomoże Ci salon meblowy Meble Blackart kupowałam u nich meble kuchenne na wymiar i jestem zadowolona, doradzili jak mogli
Re: Podłączenie rekuperatora parter/ poddasze jak prawidłowo to zrobić
z tym wstawieniem w środek kanału trochę nie bardzo są już tynki na dole w salonie wystaje już rura fi125 pod anemostat więc musiał bym pruć sufit aby to wszystko połączyć.Kanał do salonu jest za duży. Rozpręży i nie bedzie dmuchać jak powinno
Może to uratować w taki sposób że potraktować ten parter oddzielnie czyli zrobię to sztywno rurą spiro (czyli ten nawiew na dół) oraz wywiew też sztywną rurą z parteru
a cała góra na tych elastycznych PE 75 dodatkowo zastosował bym przepustnicę aby wyregulować moc tego nawiewu
Czyli było by tak jak na nowym rysunku tylko zastanawiam się czy przepustnicy też nie przydałaby się na wywiewie z parteru.
Gdybym jeszcze rury puścił pod jętkami w pustce miedzy nimi a karton gipsem miał bym ładny strych gdzie tylko dwie rury by szły czyli ta główna do salonu na dół i wywiewna z parteru
Re: Podłączenie rekuperatora parter/ poddasze jak prawidłowo to zrobić
marcinx00, Rozdzialacz będziesz miał z wejściem fi160, czyli z reku lecisz fi200, montujesz odejście siodłowe na salon fi100, a za nim redukujesz rurę do rozdzielacza do 160.
Masz rację z przepustnicą na kanale. Ewentualnie tłumik piankowy przed anemostatem. Nie powinno "gwizdać".
Z wywiewem podobnie. Tylko za odejściem fi100 dałbym "portki" 100/2x80 i dalej taką średnicą do anemostatów. Wystarczy. Ponad 30m3/h przy 2 m/s wiaterku.
"Będzie Pan zdowolony..."
Masz rację z przepustnicą na kanale. Ewentualnie tłumik piankowy przed anemostatem. Nie powinno "gwizdać".
Z wywiewem podobnie. Tylko za odejściem fi100 dałbym "portki" 100/2x80 i dalej taką średnicą do anemostatów. Wystarczy. Ponad 30m3/h przy 2 m/s wiaterku.
"Będzie Pan zdowolony..."
Re: Podłączenie rekuperatora parter/ poddasze jak prawidłowo to zrobić
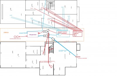
Cos w tę deseń jak narysowałem nie jestem pewny czy dobrze z tym wywiewem zrozumiałem oznaczyłem NR to czego nie jestem pewny :marcinx00, Rozdzialacz będziesz miał z wejściem fi160, czyli z reku lecisz fi200, montujesz odejście siodłowe na salon fi100, a za nim redukujesz rurę do rozdzielacza do 160.
Masz rację z przepustnicą na kanale. Ewentualnie tłumik piankowy przed anemostatem. Nie powinno "gwizdać".
Z wywiewem podobnie. Tylko za odejściem fi100 dałbym "portki" 100/2x80 i dalej taką średnicą do anemostatów. Wystarczy. Ponad 30m3/h przy 2 m/s wiaterku.
"Będzie Pan zdowolony..."
NR1 --- jakiej średnicy rura czy też fi 200 potem redukcja na 160 ale dopiero po odejściu siodłowym do skrzynki wywiewnej czy po całości fi 160
NR2 ---czy te odejście siodłowe ma być w tej kolejności w tym miejscu ??
NR3 --- czy te rury za portkami mają być fi 80 a później redukcja na większe bo piony które mam to fi 125 i fi 100
Teraz ogólnie chciałem jeszcze zapytać czy ta rura fi 100 która ma iść na salon za tym odejściem siodłowym i połaczyc sie z kanałem 200x90 nie będzie za mała ???
to samo czy wywiewne jeśli maja być zredukowane za portkami na 2x80 i połączone z istniejącymi rurami (pionami) większymi fi 100 i fi 125 będzie dobrze ?
A co w przypadku gdybym te rury dał większe np. zamiast 100 do salonu na dole np. 160
a do wywiewów np. te które są czyli 125 i 100
Ja się na tym nie znam ale fi 100 do salonu wydaje mi się strasznie mała tym bardziej ze to jedyny nawiew na parterze wiec liczę na twoja wiedzę ze będzie git
Re: Podłączenie rekuperatora parter/ poddasze jak prawidłowo to zrobić
Nie tak łatwo byłoby je tam wcisnąć na dole są już gotowe podejścia pod anemostaty fi 125 na strychu też podejścia już znitowane na gotowo kanał 90x200 ma na strychu podejście właśnie pod fi 160 wszystko ocieplone styropianem i zatynkowane.OK. cały czas chciałem Ci wcisnąć mniejsze średnice w istniejące kanały
Mam nadzieję, ze zrozumiałe,
ok wiem o co chodzi dzięki za schemacik
Podpowiedz mi tylko w którym miejscu na parter dać ta przepustnicę i czy na wywiewie też mam ja zastosować?
Rozumie że przed skrzynkami rozdzielczymi do rur miękkich PE już te przepustnice nie potrzebne (bo załatwią odpowiedni przepływ te idące w rurach na parter)
No i jeszcze wyraź swoje zdanie jak lepiej dać te rury PE pod jętkami w pustce między płytą GK czy na podłodze strychu?
Szczerz mówiąc wolał bym pod jętkami boje się tylko o skropliny chociaż pewna firma produkująca takie rury napisała mi że na tych rurach nie występuję takie zjawisko na filmach które oglądałem na YT wszyscy robią pod jętkami i nie izolują.
Re: Podłączenie rekuperatora parter/ poddasze jak prawidłowo to zrobić
Do przepustnic powinieneś mieć dostęp. Oczywiste. Najlepiej na strychu gdzieś pomiędzy końcem "mojego schematu" a wejście do pionów. Na nawiewie i wywiewie. W obu przypadkach jest za grubo. Przed rozdzielaczami nie trzeba.
PE-fleksy daj w pustkę. Nic nie powinno kapać.
PE-fleksy daj w pustkę. Nic nie powinno kapać.
Re: Podłączenie rekuperatora parter/ poddasze jak prawidłowo to zrobić
denvi jeszcze mam kilka pytań
1 do czerpni mam nietypową rurę fi 180 czy jeśli ta czerpnia taka jest nie przeszkadza że z reku mam wyjść fi 200
2 czy mam szukać reku który będzie miał wyjścia 200 czy jakieś redukcje robić
3 czy będzie różnica czy z wyjścia siodłowego w bok pójdę na skrzynki rozdzielcze a nie na piony istniejących kanałów parterowych
4 jaką grubość wełny zastosować
a) do czerpni będzie szła w pralni pod skosem sufitu na strych
b) do pozostałych rur metalowych nawiewnych idących na strychu ocieplonego po sam szczyt
c) do rur wywiewnych idących od rekuperatora do kominków które mam umieszczone w dachu
5 rozumie że PE-flexy w pustce nie ocieplać a czy skrzynki rozpężne i rozdzielcze też bez ocieplenia ?
6 czy lepiej kupić skrzynki rozpężne metalowe czy np. plastik a może metalowe wytłumione ?
7 czy stosować tłumiki za rekuperatorem (jakiej wielkości)
8 w jaki sposób po uruchomieniu całej instalacji sprawdzić wyregulować przepływ na przepustnicach czy jakimś specjalnym urządzeniem ?
9 czy dodatkowo stosować jakieś filtry w tej instalacji czy tylko to co będzie w rekuperatorze ?
1 do czerpni mam nietypową rurę fi 180 czy jeśli ta czerpnia taka jest nie przeszkadza że z reku mam wyjść fi 200
2 czy mam szukać reku który będzie miał wyjścia 200 czy jakieś redukcje robić
3 czy będzie różnica czy z wyjścia siodłowego w bok pójdę na skrzynki rozdzielcze a nie na piony istniejących kanałów parterowych
4 jaką grubość wełny zastosować
a) do czerpni będzie szła w pralni pod skosem sufitu na strych
b) do pozostałych rur metalowych nawiewnych idących na strychu ocieplonego po sam szczyt
c) do rur wywiewnych idących od rekuperatora do kominków które mam umieszczone w dachu
5 rozumie że PE-flexy w pustce nie ocieplać a czy skrzynki rozpężne i rozdzielcze też bez ocieplenia ?
6 czy lepiej kupić skrzynki rozpężne metalowe czy np. plastik a może metalowe wytłumione ?
7 czy stosować tłumiki za rekuperatorem (jakiej wielkości)
8 w jaki sposób po uruchomieniu całej instalacji sprawdzić wyregulować przepływ na przepustnicach czy jakimś specjalnym urządzeniem ?
9 czy dodatkowo stosować jakieś filtry w tej instalacji czy tylko to co będzie w rekuperatorze ?
Re: Podłączenie rekuperatora parter/ poddasze jak prawidłowo to zrobić
Na taką chatę to reku o nominalnej wydajności 250-300m3/h będzie potrzebny.
Te już mają przyłącza 200mm. Prawda, nie bedziesz gonił na najwyższych obrotach, pewnie na 50% i ta ciut mniejsza czerpnia nie zrobi problemu. Małe rekuperatorki z przyłączami 125-150 mają z reguły kiepski spreż. Przy takiej instalacji ciężko bedzie im wydolić.
Grubosc wełny wg przepisów dla kanałów o śr pow 100mm to właśnie 100mm. Ale 50mm powinno wystrczyć. Ja mam 30mm. Ale instalacja jest w garażu. Temp. w tym roku nie spadła poniżej 8-7 stopni. nic nie kapało. W kanałach suchutko.
Ocieplać musisz tylko w pomieszceniach nieogrzewanych. Więc wszystko co masz nad izolacją sufitu/podłogi strychu.
Skrzynki jakie chcesz. Przy 2m/s nie będzie głosno. Druga sprawa jest taka, że skrzynka nieizolowana kosztuje 200zł a z wklejona pianką 600 (zaokrąglam). Za parę dyszek można kupić piankę akustyczną klej z spraju i trochę nitów. Masz wygłuszone i 6 stów w kieszeni na 2 skrzynkach.
Dodatkowe filtry i tłumiki raczej zbedne. Możesz cześć instalacji, np do pionów i skrzynek rozpręznych zrobić na miękkich kanałach izolowanych. Masz z głowy owijanie watą i tłumienie. Te kanały są miękkie i perforowane, wiec nie przynoszą dźwieków jak sztywne spiro. Wada - nie da sie ich czyścić. Ale są tanie i można wymienić co kilka lat, jak zajdzie potrzeba. Zwłaszcza, że w Twoim przypadku, bąda niezabudowane, na strychu. Ja mam wentylację na sztywnych. Tylko łączenie ze skrzynkami rozprężnymi (parędziesiąt cm) na miękkich izolowanych. Z kratek nic nie słychać, absolutna cisza.
Co do pomiarów, to anemometr wiatraczkowy "z lejkiem" do anemostatów. Z zakresem pomiarowym od 0,5 m/s. Nie są to tanie rzeczy i nie wiem, czy da się gdzieś wypożyczyć?
Możesz ustawić "na pałę". Rozkręć wszystkie anemostaty o podobną liczbę obrotów (tylko ten w gardorebie połowę mniej) i przymknij przepustnice (na kanałach na parter) na 45st.
Jak coś będzie "nietete", będziesz martwił się o anemometr.
Te już mają przyłącza 200mm. Prawda, nie bedziesz gonił na najwyższych obrotach, pewnie na 50% i ta ciut mniejsza czerpnia nie zrobi problemu. Małe rekuperatorki z przyłączami 125-150 mają z reguły kiepski spreż. Przy takiej instalacji ciężko bedzie im wydolić.
Grubosc wełny wg przepisów dla kanałów o śr pow 100mm to właśnie 100mm. Ale 50mm powinno wystrczyć. Ja mam 30mm. Ale instalacja jest w garażu. Temp. w tym roku nie spadła poniżej 8-7 stopni. nic nie kapało. W kanałach suchutko.
Ocieplać musisz tylko w pomieszceniach nieogrzewanych. Więc wszystko co masz nad izolacją sufitu/podłogi strychu.
Skrzynki jakie chcesz. Przy 2m/s nie będzie głosno. Druga sprawa jest taka, że skrzynka nieizolowana kosztuje 200zł a z wklejona pianką 600 (zaokrąglam). Za parę dyszek można kupić piankę akustyczną klej z spraju i trochę nitów. Masz wygłuszone i 6 stów w kieszeni na 2 skrzynkach.
Dodatkowe filtry i tłumiki raczej zbedne. Możesz cześć instalacji, np do pionów i skrzynek rozpręznych zrobić na miękkich kanałach izolowanych. Masz z głowy owijanie watą i tłumienie. Te kanały są miękkie i perforowane, wiec nie przynoszą dźwieków jak sztywne spiro. Wada - nie da sie ich czyścić. Ale są tanie i można wymienić co kilka lat, jak zajdzie potrzeba. Zwłaszcza, że w Twoim przypadku, bąda niezabudowane, na strychu. Ja mam wentylację na sztywnych. Tylko łączenie ze skrzynkami rozprężnymi (parędziesiąt cm) na miękkich izolowanych. Z kratek nic nie słychać, absolutna cisza.
Co do pomiarów, to anemometr wiatraczkowy "z lejkiem" do anemostatów. Z zakresem pomiarowym od 0,5 m/s. Nie są to tanie rzeczy i nie wiem, czy da się gdzieś wypożyczyć?
Możesz ustawić "na pałę". Rozkręć wszystkie anemostaty o podobną liczbę obrotów (tylko ten w gardorebie połowę mniej) i przymknij przepustnice (na kanałach na parter) na 45st.
Jak coś będzie "nietete", będziesz martwił się o anemometr.
Re: Podłączenie rekuperatora parter/ poddasze jak prawidłowo to zrobić
kolego denvi a co z tym pytaniem
Jeszcze chciałbym zapytać o mocowania i izolacje rur sztywnych spiro :
- czy taka rurę mocuję normalnie uchwytami np. takimi z guma i i owijam wełna wtedy wystaje śruba mocująca czy obejmy mają być na izolacji termicznej ale wtedy to może być trochę niestabilne bo wełna miękka
- jaką taśmę zastosować do łączenia srebrnej powłoki wełny czy wzmocnioną czy zwykła alu.
czy nie ma znaczenia ???3 czy będzie różnica czy z wyjścia siodłowego w bok pójdę na skrzynki rozdzielcze a nie na piony istniejących kanałów parterowych
Jeszcze chciałbym zapytać o mocowania i izolacje rur sztywnych spiro :
- czy taka rurę mocuję normalnie uchwytami np. takimi z guma i i owijam wełna wtedy wystaje śruba mocująca czy obejmy mają być na izolacji termicznej ale wtedy to może być trochę niestabilne bo wełna miękka
- jaką taśmę zastosować do łączenia srebrnej powłoki wełny czy wzmocnioną czy zwykła alu.
Re: Podłączenie rekuperatora parter/ poddasze jak prawidłowo to zrobić
Raczej ma znaczenie. Z siodła wychodzi sie na anemostat. Większość powietrza pójdzie prosto. Jak z odejścia podłączysz skrzynkę rozdzielczą, potem rozpreżne, to będzie słabiutko wiało. Jeżeli w ogóle. Na górze masz 7 rurek, na dole odpowiednik 4.marcinx00 pisze:kolego denvi a co z tym pytaniemczy nie ma znaczenia ???3 czy będzie różnica czy z wyjścia siodłowego w bok pójdę na skrzynki rozdzielcze a nie na piony istniejących kanałów parterowych
Montowanie spiro, jak piszesz, obejmy z gumą na rurę. Żeby było wygodniej, rury możesz izolować przed montażem. Zostawiasz tylko nieoklejone paski na obejmy i na końcach, Doklejasz po montażu.
Do waty może być taśma zbrojona. Mniej więcej proste powierzchnie się klei. Do kanałów miękkich, lepiej się sprawdza się "klisza". Cienka taśma. półprzeźroczysta.
-
mariano-1991
- Początkujący

- Posty: 23
- Rejestracja: 02 kwie 2019, 6:25
Re: Podłączenie rekuperatora parter/ poddasze jak prawidłowo to zrobić
W moim przypadku to szczerze mowiac nie mialem zbyt duzej wiedzy na temat rekuperacji przed montazem u mnie w domu. Oczywiscie dowiadywalem sie m. in. tutaj na forum i czytalem o tym sporo, ale mialem raczej podstawowe informacje co i jak. Znajomy polecil mi firme ktora mu to zakladala Wentsystem faktycznie bylo wszystko git, co wazne maja wszystkie uprawnienia bo slyszalem ze czesto wlasnie z tym byl klopot i przez to wszystko sie mocno przeciagalo tutaj temat dograny na tip-top
Re: Podłączenie rekuperatora parter/ poddasze jak prawidłowo to zrobić
denvi dzięki za podpowiedzi
jeśli jeszcze ktoś może podpowiedzieć gdybym okap kuchenny podpiął przez złącze w kształcie portek do jednego z kominków wentylacyjnych dachowych tuż przy samym wylocie którymi będzie wyrzut z rekuperatora jest ryzyko jakiegoś zaciągania w stronę rekuperatora ?
jeśli jeszcze ktoś może podpowiedzieć gdybym okap kuchenny podpiął przez złącze w kształcie portek do jednego z kominków wentylacyjnych dachowych tuż przy samym wylocie którymi będzie wyrzut z rekuperatora jest ryzyko jakiegoś zaciągania w stronę rekuperatora ?
-
Rafał Cichocki
- Zaawansowany

- Posty: 462
- Rejestracja: 12 cze 2013, 12:25
Re: Podłączenie rekuperatora parter/ poddasze jak prawidłowo to zrobić
Witam,marcinx00 pisze:Mam pytanko do tych co się znają dom parter i poddasze rekuperator na strychu ze strychu zrobione piony nawiewny kanałem 200x90 do salonu otwartego wywiew małe WC rura fi 125 oraz kuchnia 2x fi 100 z czego jedna rura miała być wykorzystana gdyby był okap z wentylatorem.
Był plan na poddaszu zrobić to na sztywnych rurach ale koncepcja się zmienia ze względu na łatwość wykonania tego na rurach PE
Jak to prawidłowo rozdzielić poddasze z parterem czy zrobić jakiś trójnik z przepustnicą regulującą abym mógł wyregulować zapotrzebowanie nawiewu Poddasze/Parter oddzielnie puścić powietrze na parter sztywna rurą a na poddaszu zrobić skrzynkę rozdzielczą i do niej rurę PE rozprowadzić po pokojach (tak mi się wydaje sensownie)
Na poddaszu do wszystkich pomieszczeń planowałem dać 2x PE 75 do garderoby 1x PE75, A jakie dać wywiewy ile rur powinno tam być aby to zrównoważyć (do podglądu plan pomieszczeń)
Zastanawiam się też czy na strychu dać nawiew z jednej strony a z drugiej wywiew bo nie będzie tam żadnej cyrkulacji powietrza
W sprawie uzgodnienia projektu instalacji wentylacji mechanicznej z rekuperatorem lepiej skontaktować się bezpośrednio ze specjalistą. W tym celu zachęcam Pana do konsultacji z jednym z naszych Autoryzowanych Instalatorów. Pozwoli to na uniknięcie błędów projektowych oraz zagwarantuje prawidłową pracę całego systemu. Instalator pomoże również w doborze odpowiedniej centrali wentylacyjnej. Wyszukiwarka instalatorów znajduje się na stronie www.buderus.pl. Możliwy jest również kontakt telefoniczny pod numerem infolinii: 801 777 008. W swojej ofercie oprócz sprawdzonych rekuperatorów znajdują się również kanały płaskie o grubości jedynie 50mm pozwalające na prosty montaż bez taśmy uszczelniającej. Połączenie gwarantuje wysoką szczelność. Wnętrze przewodu posiada antystatyczną oraz antybakteryjną powłokę.
Chętnie odpowiem na ewentualne pytania.
Pozdrawiam,
________________________________
Konsultant Buderus

