Podłączenie rekuperatora parter/ poddasze jak prawidłowo to zrobić
Moderator: Redakcja e-instalacje.pl
Podłączenie rekuperatora parter/ poddasze jak prawidłowo to zrobić
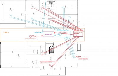
Mam pytanko do tych co się znają dom parter i poddasze rekuperator na strychu ze strychu zrobione piony nawiewny kanałem 200x90 do salonu otwartego wywiew małe WC rura fi 125 oraz kuchnia 2x fi 100 z czego jedna rura miała być wykorzystana gdyby był okap z wentylatorem.
Był plan na poddaszu zrobić to na sztywnych rurach ale koncepcja się zmienia ze względu na łatwość wykonania tego na rurach PE
Jak to prawidłowo rozdzielić poddasze z parterem czy zrobić jakiś trójnik z przepustnicą regulującą abym mógł wyregulować zapotrzebowanie nawiewu Poddasze/Parter oddzielnie puścić powietrze na parter sztywna rurą a na poddaszu zrobić skrzynkę rozdzielczą i do niej rurę PE rozprowadzić po pokojach (tak mi się wydaje sensownie)
Na poddaszu do wszystkich pomieszczeń planowałem dać 2x PE 75 do garderoby 1x PE75, A jakie dać wywiewy ile rur powinno tam być aby to zrównoważyć (do podglądu plan pomieszczeń)
Zastanawiam się też czy na strychu dać nawiew z jednej strony a z drugiej wywiew bo nie będzie tam żadnej cyrkulacji powietrza
Był plan na poddaszu zrobić to na sztywnych rurach ale koncepcja się zmienia ze względu na łatwość wykonania tego na rurach PE
Jak to prawidłowo rozdzielić poddasze z parterem czy zrobić jakiś trójnik z przepustnicą regulującą abym mógł wyregulować zapotrzebowanie nawiewu Poddasze/Parter oddzielnie puścić powietrze na parter sztywna rurą a na poddaszu zrobić skrzynkę rozdzielczą i do niej rurę PE rozprowadzić po pokojach (tak mi się wydaje sensownie)
Na poddaszu do wszystkich pomieszczeń planowałem dać 2x PE 75 do garderoby 1x PE75, A jakie dać wywiewy ile rur powinno tam być aby to zrównoważyć (do podglądu plan pomieszczeń)
Zastanawiam się też czy na strychu dać nawiew z jednej strony a z drugiej wywiew bo nie będzie tam żadnej cyrkulacji powietrza
Re: Podłączenie rekuperatora parter/ poddasze jak prawidłowo to zrobić
Wygląda to jak radosna twórczość kogoś kto o rekuperacji nie ma najmniejszego pojęcia. Weź znajdź kogoś kto to policzy i przygotuje projekt którym się będziesz posiłkował bo temu bliżej do katastrofy niż do rekuperacji.
Ilość rur którą zaplanowałeś jest błędna, miejsca w których te rury umieściłeś są nieprzemyślane. Szkoda tu szukać kompromisów jeśli absolutnie wszystko jest źle.
Ilość rur którą zaplanowałeś jest błędna, miejsca w których te rury umieściłeś są nieprzemyślane. Szkoda tu szukać kompromisów jeśli absolutnie wszystko jest źle.
Tomasz_Brzeczkowski pisze:Przyczyną smogu w Polsce jest wentylacja grawitacyjna
Re: Podłączenie rekuperatora parter/ poddasze jak prawidłowo to zrobić
niby dlaczego źle jaka filozofia w pomieszczeniach dać rury kwestia tylko jakich przekrojów jakie średnice skoro chcę mieć w każdym pomieszczeniu świeże powietrze to musi tam być nawiew.
Kiedyś jak pytałem o podpowiedzi nikt tego nie skrytykował jak ty.
Teraz już czas wykonać ta instalacje wiec dopytuję kogoś kto podpowie a nie będzie krytykował
Kiedyś jak pytałem o podpowiedzi nikt tego nie skrytykował jak ty.
Teraz już czas wykonać ta instalacje wiec dopytuję kogoś kto podpowie a nie będzie krytykował
Re: Podłączenie rekuperatora parter/ poddasze jak prawidłowo to zrobić
Widać "nauki" Brzęczkowskiego, niestety,
Proste jak drut.
Dół:
Salon - N 3x75
Kuchnia - W 2x75
Kibelek - W 1x75
Ja w kuchni nie będzie gazu to można dać odwrotnie.
Góra:
P1 - N 2x75
P2 - N 2x75
Sypialnia - N 1x75
Łazienka - W 2x75
Pralnia - W 2x75
Garderoba - W 1x75 (co wy ludzie z tym nawiewem do pomieszczenia niemieszkalnego, po kiego?!)
Masz dół 3-3, góra 5-5 razem, 8-8. Do 150-200 m3/h możesz wymienić bez problemu.
Strych to pokój 3? Olej. Nawiewnik w oknie lub ścianie i kominek wentylacyjny. No chyba, że ogrzewany, to wtedy warto coś stamtąd wyciągnąć.
Podłączenie:
Z rekuperatora wychodzisz 150mm minimum. Takie lub większe przyłącza będzie miał rekuperator. Potem odejście 125mm na górę do skrzynki 125/5x75. Za odejściem redukcja do 125 lub 100mm i z tym lecisz na dół. Skrzynka 100/3x75. Nawiew i wywiew tak samo. Możesz dać trójnik (portki) 150/2x125 i póżniej redukcję do 100 na kanale do dolnej skrzynki.
Jak reku będzie miał przyłącza 200 mm możesz wszystko dać o rozmiar w górę,
tj.: 200->150->125.
Pamiętaj, zasada jest taka: po trójniku redukcja, żeby podnieść ciśnienie i pchać dalej co zostało.
Proste jak konstrukcja cepa... a ludziska się nakombinuuuują,
Proste jak drut.
Dół:
Salon - N 3x75
Kuchnia - W 2x75
Kibelek - W 1x75
Ja w kuchni nie będzie gazu to można dać odwrotnie.
Góra:
P1 - N 2x75
P2 - N 2x75
Sypialnia - N 1x75
Łazienka - W 2x75
Pralnia - W 2x75
Garderoba - W 1x75 (co wy ludzie z tym nawiewem do pomieszczenia niemieszkalnego, po kiego?!)
Masz dół 3-3, góra 5-5 razem, 8-8. Do 150-200 m3/h możesz wymienić bez problemu.
Strych to pokój 3? Olej. Nawiewnik w oknie lub ścianie i kominek wentylacyjny. No chyba, że ogrzewany, to wtedy warto coś stamtąd wyciągnąć.
Podłączenie:
Z rekuperatora wychodzisz 150mm minimum. Takie lub większe przyłącza będzie miał rekuperator. Potem odejście 125mm na górę do skrzynki 125/5x75. Za odejściem redukcja do 125 lub 100mm i z tym lecisz na dół. Skrzynka 100/3x75. Nawiew i wywiew tak samo. Możesz dać trójnik (portki) 150/2x125 i póżniej redukcję do 100 na kanale do dolnej skrzynki.
Jak reku będzie miał przyłącza 200 mm możesz wszystko dać o rozmiar w górę,
tj.: 200->150->125.
Pamiętaj, zasada jest taka: po trójniku redukcja, żeby podnieść ciśnienie i pchać dalej co zostało.
Proste jak konstrukcja cepa... a ludziska się nakombinuuuują,
Re: Podłączenie rekuperatora parter/ poddasze jak prawidłowo to zrobić
Dzięki kolego za konkrety Pokój nr 3 to zwykły pokój nad garażem wiec tam 2x75 ??? i czy wtedy dodać jakąś rurę wywiewu do łazienki lub pralni?
Z pralnią z tym nawiewem to aby ubrania nie były jakieś zaduszone niby wstawione mam tam małe okienko aby wietrzyć.
Co do parteru to mam tam już sztywne rury puszczone ze strychu (tam będzie rekuperator) czy zrobić to już na sztywno czy ewentualnie podłączyć mógłbym się do tych rur na strychu tymi rurami PE i dalej już by to sobie poszło tymi kawałkami sztywnych na parter?
O wentylacje na strychu chodzi mi o to że będzie tam piana czyli powstanie mała część strychu w kształcie trójkąta ocieplenie pomiędzy jętkami i miedzy krokwiami do szczytu wiec zero dostępu powietrza czy coś by się tam przydało by zrobić ? jak by był jakiś przewiew to nawet ubrania by można by było suchyć
Z pralnią z tym nawiewem to aby ubrania nie były jakieś zaduszone niby wstawione mam tam małe okienko aby wietrzyć.
Co do parteru to mam tam już sztywne rury puszczone ze strychu (tam będzie rekuperator) czy zrobić to już na sztywno czy ewentualnie podłączyć mógłbym się do tych rur na strychu tymi rurami PE i dalej już by to sobie poszło tymi kawałkami sztywnych na parter?
O wentylacje na strychu chodzi mi o to że będzie tam piana czyli powstanie mała część strychu w kształcie trójkąta ocieplenie pomiędzy jętkami i miedzy krokwiami do szczytu wiec zero dostępu powietrza czy coś by się tam przydało by zrobić ? jak by był jakiś przewiew to nawet ubrania by można by było suchyć
-
Tomasz_Brzeczkowski
- Superużytkownik

- Posty: 24711
- Rejestracja: 16 mar 2006, 13:07
- Lokalizacja: Warszawa
Re: Podłączenie rekuperatora parter/ poddasze jak prawidłowo to zrobić
Ilość kanałów PE75 odchodzących od rozdzielacza zależy od centrali - Centrale z wyjsciem fi 160 mają rozdzielacza maksymalnie 8 x75 przy centrali z wyjściem 200mm to 10x75 do 12x75.
Przykładowo dla b.dobrej centrali PremAir 350 alnor
rozdzielacz 160/8x75 szt 2
redukcje kątowe z anemostatem wywiewnym 100/1x75 160/3x75 160/4x75
redukcje kątowe z anemostatem nawiewnym 100/1x75 6szt i 125/2x75 1szt
kanał PE75 100m
Kanał główny izolowany 160mm 20m
złączki i materiały instalacyjne
Koszt kompletu 9000 zł brutto 23%
Czy najwyższa półka jakościowa
Airpack HOME 300 z Air++ i modułem CF
Rozdzielacz 200/10x75 szt 2
redukcje kątowe z anemostatem wywiewnym 100/1x75 160/4x75 160/5x75
redukcje kątowe z anemostatem nawiewnym 100/1x75 4szt i 125/2x75 3szt
kanał PE 75 srebro 150m
kanał główny antybakteryjny 200mm
materiały instalacyjne
13700 zł brutto 23%
Najtaniej na miękkich kanałach centrali na wentylatorach AC - koszt 4500 zł brutto
Przykładowo dla b.dobrej centrali PremAir 350 alnor
rozdzielacz 160/8x75 szt 2
redukcje kątowe z anemostatem wywiewnym 100/1x75 160/3x75 160/4x75
redukcje kątowe z anemostatem nawiewnym 100/1x75 6szt i 125/2x75 1szt
kanał PE75 100m
Kanał główny izolowany 160mm 20m
złączki i materiały instalacyjne
Koszt kompletu 9000 zł brutto 23%
Czy najwyższa półka jakościowa
Airpack HOME 300 z Air++ i modułem CF
Rozdzielacz 200/10x75 szt 2
redukcje kątowe z anemostatem wywiewnym 100/1x75 160/4x75 160/5x75
redukcje kątowe z anemostatem nawiewnym 100/1x75 4szt i 125/2x75 3szt
kanał PE 75 srebro 150m
kanał główny antybakteryjny 200mm
materiały instalacyjne
13700 zł brutto 23%
Najtaniej na miękkich kanałach centrali na wentylatorach AC - koszt 4500 zł brutto
rekuperacja od 1989r
Re: Podłączenie rekuperatora parter/ poddasze jak prawidłowo to zrobić
Ok to już wiem ale proszę o podpowiedzi co do pytań wcześniejszychIlość kanałów PE75 odchodzących od rozdzielacza zależy od centrali
1 czy jeśli dam do pokoju nr 3 2x75 PE to dodatkowo dorzucić gdzieś rury wywiewu?
Bo kolega denvi podrzucił jak to ma wyglądać na moim przykładzie ale myślał ze pokój nr 3 to strych
2 rozumie że w garderobie ma być wywiew czytam i zazwyczaj każdy tak ma a chciałem robić nawiew (mam dodatkowo tam okno więc może nic nie robić)
3 no i ten parter jak pisałem sztywne rury puszczone ze strychu piony (tam będzie rekuperator) czy zrobić to już na sztywno od rekuperatora rurą fi 160 czy ewentualnie podłączyć mógłbym się do tych rur na strychu tymi rurami PE i dalej już by to sobie poszło tymi kawałkami sztywnych na parter?
4 co z tym strychem nad jętkami gdzie nie będzie cyrkulacji powietrza jak to rozwiązać ?
Dodatkowo pytania:
5 Jeśli dam to wszystko na strychu gdzie będzie dach po sam szczyt ocieplony oraz jętki pod płytą osb jaką grubość wełny dawać na te rury PE ? rozważałem też puszczenie rur w przestrzeni miedzy ociepleniem a płytą KG bo sufit będzie opuszczony około 13 cm ale boję się aby nic się nie wykraplało i nie kapało na płyty sufitu
6 czerpnia będzie zrobiona z rury fi 180 be będzie szła przez pralnię (już tak mam zrobione przejście przez ścianę północną)
Jaką grubość izolacji minimum zastosować ?
Czy ta rura musi iść całkowicie pod ociepleniem dachu czy może iść przy samym deskowaniu a ocieplenie jej tylko od spodniej warstwy rury do desek ?
mógłbym ją wtedy miedzy krokwie schować i ewentualnie więcej ocieplenia dać na spodzie rury a góra stykała by się z deskami czyli i deski dachu i góra rury miały by taką samą temperaturę bo to czerpnia.
Taki sposób dał by możliwość schowania jej całkowicie w suficie opuszczonym.
7 Widziałem że niektórzy robią ocieplenie rur PE75 z otulin takich szarych czy taka otulina ma lepsze właściwości niż wełna do rur wentylacji ?
8 Czy wełnę taką z klejem i folią srebrna na wierzchu można łączyć ze sobą np. 2 cm grubości + doklejenie na te sreberko następnej warstwy ?
Re: Podłączenie rekuperatora parter/ poddasze jak prawidłowo to zrobić
Ad.1. Możesz dorzucić wywiew na toaletę. Ewentualnie po rurce na pralnię i toaletę.
Ad.2. Garderobę masz dużą. Ja bym jedną rurkę tam zostawił. Dla minimalnego ruchu powietrza.
Ad.3. Jeżeli długość rur nie przekroczy 10-12m, a z rysunku wnioskuję, ze nie powinno, możesz dać PE ze strychu. Z jednego rozdzielacza będzie prościej. Tylko czy upchasz 6 rur w szachty?
Ad.4. Jakaś wentylacja by się przydała. Z drugiej strony jak masz membranę to będzie oddychać. Troszkę gorzej jak jest deskowanie i papa. Trzeba by dać kominek. Wspominałeś o piance. Osobiście nie jestem fanem tego rozwiązania. MSZ nie ma sensu ocieplać nieogrzewanego pomieszczenia. Wystarczy izolacja stropu.
Ad.5. Puść w pustce sufitowej. Nie trzeba będzie ocieplać. W przepisach jest chyba coś o grubości izolacji równej średnicy kanału, do 100 mm? Nie pamiętam. W ustawę trzeba zajrzeć.
Ad.6. j.w. Trzeba owijać całą rurę. Wata samoprzylepna do kanałów z powłoką z folii alu.
AD.7,8. Wata na kanały sztywne, pianka na elastyczne. Waty na watę się nie klei. Sa grubości chyba 2,3,5 i 10 cm. 3 cm waty chyba wystarczy. Nie zauważyłem, żeby coś mi się pociło. Trochę "anarchii" nie zaszkodzi.
Ad.2. Garderobę masz dużą. Ja bym jedną rurkę tam zostawił. Dla minimalnego ruchu powietrza.
Ad.3. Jeżeli długość rur nie przekroczy 10-12m, a z rysunku wnioskuję, ze nie powinno, możesz dać PE ze strychu. Z jednego rozdzielacza będzie prościej. Tylko czy upchasz 6 rur w szachty?
Ad.4. Jakaś wentylacja by się przydała. Z drugiej strony jak masz membranę to będzie oddychać. Troszkę gorzej jak jest deskowanie i papa. Trzeba by dać kominek. Wspominałeś o piance. Osobiście nie jestem fanem tego rozwiązania. MSZ nie ma sensu ocieplać nieogrzewanego pomieszczenia. Wystarczy izolacja stropu.
Ad.5. Puść w pustce sufitowej. Nie trzeba będzie ocieplać. W przepisach jest chyba coś o grubości izolacji równej średnicy kanału, do 100 mm? Nie pamiętam. W ustawę trzeba zajrzeć.
Ad.6. j.w. Trzeba owijać całą rurę. Wata samoprzylepna do kanałów z powłoką z folii alu.
AD.7,8. Wata na kanały sztywne, pianka na elastyczne. Waty na watę się nie klei. Sa grubości chyba 2,3,5 i 10 cm. 3 cm waty chyba wystarczy. Nie zauważyłem, żeby coś mi się pociło. Trochę "anarchii" nie zaszkodzi.
Re: Podłączenie rekuperatora parter/ poddasze jak prawidłowo to zrobić
Czyli zrobił bym tak
Poddasze
Nawiew
pokój 1) 2x75
pokój 2) 2x75
pokój 3) 2x75
sypialnia 1x75 (nie lepiej 2x czy to bez sensu)
Wywiew
Garderoba 1x 75
łazienka 3x75
pralnia 2x75 (ewentualnie jak by lepiej było w sypialni nawiew 2x75 to wywiew tu 3x)
Parter
czy przy takich wymiarach salonu i otwartych pomieszczeniach wystarczą 4x nawiewne pe 75
Jeśli tak to zrobił bym to tak
Salon nawiew
4x75pe lub 6 x pe 75
wywiew
kuchnia 2x75
wc 2x 75 lub 3 x pe 75
To samo i z pionami wywiewnymi jedyna możliwość połączenie na strychu, w tym przypadku musiał bym jakiś trójnik robić czyli oddzielna instalacja na skrzynce rozdzielczej była by na poddaszu oddzielnie na sztywnych na parter.
Czy wtedy jakaś przepustnica regulująca podawanie powietrza na parter ??
A może lepiej większą jedną skrzynkę rozdzielczą na strychu zastosować która obsłuży i poddasze i parter i te rury na parter dołączyć do tych pionów.
Które rozwiązanie lepsze??
Co do odp.4 deski papa blacha ocieplone po szczyt ze względu że będzie tam rekuperator
DO 5 chciałem w tej pustce sufitowej zrobić ale niektórzy mówią że i tak trzeba izolować wiec na strychu będzie dostęp do wszystkiego a boję się o wykraplanie na płytę KG jak nie zaizoluję
DO 8 pytałem o wełnę na wełnę bo mam sporo jej wale cienkiej 2 i 3 cm wiec chciał bym ją wykorzystać
No i co z tym strychem na chwile gdy pójdzie tam pian nie ma żadnej cyrkulacji powietrza nie chce robić jakichś dziur w ścianach szczytowych żeby mróz tam zimą nie wchodził czy można do tego celu wykorzystać rekuperator czyli nawiew i wywiew?
Poddasze
Nawiew
pokój 1) 2x75
pokój 2) 2x75
pokój 3) 2x75
sypialnia 1x75 (nie lepiej 2x czy to bez sensu)
Wywiew
Garderoba 1x 75
łazienka 3x75
pralnia 2x75 (ewentualnie jak by lepiej było w sypialni nawiew 2x75 to wywiew tu 3x)
Parter
czy przy takich wymiarach salonu i otwartych pomieszczeniach wystarczą 4x nawiewne pe 75
Jeśli tak to zrobił bym to tak
Salon nawiew
4x75pe lub 6 x pe 75
wywiew
kuchnia 2x75
wc 2x 75 lub 3 x pe 75
co to znaczy czy włożę 6 rur w ten kanał 90x200 ? nie wejdzie wiec jedyna możliwość to podłączenie na strychu tych 6 rur do tego pionu czy tak można czy lepiej po całości ta sztywna rura zrobić?Tylko czy upchasz 6 rur w szachty?
To samo i z pionami wywiewnymi jedyna możliwość połączenie na strychu, w tym przypadku musiał bym jakiś trójnik robić czyli oddzielna instalacja na skrzynce rozdzielczej była by na poddaszu oddzielnie na sztywnych na parter.
Czy wtedy jakaś przepustnica regulująca podawanie powietrza na parter ??
A może lepiej większą jedną skrzynkę rozdzielczą na strychu zastosować która obsłuży i poddasze i parter i te rury na parter dołączyć do tych pionów.
Które rozwiązanie lepsze??
Co do odp.4 deski papa blacha ocieplone po szczyt ze względu że będzie tam rekuperator
DO 5 chciałem w tej pustce sufitowej zrobić ale niektórzy mówią że i tak trzeba izolować wiec na strychu będzie dostęp do wszystkiego a boję się o wykraplanie na płytę KG jak nie zaizoluję
DO 8 pytałem o wełnę na wełnę bo mam sporo jej wale cienkiej 2 i 3 cm wiec chciał bym ją wykorzystać
No i co z tym strychem na chwile gdy pójdzie tam pian nie ma żadnej cyrkulacji powietrza nie chce robić jakichś dziur w ścianach szczytowych żeby mróz tam zimą nie wchodził czy można do tego celu wykorzystać rekuperator czyli nawiew i wywiew?
-
Tomasz_Brzeczkowski
- Superużytkownik

- Posty: 24711
- Rejestracja: 16 mar 2006, 13:07
- Lokalizacja: Warszawa
Re: Podłączenie rekuperatora parter/ poddasze jak prawidłowo to zrobić
Dodatkowe rury ponad optimum nie zwiększą strumienia. Czy jak do kranu podłączy Pan rurkę 1.5 cala będzie lepiej?1 czy jeśli dam do pokoju nr 3 2x75 PE to dodatkowo dorzucić gdzieś rury wywiewu?
Bo kolega denvi podrzucił jak to ma wyglądać na moim przykładzie ale myślał ze pokój nr 3 to strych
Jeżeli już, to nawiew. Nie można wywiewać przez garderobę zepsutego powietrza, to czyste pomieszczenie. Wywiew był prazy wentylacji grawitacyjnej, bo tam świeże powietrze wchodziło oknem !! A nie zepsute z domu.2 rozumie że w garderobie ma być wywiew czytam i zazwyczaj każdy tak ma a chciałem robić nawiew (mam dodatkowo tam okno więc może nic nie robić)
Kanały PE są do zalewania na stropie, jeżeli nie zalewa Pan kanałów to łatwiej i lepiej będzie na miękkich izolowanych.3 no i ten parter jak pisałem sztywne rury puszczone ze strychu piony (tam będzie rekuperator) czy zrobić to już na sztywno od rekuperatora rurą fi 160 czy ewentualnie podłączyć mógłbym się do tych rur na strychu tymi rurami PE i dalej już by to sobie poszło tymi kawałkami sztywnych na parter?
Wentylacja z odzyskiem ciepła jest dla ludzi.4 co z tym strychem nad jętkami gdzie nie będzie cyrkulacji powietrza jak to rozwiązać ?
Dodatkowo pytania:
5 Jeśli dam to wszystko na strychu gdzie będzie dach po sam szczyt ocieplony oraz jętki pod płytą osb jaką grubość wełny dawać na te rury PE ? rozważałem też puszczenie rur w przestrzeni miedzy ociepleniem a płytą KG bo sufit będzie opuszczony około 13 cm ale boję się aby nic się nie wykraplało i nie kapało na płyty sufitu , Powietrze w kanałach nawiewnych i wywiewnych jest w temperaturze bliskiej pokojowej, więc nic się nie wykropli
Normalną rurę izolowaną, unikałby izolowania samemu, chodzi o szczelność.6 czerpnia będzie zrobiona z rury fi 180 be będzie szła przez pralnię (już tak mam zrobione przejście przez ścianę północną)
Jaką grubość izolacji minimum zastosować ?
To chore. Te kanały są do zalewania w betonie, jak mają być izolowane, to się kupuje izolowane.7 Widziałem że niektórzy robią ocieplenie rur PE75 z otulin takich szarych czy taka otulina ma lepsze właściwości niż wełna do rur wentylacji ?
Po co robić drożej i gorzej i jeszcze się narobić?8 Czy wełnę taką z klejem i folią srebrna na wierzchu można łączyć ze sobą np. 2 cm grubości + doklejenie na te sreberko następnej warstwy ?
DAJĄC WYWIEWY POZA ŁAZIENKAMI I BARDZO MAŁYM W KUCHNI, NIE ZBILANSUJE PAN WENTYLACJI. WYKLUCZY PAN MOŻLIWOŚĆ UZYSKANIA KOMFORTU.
rekuperacja od 1989r
Re: Podłączenie rekuperatora parter/ poddasze jak prawidłowo to zrobić
Myślałem o dodatkowych rurach wywiewu bo kolega denvi nie brał pod uwagę nawiewów do pokoju nr 3 myślał że to strych wiec skoro pójdą dwie rury nawiewu więcej to chyba wywiewu też trzeba dołożyć.Dodatkowe rury ponad optimum nie zwiększą strumienia. Czy jak do kranu podłączy Pan rurkę 1.5 cala będzie lepiej?
też tak na początku myślałem ale czytając sobie wypowiedzi ludzi to wszyscy robią tam wywiew nawet i projekty robione przez firmy tak podają że ma być wywiew (trochę to dla mnie dziwne ale cos w tym musi być)Jeżeli już, to nawiew. Nie można wywiewać przez garderobę zepsutego powietrza, to czyste pomieszczenie.
wiec dlaczego robią tak https://www.google.com/search?biw=1422& ... C6mOE81LtM:Kanały PE są do zalewania na stropie
jeżeli nie zalewa Pan kanałów to łatwiej i lepiej będzie na miękkich izolowanych.
w sensie na takich
https://www.google.com/search?q=rura+mi ... KANV-5Qg4M:
a co zimą jak będzie spora różnica temperatury w powietrzu zasysanym z zewnątrz a wewnątrz pomieszczeń czy aby to nie wystąpiło musi być dobry wymiennik ciepła w rekuperatorzePowietrze w kanałach nawiewnych i wywiewnych jest w temperaturze bliskiej pokojowej, więc nic się nie wykropli
tu na przykład widać ta izolację na filmie 1min i 14 sek.To chore. Te kanały są do zalewania w betonie, jak mają być izolowane, to się kupuje izolowane
https://www.youtube.com/watch?v=cR7-7TgyMgE
może i bym się narobił ale drożej by nie było bo mam sporo wełny 2cm chciał bym ja wykorzystać a nie wyżucićPo co robić drożej i gorzej i jeszcze się narobić?
A jaka była by pana propozycja rozmieszczenia wentylacji w moim domu wykorzystując te piony wentylacyjne które mam już wyprowadzone z parteru na strychDAJĄC WYWIEWY POZA ŁAZIENKAMI I BARDZO MAŁYM W KUCHNI, NIE ZBILANSUJE PAN WENTYLACJI. WYKLUCZY PAN MOŻLIWOŚĆ UZYSKANIA KOMFORTU.
Re: Podłączenie rekuperatora parter/ poddasze jak prawidłowo to zrobić
Sam się prosisz o kłopoty.marcinx00 pisze:A jaka była by pana propozycja rozmieszczenia wentylacji w moim domu wykorzystując te piony wentylacyjne które mam już wyprowadzone z parteru na strych
TB wyznaje zasadę 20m3/os. Może to się sprawdzić w M3, ale w domu bedziesz musiał wybrać, który kibel wentylujesz i jakie 2 sypialnie zasilić. Na resztę zabraknie powietrza. Stąd hasełka i gó..oprawdy, w stylu "nie zbilansuje Pan wentytlacji".
Więcej też nie możesz wymienić, bo "wysuszy Pan powietrze".
Rekuperacja, po prostu, nie nadaje sią do domków wiekszych niż 60m2.
Re: Podłączenie rekuperatora parter/ poddasze jak prawidłowo to zrobić
NIEEEE kłopotów nie chcęSam się prosisz o kłopoty.
Kolego denvi twoje podejście mi bardzo się podoba bo pisałeś konkretnie tu nawiew x tam wywiew x wtedy można powiedzieć że jest to łopatologicznie wytłumaczone i można to zrozumieć
Chciałem od p. TB tez jakichś konkretnych informacji, ogólnie takich mi potrzeba od ludzi którzy wykonują różnego rodzaju wentylacje i wiedzą jak to będzie w praktyce a nie w teorii.
Więc kolego denvi jeśli możesz i inni też jak możecie to proszę zerknijcie na mój przedstawiony plan jeszcze raz i powiedzcie czy mogę to tak wykonać jak przedstawiłem czy ewentualnie coś zmienić gdzie dać te rury bo czas mnie goni i jak napisałem wcześniej że kłopotów nie chcę
Re: Podłączenie rekuperatora parter/ poddasze jak prawidłowo to zrobić
Może być. Z jedną uwagą. Kanał do salonu jest za duży. Rozpręży i nie bedzie dmuchać jak powinno. Dla 4 rurek 75 odpowiednikiem będzie kanał prostokątny 150x75mm. Możesz taki wcisnąć w istniejący.
Inna opcja to instalacja na przewodach fi90. Są droższe ale wychodzi ich 2 razy mniej. I mógłbyś powpychać je w piony. Po jednej rurce na każde pomieszczenie tylko salon i łazienka na górze po 2. Masz wtedy 6 nawiew, 6 wywiew. Tylko w garderobie musiał byś mocno przymknąć. Np. przepustnicą na kanale.
Inna opcja to instalacja na przewodach fi90. Są droższe ale wychodzi ich 2 razy mniej. I mógłbyś powpychać je w piony. Po jednej rurce na każde pomieszczenie tylko salon i łazienka na górze po 2. Masz wtedy 6 nawiew, 6 wywiew. Tylko w garderobie musiał byś mocno przymknąć. Np. przepustnicą na kanale.
-
Tomasz_Brzeczkowski
- Superużytkownik

- Posty: 24711
- Rejestracja: 16 mar 2006, 13:07
- Lokalizacja: Warszawa
Re: Podłączenie rekuperatora parter/ poddasze jak prawidłowo to zrobić
Konkretniej się nie da.marcinx00 pisze:Chciałem od p. TB tez jakichś konkretnych informacji, .Sam się prosisz o kłopoty.
Ilość kanałów PE75 odchodzących od rozdzielacza zależy od centrali - Centrale z wyjsciem fi 160 mają rozdzielacza maksymalnie 8 x75 przy centrali z wyjściem 200mm to 10x75 do 12x75.
Przykładowo dla b.dobrej centrali PremAir 350 alnor
rozdzielacz 160/8x75 szt 2
redukcje kątowe z anemostatem wywiewnym 100/1x75 160/3x75 160/4x75
redukcje kątowe z anemostatem nawiewnym 100/1x75 6szt i 125/2x75 1szt
kanał PE75 100m
Kanał główny izolowany 160mm 20m
złączki i materiały instalacyjne
Koszt kompletu 9000 zł brutto 23%
Czy najwyższa półka jakościowa
Airpack HOME 300 z Air++ i modułem CF
Rozdzielacz 200/10x75 szt 2
redukcje kątowe z anemostatem wywiewnym 100/1x75 160/4x75 160/5x75
redukcje kątowe z anemostatem nawiewnym 100/1x75 4szt i 125/2x75 3szt
kanał PE 75 srebro 150m
kanał główny antybakteryjny 200mm
materiały instalacyjne
13700 zł brutto 23%
Najtaniej na miękkich kanałach centrali na wentylatorach AC - koszt 4500 zł brutto
jestem prekursorem i zajmuję się takimi instalacjami od 30 lat. A kolega nie ma takiej wentylacji, to zwykły troll.ogólnie takich mi potrzeba od ludzi którzy wykonują różnego rodzaju wentylacje i wiedzą jak to będzie w praktyce a nie w teorii
rekuperacja od 1989r

