Sam robię wentylację mechaniczną

Jeżeli Twoje rachunki za ogrzewanie są spore, masz pleśń w pokoju to może być spowodowane złą wentylacją w domu czy w mieszkaniu. Dowiedz się jak temu zaradzić i stworzyć zdrowy klimat w domu.

Moderator: Redakcja e-instalacje.pl

Tomasz_Brzeczkowski
Superużytkownik
Superużytkownik
Posty: 24711
Rejestracja: 16 mar 2006, 13:07
Lokalizacja: Warszawa

Re: Sam robię wentylację mechaniczną

Post autor: Tomasz_Brzeczkowski »

Nie przepadam za sklepami internetowymi.
Pan poda ile liczą za komplet :
Rozdzielacze 160/8 x 75 (dwie szt) + 9 redukcji kątowych z anemostatami (nawiew wywiew ) + 100m kanału higienicznego PE75 + 20m kanału głównego izolowanego fi 160mm + materiały montażowe -
do tego dobra centrala z kontrolą elektroniczną (EC) np. )ONYX dream 400 -
wyjdzie
9000zł
rekuperacja od 1989r

lony1
Początkujący
Początkujący
Posty: 11
Rejestracja: 31 mar 2016, 19:21

Re: Sam robię wentylację mechaniczną

Post autor: lony1 »

Tomasz_Brzeczkowski pisze:Tak dobrze to będzie trudno.
Rozdzielacze 160/8 x 75 (dwie szt) + 9 redukcji kątowych z anemostatami (nawiew wywiew ) + 100m kanału higienicznego PE75 + 20m kanału głównego izolowanego fi 160mm + materiały montażowe -
do tego dobra centrala z kontrolą elektroniczną (EC) np. )NYX dream 400 -
wyjdzie 9000zł

W 8000 zmieści się Pan z dream 200.
Chyba, że chińska centrala i kanały izolowane a kanały 75 nie PE(polietylen) a bez atestu, takie do puszczania kabli w gruncie)

No tak ale z dream 200 trzeba by skorygować ilość kanałów lub ich średnicę bo 200 ma króćce fi125 co daje 122cm2:7=17,5cm2 (prawie)tyle ma fi50 a chyba 1 przewód fi 50 do sypialni na 2osoby będzie za mało. Pozostaje więc Dream 400 lub- może Brink renovent excellent300. Cena trochę niższa i posiada króćce fi160

Tomasz_Brzeczkowski
Superużytkownik
Superużytkownik
Posty: 24711
Rejestracja: 16 mar 2006, 13:07
Lokalizacja: Warszawa

Re: Sam robię wentylację mechaniczną

Post autor: Tomasz_Brzeczkowski »

Brink 300 jest przy 150Pa a ONYX 200 przy 200 więc to to samo, a kosztuje więcej niż ONYX 400 !
Więc i z brinkiem w 8000 się Pan nie zmieści.
Wydaje mi się, że ONYX dream 400 z dystrybucją za 9000zł brutto 23 % jest najlepiej
A jak taniej to chińczyka 300m3 za 2500 i reszta 2500...
rekuperacja od 1989r

lony1
Początkujący
Początkujący
Posty: 11
Rejestracja: 31 mar 2016, 19:21

Re: Sam robię wentylację mechaniczną

Post autor: lony1 »

Tomasz_Brzeczkowski pisze:Nie przepadam za sklepami internetowymi.
Pan poda ile liczą za komplet :
Rozdzielacze 160/8 x 75 (dwie szt) + 9 redukcji kątowych z anemostatami (nawiew wywiew ) + 100m kanału higienicznego PE75 + 20m kanału głównego izolowanego fi 160mm + materiały montażowe -
do tego dobra centrala z kontrolą elektroniczną (EC) np. )ONYX dream 400 -
wyjdzie
9000zł
Rozdzielacze 160/7 x 75 =345zł szt x2szt
http://cennik.peflex.pl/15752-large_def ... fgmsta.jpg
Skrzynki rozprężne 75/80 8szt po 93zł szt
http://cennik.peflex.pl/14368-large_def ... opylen.jpg
Skrzynki rozprężne 2x75/125 3szt po 64zł szt
http://cennik.peflex.pl/13175-large_def ... -o125-.jpg
Przedłużenie skrzynki do ramki anemostatu fi80 10zł szt x 8szt
Przedłużenie skrzynek rozprężnych z poliwęglanu fi125 6zł x 3szt
Przewód wentylacyjny PE-FLEX®
Powłoka przewodu: : Pierwszy gatunek surowca, Średnica przewodu : Ø zewn. 75 mm, Ø wewn. 63 mm / 50 metrów 328 zł 1szt
Przewód wentylacyjny PE-FLEX®
Powłoka przewodu: : Antygrzybiczna, antybakteryjna, pierwszy gatunek surowca, Średnica przewodu : Ø zewn. 75 mm, Ø wewn. 63 mm / 50 metrów 408 zł 1szt
Plus złączki, taśma montażowa i anemostaty daje łącznie sumę ok 2600zł 2900 brutto
Bez przewodów zasilających rozdzielacze, czerpni i wyrzutni.

Tomasz_Brzeczkowski
Superużytkownik
Superużytkownik
Posty: 24711
Rejestracja: 16 mar 2006, 13:07
Lokalizacja: Warszawa

Re: Sam robię wentylację mechaniczną

Post autor: Tomasz_Brzeczkowski »

Plus wysyłka + kanały główne izolowane 20m + materiały (taśma al i perforowana ) + centrala ONYX dream 400 i wyjdzie ponad 1000zł drożej niż w sklepie. Ale za to nie doradzą.
rekuperacja od 1989r

TwojOszczednyDom
Superużytkownik
Superużytkownik
Posty: 1272
Rejestracja: 30 wrz 2015, 17:11
Lokalizacja: Małopolskie

Re: Sam robię wentylację mechaniczną

Post autor: TwojOszczednyDom »

lony1 pisze:
Tomasz_Brzeczkowski pisze:Nie przepadam za sklepami internetowymi.
Pan poda ile liczą za komplet :
Rozdzielacze 160/8 x 75 (dwie szt) + 9 redukcji kątowych z anemostatami (nawiew wywiew ) + 100m kanału higienicznego PE75 + 20m kanału głównego izolowanego fi 160mm + materiały montażowe -
do tego dobra centrala z kontrolą elektroniczną (EC) np. )ONYX dream 400 -
wyjdzie
9000zł
Rozdzielacze 160/7 x 75 =345zł szt x2szt
http://cennik.peflex.pl/15752-large_def ... fgmsta.jpg
Skrzynki rozprężne 75/80 8szt po 93zł szt
http://cennik.peflex.pl/14368-large_def ... opylen.jpg
Skrzynki rozprężne 2x75/125 3szt po 64zł szt
http://cennik.peflex.pl/13175-large_def ... -o125-.jpg
Przedłużenie skrzynki do ramki anemostatu fi80 10zł szt x 8szt
Przedłużenie skrzynek rozprężnych z poliwęglanu fi125 6zł x 3szt
Przewód wentylacyjny PE-FLEX®
Powłoka przewodu: : Pierwszy gatunek surowca, Średnica przewodu : Ø zewn. 75 mm, Ø wewn. 63 mm / 50 metrów 328 zł 1szt
Przewód wentylacyjny PE-FLEX®
Powłoka przewodu: : Antygrzybiczna, antybakteryjna, pierwszy gatunek surowca, Średnica przewodu : Ø zewn. 75 mm, Ø wewn. 63 mm / 50 metrów 408 zł 1szt
Plus złączki, taśma montażowa i anemostaty daje łącznie sumę ok 2600zł 2900 brutto
Bez przewodów zasilających rozdzielacze, czerpni i wyrzutni.
Oczywiście że można taniej ;) tylko nie sklep online
Każdy dom/budynek może być oszczędny i kosztować nawet 3 razy i więcej MNIEJ w utrzymaniu niż dotychczas... wystarczy znać technologie, pozdrawiam, Grzegorz

lony1
Początkujący
Początkujący
Posty: 11
Rejestracja: 31 mar 2016, 19:21

Re: Sam robię wentylację mechaniczną

Post autor: lony1 »

Czy mógłby pan coś polecić? Mieszkam koło Nałęczowa woj. lubelskie

lony1
Początkujący
Początkujący
Posty: 11
Rejestracja: 31 mar 2016, 19:21

Re: Sam robię wentylację mechaniczną

Post autor: lony1 »

Tomasz_Brzeczkowski pisze:Plus wysyłka + kanały główne izolowane 20m + materiały (taśma al i perforowana ) + centrala ONYX dream 400 i wyjdzie ponad 1000zł drożej niż w sklepie. Ale za to nie doradzą.
Jaki sklep polecił by Pan Panie Tomaszu?

mybox
Zainteresowany
Zainteresowany
Posty: 46
Rejestracja: 11 kwie 2016, 16:39

Re: Sam robię wentylację mechaniczną

Post autor: mybox »

Czy do takiej WM z reku. jak przedstawia rysunek zastosować średnicę kanału 80 czy 100mm czy może jeszcze mniejszy?
plan 3 jpg.jpg
Najdłuższy kanał to około 8m.

Centrala najprawdopodobniej Vents VUT 200 mini EC ale to jeszcze nie przesądzone.

Niebieskie to nawiewy. Czerwone wywiewy. Niebieskie kółko czerpnia. Czerwone wyrzutnia do komina wentylacyjnego grawitacyjnego.

Tomasz_Brzeczkowski
Superużytkownik
Superużytkownik
Posty: 24711
Rejestracja: 16 mar 2006, 13:07
Lokalizacja: Warszawa

Re: Sam robię wentylację mechaniczną

Post autor: Tomasz_Brzeczkowski »

W korytarzu nie może być wywiew!!!
VUT mini - wentylatory AC na maksymalnym biegu pobierają x 58W a z EC 2x105W
Wyrównuje się to przy 30-50% - VUT zAC kosztuje 2300 brutto z EC to 3500zł
Kanały główne to fi 100 czyli fi 80 na wywiew łazienka i kuchnia a 63mm izolowane nawiewy .
Radzę nie kupować chińskich kanałów, centrale są OK, zaś kanały śmierdzą ( jak na kartonie nie ma producenta, kraju tylko jest dystrybutor - to chińczyk.

Razem można to zrobić za 3200-3300

Instalacja będzie na stropie, czy wewnątrz? Dlaczego tak długie kanały? Gdzie kuchnia?
rekuperacja od 1989r

mybox
Zainteresowany
Zainteresowany
Posty: 46
Rejestracja: 11 kwie 2016, 16:39

Re: Sam robię wentylację mechaniczną

Post autor: mybox »

Panie Tomaszu. W korytarzu zrobiłem wywiew że względu na rozmiar łazienki. Jest bardzo mała i obawiam się że będzie tam przeciąg.
Jeśli chodzi o wentylatory to zakładam że przez większość czasu będą pracować właśnie na poziomie około 30%. Plus mam możliwość płynnej regulacji. Chodzi mi tutaj o mroźne dni w zimie i zmniejszenie nawiewu do min by nie wiało po głowie w sypialni. Proszę zwrócić uwagę, że jest bardzo nisko.
Co do kanałów głównych to jest ich raptem 2-3m do skrzynki rozdzielczej nawiewnej i podobnie do wywiewnej. Rozumiem że je dać z 100-ki a do anemostatów mniejszą średnicą (nie mogę znaleźć w internecie mniejszych niż 80). A jaką średnicę dać od czerpni (2m) i jaką do wyrzutni?
Centrala będzie stać w ogrzewanej garderobie. Przewód tak naprawdę tylko jeden wychodzi taki długi że względu na to, że musi okrążać pokój z komputerem. Cały pokój jest pod skosem. Boczna ścianka gdzie wstawić chcę anemostat nawiewny ma tylko 110cm wysokości.
Kuchnia jest na dole poza WM.
Jestem otwarty na wszelkie propozycje. I bardzo dziękuję za podpowiedzi.

lony1
Początkujący
Początkujący
Posty: 11
Rejestracja: 31 mar 2016, 19:21

Re: Sam robię wentylację mechaniczną

Post autor: lony1 »

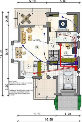
Witam ponownie. Po przemyśleniu i przekalkulowaniu kilku rzeczy.
Bardzo proszę o weryfikację i ewentualne korekty powyższego projektu WM.
Projekt narysowany pod centralę Onyx Dream 400.
Moje wątpliwości dotyczą nawiewu do sypialni na parterze pom nr6, ponieważ odległość od rozdzielacza to prawie 10mb zastanawiam się czy 1przewód fi75/63 wystarczy.
Pozostałe przewody też są dość długie:

NAWIEWY: wszystko fi75/63:

salon parter 2 nawiewy 10mb
sypialnia parter 1 nawiew lub 2 w jednym anemostacie 10mb
gabinet parter 1 nawiew 6mb
salon poddasze 2 nawiewy w jednym anemostacie 10mb
sypialnia poddasze 1 nawiew 5mb
co daje 7 lub 8

WYWIEWY fi75/63

kuchnia parter 2 prewody 1 anemostat 7mb
łazienka parter 2 przewody 1 anemostat 7mb
kuchnia poddasze 1 lub 2 przewody 1 anemostat 10mb
łazienka poddasze 2 przewody 1 anemostat

Przewody dość długie ponieważ centralę mogę umieścić jedynie w piwnicy pod garażem. Czerpnia będzie blisko max 2mb, wyrzutnia do wolnego kanału WG ok 10mb
Załączniki
reku poddasze.jpg
rekuperacja2.JPG

Tomasz_Brzeczkowski
Superużytkownik
Superużytkownik
Posty: 24711
Rejestracja: 16 mar 2006, 13:07
Lokalizacja: Warszawa

Re: Sam robię wentylację mechaniczną

Post autor: Tomasz_Brzeczkowski »

Panie Tomaszu. W korytarzu zrobiłem wywiew że względu na rozmiar łazienki. Jest bardzo mała i obawiam się że będzie tam przeciąg.
Nie będzie przeciągu. Opory drzwi spowodują, że łazienka zgnije!!! Nie robi się anemostatów w ciągach komunikacyjnych !!! Wywiewów poza łazienkami i mniejszym w kuchni. Nie zbilansuje Pan wentylacji.
Jeśli chodzi o wentylatory to zakładam że przez większość czasu będą pracować właśnie na poziomie około 30%. Plus mam możliwość płynnej regulacji. Chodzi mi tutaj o mroźne dni w zimie i zmniejszenie nawiewu do min by nie wiało po głowie w sypialni. Proszę zwrócić uwagę, że jest bardzo nisko.
To w VUT różnica będzie do 5W!!!
Co do kanałów głównych to jest ich raptem 2-3m do skrzynki rozdzielczej nawiewnej i podobnie do wywiewnej. Rozumiem że je dać z 100-ki a do anemostatów mniejszą średnicą (nie mogę znaleźć w internecie mniejszych niż 80). A jaką średnicę dać od czerpni (2m) i jaką do wyrzutni
? Jak widać internet nie tylko jest drogi ale i ma braki. Ja mam izolowane 63mm i 68mm - Przecież PE są stosowane dopiero 16 lat, a wcześniej wszystkie kanały były izolowane, więc jak dobrze zrobić bez 63mm?
Centrala będzie stać w ogrzewanej garderobie. Przewód tak naprawdę tylko jeden wychodzi taki długi że względu na to, że musi okrążać pokój z komputerem. Cały pokój jest pod skosem. Boczna ścianka gdzie wstawić chcę anemostat nawiewny ma tylko 110cm wysokości.
Dlaczego nie zrobi Pan anemostatów na ścianach działowych z korytarzem? Anemostat może być nawet nad drzwiami. Po co ciągnąć takie odcinki? No i w komputerach nawiew a nie wywiew i nawiew . Będzie za mało dla łazienki!
Kuchnia jest na dole poza WM.
Jestem otwarty na wszelkie propozycje. I bardzo dziękuję za podpowiedzi.
Trzeba zrobić całość, dołożyć do 300-tki te 300zł i kanał 125mm . Niech Pan nie łączy wentylacji grawitacyjnej - podciśnieniowej z mechaniczną nadciśnieniową !
rekuperacja od 1989r

Tomasz_Brzeczkowski
Superużytkownik
Superużytkownik
Posty: 24711
Rejestracja: 16 mar 2006, 13:07
Lokalizacja: Warszawa

Re: Sam robię wentylację mechaniczną

Post autor: Tomasz_Brzeczkowski »

NAWIEWY: wszystko fi75/63:

salon parter 2 nawiewy 10mb
sypialnia parter 1 nawiew lub 2 w jednym anemostacie 10mb
gabinet parter 1 nawiew 6mb
salon poddasze 2 nawiewy w jednym anemostacie 10mb
sypialnia poddasze 1 nawiew 5mb
co daje 7 lub 8
Jak daleko i sypialnia dla dwóch osób to śmiało podwójny kanał
WYWIEWY fi75/63

kuchnia parter 2 prewody 1 anemostat 7mb
łazienka parter 2 przewody 1 anemostat 7mb
kuchnia poddasze 1 lub 2 przewody 1 anemostat 10mb
łazienka poddasze 2 przewody 1 anemostat
Radziłbym łazienki - redukcje kątowe 125/3x75 a w kuchni 100/1x75.
rekuperacja od 1989r

TwojOszczednyDom
Superużytkownik
Superużytkownik
Posty: 1272
Rejestracja: 30 wrz 2015, 17:11
Lokalizacja: Małopolskie

Re: Sam robię wentylację mechaniczną

Post autor: TwojOszczednyDom »

Nie wiem skąd biorą się pomysły z wywiewami w korytarzach...ale szczerze przyznam że projekty jakie spotykam odnośnie wentylacji to jeszcze żaden nie był wykonany poprawnie przez ludzi legitymujacych się tytułami inżynierów mgr. Wentylacji grawitacyjnej nie łączy się też z mechaniczną. Z tego co wiem to kolega chce zrobić to jakby jako osobne szczelnie oddzielone mieszkanie... Ale właśnie czy nie warto zrobić to w całym domu? U góry kuchni brak a zatem nie wydaje mi się że będzie to autonomiczne lokum.
Każdy dom/budynek może być oszczędny i kosztować nawet 3 razy i więcej MNIEJ w utrzymaniu niż dotychczas... wystarczy znać technologie, pozdrawiam, Grzegorz

ODPOWIEDZ

Wróć do „Wentylacja i klimatyzacja”