Rekuperacja w garażu
Moderator: Redakcja e-instalacje.pl
Rekuperacja w garażu
Mam do zrobienia wentylacje z reku dla domu z poddaszem użytkowym ok 180m2 powierzchni użytkowej. Sufity ok 2,7m. mam propozycję instalacji centrali w garażu, który jest połączony z budynkiem przez łącznik stanowiący wiatrołap/ garderobę. Wyrzutnia też w garażu od strony północnej i tamże jest już odpływ. Garaż ma dach dwuspadowy i będzie strop drewniany z izolacją cieplną. Będzie tam też parę pętli podłogówki i jakiś grzejniczek. Ponoć dla centrali wystarczy, żeby temperatura była powyżej 0. Proponowane centrale to Novus 450 lub Aeris next 450 VV TR. W załączniku oryginalna propozycja rozłożenia instalacji gdzie centrala jest na strychu, co ponoś jest nie najlepszym rozwiązaniem. Nie wiem do końca co sądzić o garażu bo z kolei czytam też, że dobrze, aby to było ciepłe pomieszczenie.
-
Tomasz_Brzeczkowski
- Superużytkownik

- Posty: 24711
- Rejestracja: 16 mar 2006, 13:07
- Lokalizacja: Warszawa
Re: Rekuperacja w garażu
Nie lepiej na lepszych polskich centralach? Dom 180m2 z najlepszą centralą (airpack 400 z air++ ) kanałami ze srebrem (komplet ) to maksymalnie 11500 zł brutto 23%.
Tylko Pan uważa, by nie dali Panu wymiennika tzw entalpicznego! Jest on do central z klimatyzacją. Klimatyzacja ma wtedy odprowadzać nadmiar wody, ale zimą... nie bardzo klima działa.
MA PAN ŹLE ZROBIONE NAWIEWY I WYWIEWY. NIE ZBILANSUJE PAN WENTYLACJI!!! Za dużo jest wywiewów! Mogą być tylko w łazienkach wc i mniejszy w kuchni.
Tylko Pan uważa, by nie dali Panu wymiennika tzw entalpicznego! Jest on do central z klimatyzacją. Klimatyzacja ma wtedy odprowadzać nadmiar wody, ale zimą... nie bardzo klima działa.
MA PAN ŹLE ZROBIONE NAWIEWY I WYWIEWY. NIE ZBILANSUJE PAN WENTYLACJI!!! Za dużo jest wywiewów! Mogą być tylko w łazienkach wc i mniejszy w kuchni.
rekuperacja od 1989r
Re: Rekuperacja w garażu
To nie jest ostateczny projekt. Wykonał to zdaje się architekt więc jedynie propozycja. Nie mam jeszcze nic od instalatora wentylacji. Jak będzie przedstawię. Podpytam o te polskie centrale bo co prawda nieraz się nadziewam na jakość polskich produktów, ale uparcie próbuję w nie inwestować
Mówiono mi też, że rekuperacja wysusza powietrze zimą. Czy jest to mocno odczuwalne?
Re: Rekuperacja w garażu
Jak już się decydujesz na rekuperator to nie zapomnij, że jego sprawność zależy od materiału z jakiego jest wykonany wymiennik powietrza i jego powierzchnia wymiany. Ne daj się zwieść takimi reklamami jakie tu dostaniesz, że sprawność to 95%, to są bzdury. Aby taką sprawność uzyskać trzeba mieć mocno przewymiarowany wymiennik. Druga sprawa to materiał. Nie daj się wpakować w plasticzane wymienniki, miedzianych nikt nie robi ale aluminiowy.
Im większy mróz tym niższa wilgotność. Pamiętaj, że wilgotność to pojęcie względne i podaje się je dla konkretnej temp. Przy temp. wewnątrz najlepsza wilgotność będzie na poziomie 35-55%yarecki pisze: Mówiono mi też, że rekuperacja wysusza powietrze zimą. Czy jest to mocno odczuwalne?
Fizyki uczymy się od Brzęczkowskiego, pierwszego na świecie wynalazcy silnika grawitacyjnego (perpetuum mobile).
Re: Rekuperacja w garażu
Dlaczego nie plasticzane? Widze, że oba wymienione przeze mnie to jakieś tworzywa a Paul ponoć jest jednym z najlepszych producentów. Dziwi mnie jak czytam, że ludzie wymieniają rekuperatory po kilku latach. Spory wydatek jak na 3-4 lata czy coś źle zrozumiałem? Czy wywiewòw musi być tyle samo co nawiewów?
Re: Rekuperacja w garażu
Aluminiowe najlepsze - też tak kiedyś myślałem póki nie dostałem do ręki wymiennika z tworzywa który w żaden sposób nie odbiega od alu a jest tańszy w wykonaniu.
Firma Ogólnobudowlana K-BOLBUD Bolesław Wujczyk
Żory - śląskie
Żory - śląskie
-
Tomasz_Brzeczkowski
- Superużytkownik

- Posty: 24711
- Rejestracja: 16 mar 2006, 13:07
- Lokalizacja: Warszawa
Re: Rekuperacja w garażu
"Projekt wykonał laik, który się na wentylacji kompletnie nie zna, nie zbilansuje Pan wentylacji tak zrobionej.yarecki pisze:To nie jest ostateczny projekt. Wykonał to zdaje się architekt więc jedynie propozycja. Nie mam jeszcze nic od instalatora wentylacji. Jak będzie przedstawię. Podpytam o te polskie centrale bo co prawda nieraz się nadziewam na jakość polskich produktów, ale uparcie próbuję w nie inwestowaćMówiono mi też, że rekuperacja wysusza powietrze zimą. Czy jest to mocno odczuwalne?
Będzie do wyboru, albo za sucho w pokojach, albo grzyb w łazience.
W Polsce pierwszy raz zastosowano rekuperację w wentylacji, tu ruszyła pierwsza seryjna produkcja, potem ELGE w Francji, w Polsce jest więcej producentów niż w UE... Holenderskie czy niemieckie centrale są produkowane "pod wysyłke" sporo weszło na paletę. By cena był porównywalna, są robione z tańszych materiałów. Poza tym, ich sprzedawcy, nie znają się na domowych wentylacjach. Więcej tam marketingu niż wiedzy.
Spotkałem takich szkodników, co wywiewy instalują w garderobach, korytarzach, wiatrołapach... Szkoda pisać.
rekuperacja od 1989r
-
Tomasz_Brzeczkowski
- Superużytkownik

- Posty: 24711
- Rejestracja: 16 mar 2006, 13:07
- Lokalizacja: Warszawa
Re: Rekuperacja w garażu
Dobrze, że napisał Pan "ponoć".yarecki pisze:Dlaczego nie plasticzane? Widze, że oba wymienione przeze mnie to jakieś tworzywa a Paul ponoć jest jednym z najlepszych producentów. Dziwi mnie jak czytam, że ludzie wymieniają rekuperatory po kilku latach. Spory wydatek jak na 3-4 lata czy coś źle zrozumiałem?
Instaluję odzysk ciepłą z wentylacji od 1989 roku. Może 5 central na kilka tysięcy, było wymienianych, głównie przez nie wymienianie filtrów. Zapchane filtry uszkodziły wentylatory.
Tak Panu ci od Paula powiedzieli???Czy wywiewòw musi być tyle samo co nawiewów?
Wywiewy mogą być wyłącznie w łazienkach i mały w kuchni. Inaczej nici z bilansu.
To bardzo proste licznie. Proste "równanie"
Nawiew = wywiew
Ilość powietrza nawiewanego a wywiewanego jest w domu identyczna.
Nawiew = 20 do 30m3/h na osobę, Jak będzie w górnej części, lub więcej to będzie za sucho. Pieką oczy, infekcje przez zaschnięte błony śluzowe...
Wywiew to 50m3/h łazienki i 30m3/h kuchnia.
Niech Pan zbilansuje równanie, gdy dołoży wywiewów, gdy wywiewy w korytarzu, garderobie... "zabiorą" powietrze z łazienek.
Pana projekt wykonał szkodnik, nie projektant.
rekuperacja od 1989r
Re: Rekuperacja w garażu
Pralnię potraktował bym jak drugą łazienkę.Tomasz_Brzeczkowski pisze: Wywiewy mogą być wyłącznie w łazienkach i mały w kuchni. Inaczej nici z bilansu.
Najprawdopodobniej to nieświadomi szkodnicy, bo ciężko sobie wyobrazić aby ktoś posiadający wiedzę szkodził celowo.Tomasz_Brzeczkowski pisze: Spotkałem takich szkodników, co wywiewy instalują w garderobach, korytarzach, wiatrołapach... Szkoda pisać.
Re: Rekuperacja w garażu
Przenikalność cieplna dla tego tworzywa jaka jest?Bolas pisze:Aluminiowe najlepsze - też tak kiedyś myślałem póki nie dostałem do ręki wymiennika z tworzywa który w żaden sposób nie odbiega od alu a jest tańszy w wykonaniu.
Fizyki uczymy się od Brzęczkowskiego, pierwszego na świecie wynalazcy silnika grawitacyjnego (perpetuum mobile).
Re: Rekuperacja w garażu
Teraz mam nadzieje trafiłem na fachowca. Plan jest taki aby centralę umieścić w garażu i pociągnąć kanały w rejon pionów kanalizacyjnych na strych i stamtąd pospuszczać na dół. Anemostaty w okolicach okien. Garderoby i wiatrołap mają mieć swoje anemostaty. Pralnia umieszczona obok łazienki z osobnymi drzwiami z tego co pamiętam ma mieć i nawiew i wywiew. Zastanawia mnie to bilansowanie bo w końcu te tzw pomieszczenia mokre nie są w ciągłym użytku więc nie będzie chyba stamtąd stale usuwane połne 50m3? Czy system ma jakieś czujniki, które odczytują kiedy pomieszczenia mokre są właśnie mokre i zwiększają ilość usuwanego powietrza?
-
Tomasz_Brzeczkowski
- Superużytkownik

- Posty: 24711
- Rejestracja: 16 mar 2006, 13:07
- Lokalizacja: Warszawa
Re: Rekuperacja w garażu
Ja zawsze doradzam nawiew. Powodów jest kilka:Pralnię potraktował bym jak drugą łazienkę.
- jak jest tam suszarnia, to lepiej świeże suche powietrze przepuszczać przez czyste pranie, niż wilgotne i zepsute.
-nie powinno się wywiewać powietrza, przez pomieszczenia chłodniejsze niż temperatura w pokojach
-woda w suszarni jest czysta i przyda się do bilansu wilgoci
-wywiewając powietrze poza łazienkami i kuchnią jeszcze przez pralnię, muszę zwiększyć nawiew w pokojach, czyli mieć za sucho, lub zmniejszyć wywiew łazienkach.
Nie da się dobrze wtedy wykonać instalacji.
rekuperacja od 1989r
Re: Rekuperacja w garażu
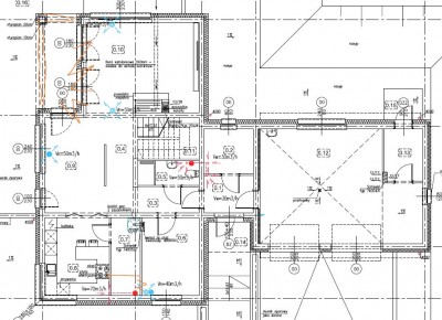
Czyli sam nawiew bez wywiewu? Na tą chwilą plan wygląda jak na załącznikach. Tu może istotna informacja, że mamy strop teriva i nie ma miejsca, żeby wyciągać anemostatów na środek pomieszczeń o ile to ma znaczenie. Zastanawiałem się jednak, czy nie lepiej by było przebić się nad łącznikiem pomiędzy garażem a budynkiem dobrze izolując przewody i wchodząc przy schodach na piętro a stamtąd na strych i dopiero ze strychu wszystko porozprowadzać. Kierunki świata mniej więcej wypadają tak, że południe wypada z lewej strony szkiców.
Re: Rekuperacja w garażu
Mam poważne wątpliwości do takiego rozwiązania.Tomasz_Brzeczkowski pisze:Ja zawsze doradzam nawiew. Powodów jest kilka:Pralnię potraktował bym jak drugą łazienkę.
- jak jest tam suszarnia, to lepiej świeże suche powietrze przepuszczać przez czyste pranie, niż wilgotne i zepsute.
-nie powinno się wywiewać powietrza, przez pomieszczenia chłodniejsze niż temperatura w pokojach
-woda w suszarni jest czysta i przyda się do bilansu wilgoci
-wywiewając powietrze poza łazienkami i kuchnią jeszcze przez pralnię, muszę zwiększyć nawiew w pokojach, czyli mieć za sucho, lub zmniejszyć wywiew łazienkach.
Nie da się dobrze wtedy wykonać instalacji.
1 Gdy jest suszarnia w pralni to powietrze nie jest czyste tylko wzbogacone detergentem.
Nawet nie proponuję suszyć ubrań na próbę w pokoju aby się przekonać, bo można dostać alergii. To szczególnie ważne przy najmłodszych domownikach.
2 Gdy są dwie łazienki to są dwa wywiewy. Pralnia to tak jak by druga łazienka.
U siebie zamontował bym wywiew.yarecki pisze:Czyli sam nawiew bez wywiewu?
Ostatnio zmieniony 02 lis 2016, 15:41 przez -_- greg, łącznie zmieniany 1 raz.
-
Tomasz_Brzeczkowski
- Superużytkownik

- Posty: 24711
- Rejestracja: 16 mar 2006, 13:07
- Lokalizacja: Warszawa
Re: Rekuperacja w garażu
Detergent po płukaniu nie występuje. Gdyby było źle wypłukane, to on nie paruje, zostałby w ubraniu i uczulał.
Przesuszone powietrze to masakra. Szczypią oczy przy komputerze czy przez tv, w nocy zasycha w gardle.
Nie zbilansuje Pan wentylacji przy dwóch łazienkach, pralni i kuchni.
Przesuszone powietrze to masakra. Szczypią oczy przy komputerze czy przez tv, w nocy zasycha w gardle.
Nie zbilansuje Pan wentylacji przy dwóch łazienkach, pralni i kuchni.
rekuperacja od 1989r
