Przewody WM a stropodach, centrala w piwnicy.
Moderator: Redakcja e-instalacje.pl
Przewody WM a stropodach, centrala w piwnicy.
Witam wszystkich forumowiczów.
Czytam to forum już od jakiegoś czasu i wiele się z niego dowiedziałem. Niestety nie udało mi się znaleźć informacji czy porad na temat prowadzenia przewodów WM w przypadku ,gdy nad poddaszem użytkowym chcemy wylać stropodach oraz jak poprowadzić przewody z piwnicy.
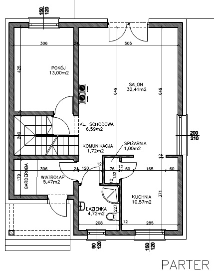
1. Centralę WM chciałbym umieścić w piwnicy ponieważ będzie tam ciepło i dużo miejsca.
2. Przewody WM na parter zalałbym w wylewce stropu parteru pod styropianem.
3. Jak teraz mądrze poprowadzić piony z piwnicy na parter i poddasze, żeby nie było konieczności zabudowywania ich rigipsem?
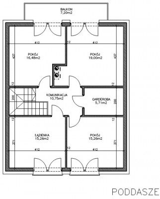
4. Jak mądrze i jakimi kanałami rozprowadzić przewody WM na poddaszu? Czy wyjść nad stropodach i przewodach giętkich izolowanych? Czy może wyjąć nad stropodach i kanały PE puścić w ociepleniu? Czy może przewody PE rozprowadzić pod stropodachem i zrobić sufit podwieszany? Choć ta opcja najmniej mi się podoba.
Bardzo liczę na wasze podpowiedzi i porady:).
Pozdrawiam
Jck1
Czytam to forum już od jakiegoś czasu i wiele się z niego dowiedziałem. Niestety nie udało mi się znaleźć informacji czy porad na temat prowadzenia przewodów WM w przypadku ,gdy nad poddaszem użytkowym chcemy wylać stropodach oraz jak poprowadzić przewody z piwnicy.
1. Centralę WM chciałbym umieścić w piwnicy ponieważ będzie tam ciepło i dużo miejsca.
2. Przewody WM na parter zalałbym w wylewce stropu parteru pod styropianem.
3. Jak teraz mądrze poprowadzić piony z piwnicy na parter i poddasze, żeby nie było konieczności zabudowywania ich rigipsem?
4. Jak mądrze i jakimi kanałami rozprowadzić przewody WM na poddaszu? Czy wyjść nad stropodach i przewodach giętkich izolowanych? Czy może wyjąć nad stropodach i kanały PE puścić w ociepleniu? Czy może przewody PE rozprowadzić pod stropodachem i zrobić sufit podwieszany? Choć ta opcja najmniej mi się podoba.
Bardzo liczę na wasze podpowiedzi i porady:).
Pozdrawiam
Jck1
Pozdrawiam,
Jck1
Jck1
-
Tomasz_Brzeczkowski
- Superużytkownik

- Posty: 24713
- Rejestracja: 16 mar 2006, 13:07
- Lokalizacja: Warszawa
Re: Przewody WM a stropodach, centrala w piwnicy.
Przewód główny, jest na tyle szeroki, że bez zabudowy będzie go ciężko schować. Natomiast, na górze można zainstalować anemostaty w ścianie, a nie w suficie.
rekuperacja od 1989r
Re: Przewody WM a stropodach, centrala w piwnicy.
No i to jest duży problem, jak schować przewody główne? A na górze sugeruje Pan żeby wkuć przewody w ściany do poszczególnych pomieszczeń? Nie będzie lepiej zrobić otwory w stropodachu przy jego zalewaniu i nimi puścić przewody obsługujące poddasze?Tomasz_Brzeczkowski pisze:Przewód główny, jest na tyle szeroki, że bez zabudowy będzie go ciężko schować. Natomiast, na górze można zainstalować anemostaty w ścianie, a nie w suficie.
Pozdrawiam,
Jck1
Jck1
-
Tomasz_Brzeczkowski
- Superużytkownik

- Posty: 24713
- Rejestracja: 16 mar 2006, 13:07
- Lokalizacja: Warszawa
Re: Przewody WM a stropodach, centrala w piwnicy.
Trzeba, by je znacznie wydłużyć, lub ryzykować układ na dodatkowych rozdzielaczach z przelotowym.jck1 pisze:No i to jest duży problem, jak schować przewody główne? A na górze sugeruje Pan żeby wkuć przewody w ściany do poszczególnych pomieszczeń? Nie będzie lepiej zrobić otwory w stropodachu przy jego zalewaniu i nimi puścić przewody obsługujące poddasze?Tomasz_Brzeczkowski pisze:Przewód główny, jest na tyle szeroki, że bez zabudowy będzie go ciężko schować. Natomiast, na górze można zainstalować anemostaty w ścianie, a nie w suficie.
rekuperacja od 1989r
Re: Przewody WM a stropodach, centrala w piwnicy.
Czy to jest jedyne rozwiązanie? A Pan jakby się do tego zabrał?
Pozdrawiam,
Jck1
Jck1
-
Tomasz_Brzeczkowski
- Superużytkownik

- Posty: 24713
- Rejestracja: 16 mar 2006, 13:07
- Lokalizacja: Warszawa
Re: Przewody WM a stropodach, centrala w piwnicy.
Jaka centrala? Ile osób? Jaki układ (rzuty)?jck1 pisze:Czy to jest jedyne rozwiązanie? A Pan jakby się do tego zabrał?
rekuperacja od 1989r
Re: Przewody WM a stropodach, centrala w piwnicy.
Na tą chwilę są 2 osoby, ale myślę że trzeba by docelowo założyć 4 osoby. Rzuty są ale wstępne. Cały czas z architektem dyskutujemy i coś zmieniamy. Nie zdecydowałem się jeszcze w 100% na konkretną centralę. Zależy mi, żeby można było do niej podpiąć dodatkowe elementy jak np. detektor czadu/dymu/gazu czy sygnał otwarcia kominka.Tomasz_Brzeczkowski pisze:Jaka centrala? Ile osób? Jaki układ (rzuty)?jck1 pisze:Czy to jest jedyne rozwiązanie? A Pan jakby się do tego zabrał?
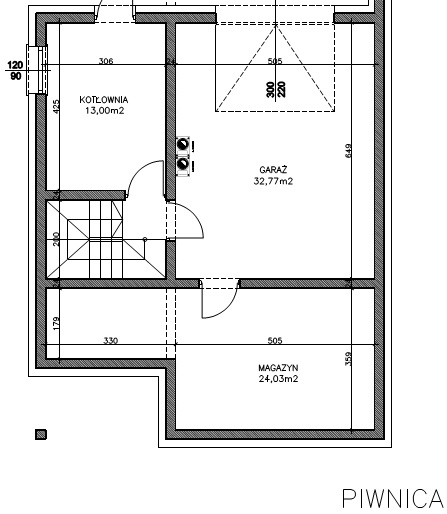
Pomieszczenie "Kotłownia" w piwnicy to pomieszczenie, gdzie będzie kocioł gazowy. Wiem, że Pan jest przeciwnikiem C.O. ale nie skupiajmy się na tym.
Pozdrawiam,
Jck1
Jck1
-
Tomasz_Brzeczkowski
- Superużytkownik

- Posty: 24713
- Rejestracja: 16 mar 2006, 13:07
- Lokalizacja: Warszawa
Re: Przewody WM a stropodach, centrala w piwnicy.
Rekuperację w wentylacji robi się po to, by nie instalować centralnego, propagując rekuperację, jest rzeczą normalną, że jest się przeciwnikiem centralnego (no chyba, że ktoś się na tym nie zna) .Wiem, że Pan jest przeciwnikiem C.O. ale nie skupiajmy się na tym
Poza tym, centralne nie dba o komfort cały rok, więc nie nadaje się do współczesnego budownictwa, gdzie wymagania są inne niż 50 lat temu!
Czy dziś można nazwać samochód bez chłodzenia, komfortowym?
Kolejna kwestia, to standard zeroenergetyczny, który "wchodzi" za 3 lata. Jak podłączyć OZE do gazu???
Także nawet jak ktoś chce więcej płacić za ogrzewanie, to lepiej niech otworzy okno, niż instaluje gaz.
A wracając do tematu... co to jest takie prostokątne z dwoma czarnymi kółkami, to jakiś pion wentylacyjny?
rekuperacja od 1989r
Re: Przewody WM a stropodach, centrala w piwnicy.
Tak, to jest wentylacja grawitacyjna z piwnicy oraz komin dymny z kominka w salonie.
Pozdrawiam,
Jck1
Jck1
-
Tomasz_Brzeczkowski
- Superużytkownik

- Posty: 24713
- Rejestracja: 16 mar 2006, 13:07
- Lokalizacja: Warszawa
Re: Przewody WM a stropodach, centrala w piwnicy.
To co za problem? Nie ma łatwiejszej roboty. Skrzynki przelotowe wysokie na 8 cm z wyjściami 75mm . Godzina roboty i wentylacja z rekuperacją założona, ba żadnej zabudowy.jck1 pisze:Tak, to jest wentylacja grawitacyjna z piwnicy oraz komin dymny z kominka w salonie.
Dziś wentylacja to jak klocki LEGO, trzeba dobrać klocki i złożyć.
rekuperacja od 1989r
Re: Przewody WM a stropodach, centrala w piwnicy.
Może Pan wrzucić zdjęcie jaka skrzynka była by tu do zastosowania? Jaką centralę mógłby Pan zaproponować w moim przypadku?Tomasz_Brzeczkowski pisze:To co za problem? Nie ma łatwiejszej roboty. Skrzynki przelotowe wysokie na 8 cm z wyjściami 75mm . Godzina roboty i wentylacja z rekuperacją założona, ba żadnej zabudowy.jck1 pisze:Tak, to jest wentylacja grawitacyjna z piwnicy oraz komin dymny z kominka w salonie.
Dziś wentylacja to jak klocki LEGO, trzeba dobrać klocki i złożyć.
Pozdrawiam,
Jck1
Jck1
-
Tomasz_Brzeczkowski
- Superużytkownik

- Posty: 24713
- Rejestracja: 16 mar 2006, 13:07
- Lokalizacja: Warszawa
Re: Przewody WM a stropodach, centrala w piwnicy.
To się robi pod konkretny dom. Później zrobię zdjęcie, zrobionej dla kogoś innego, jak będę w magazynie.jck1 pisze:Może Pan wrzucić zdjęcie jaka skrzynka była by tu do zastosowania? Jaką centralę mógłby Pan zaproponować w moim przypadku?Tomasz_Brzeczkowski pisze:To co za problem? Nie ma łatwiejszej roboty. Skrzynki przelotowe wysokie na 8 cm z wyjściami 75mm . Godzina roboty i wentylacja z rekuperacją założona, ba żadnej zabudowy.jck1 pisze:Tak, to jest wentylacja grawitacyjna z piwnicy oraz komin dymny z kominka w salonie.
Dziś wentylacja to jak klocki LEGO, trzeba dobrać klocki i złożyć.
Ale idea jest taka: wykorzystujemy pion i wchodzimy na skrzynki.
rekuperacja od 1989r
Re: Przewody WM a stropodach, centrala w piwnicy.
Idea jest dla mnie jasna. Wydaje mi się jednak, że będę potrzebował takiej skrzynki, która będzie miała wyjścia z boku na obsługę parteru oraz wyjścia od góry żeby obsłużyć poddasze. Czy dobrze myślę? Na rysunku wstawionym przez Pana są dwie skrzynki na wywiewie, co nie jest problemem, ale na nawiewie już chyba nie powinno się tego robić?
Wymagania co do centrali przedstawiłem wcześniej, poleci Pan coś?
Wymagania co do centrali przedstawiłem wcześniej, poleci Pan coś?
Pozdrawiam,
Jck1
Jck1
-
Tomasz_Brzeczkowski
- Superużytkownik

- Posty: 24713
- Rejestracja: 16 mar 2006, 13:07
- Lokalizacja: Warszawa
Re: Przewody WM a stropodach, centrala w piwnicy.
To nie mój rysunek... chodzi mi tylko o ideę skrzynek przelotowych. Wtedy jest więcej skrzynek niż dwie.
Robi się tak, gdy nie da rady na dwóch skrzynkach.
Robi się tak, gdy nie da rady na dwóch skrzynkach.
rekuperacja od 1989r
Re: Przewody WM a stropodach, centrala w piwnicy.
Prosiłbym zatem jak będzie możliwość o załączenie zdjęcia tej skrzyneczki. A w przypadku skrzynki obsługującej poddasze dawać ją nad stropem betonowym w styropianie, czy może zatopić ją i przewody w tym stropie?
Jaką centralę Pan by zaproponował przy tym rozwiązaniu?
Jaką centralę Pan by zaproponował przy tym rozwiązaniu?
Pozdrawiam,
Jck1
Jck1
