Przeniesienie kuchni, modyfikacja wentylacji

Jeżeli Twoje rachunki za ogrzewanie są spore, masz pleśń w pokoju to może być spowodowane złą wentylacją w domu czy w mieszkaniu. Dowiedz się jak temu zaradzić i stworzyć zdrowy klimat w domu.

Moderator: Redakcja e-instalacje.pl

mylo
Początkujący
Początkujący
Posty: 1
Rejestracja: 28 cze 2022, 0:46

Przeniesienie kuchni, modyfikacja wentylacji

Post autor: mylo »

Witam serdecznie!

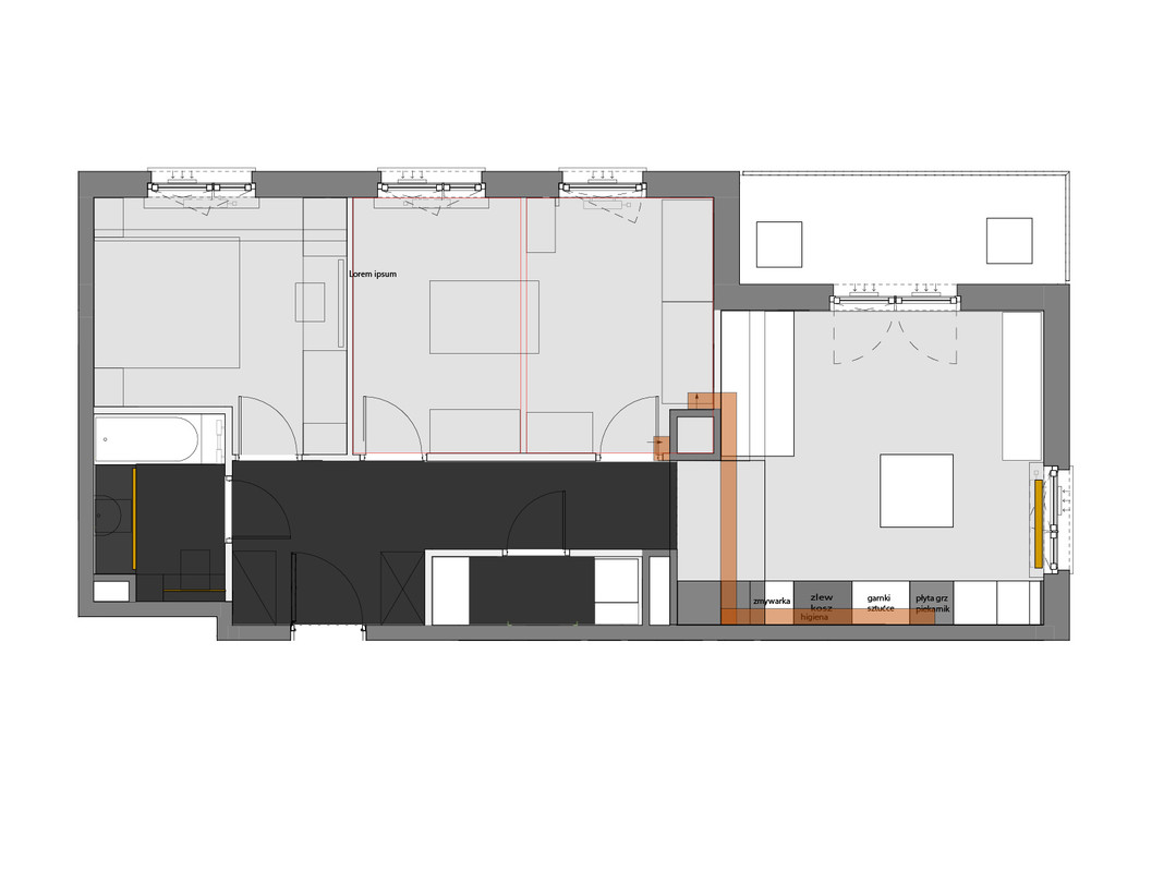
Mam pytanie odnośnie modyfikacji wentylacji. Zastanawiam się nad kupnem mieszkania i przeniesienia kuchni do salonu. W kuchni jest wentylacja mechaniczna i grawitacyjna.
Wentylacja grawitacyjna musiałaby być poprowadzona poziomym (lub z drobnym spadkiem) kolankiem jakieś 30cm pod kątem 90 stopni.
Mechaniczna musiałaby lecieć do okapu ok 6 metrów.

Na zdjęciu na pomarańczowo przebieg zmodyfikowanej wentylacji. Krótka po lewej to grawitacyjna, długa mechaniczna do okapu.

Obrazek

Prosiłbym o opinie czy wentylacja grawitacyjna na takim krótkim odcinku dużo straci z mocy. Z góry dzięki.

ODPOWIEDZ

Wróć do „Wentylacja i klimatyzacja”