Przychodzę z pytaniem oraz z prośbą o poradę dot. norm prawnych względem wentylacji.
Mianowicie zakupiłem mieszkanie od dewelopera (akt notarialny umowa sprzedaży końcowa + rzuty mieszkania), ale jeszcze go nie odebrałem.
a nie odebrałem ponieważ mam wątpliwości względem wentylacji mechanicznej oraz jej podłączenia do mieszkania.
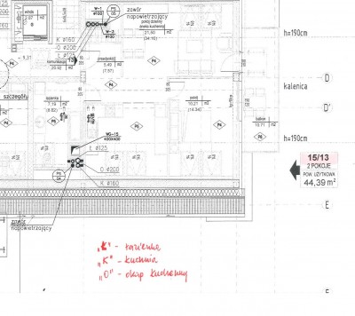
Deweloper wykonał wentylację mechaniczną w kuchni oraz w łazience i dokonał wpięcia mojego mieszkania z kratkami na wysokości 80 cm od podłogi.
Tłumaczy to niemożliwością wykonania instalacji inaczej, ponieważ pion wentylacyjny przechodzi przez skos w moim mieszkaniu.
Jednakże problem pojawia się w innym miejscu, a mianowicie na projektach (rzutach) dołączonych do aktu notarialnego, można zauważyć wyloty wentylacyjne usytuowane przez projektanta w górnej części ściany przy suficie (jak nie na suficie), czyli na wysokości 300cm.
Problem pojawia się taki:
1. Wentylacja jest usytuowana na wysokości 80 cm prawie w rogu pomieszczenia pod skosem
2. Pomieszczenie jest otwarte na resztę mieszkania i posiada wysokość do sufitu poza skosem w wysokości 300cm
okap nie ma jak podpiąć, pomimo że jest wypuszczony wylot dla okapu bo jest o 150-200 cm niżej niż zakładana wysokość dla okapu. oraz jest to poniżej linii blatów, które miały być w tamtym miejscu
3. w moim odczuciu jest to niezgodność z projektem, chociaż jeszcze nie otrzymałem projektu powykonawczego - ale też, jeżeli różni się od projektu pod umową sprzedaży to nie zostało to ze mną uzgodnione
4. Boję się, że ta wentylacja nie będzie dobrze działała. Bo taka sama sytuacja jest również w łazience, tylko tam jest na wysokości 120 cm otwór
5. Czy źle czytam oznakowanie rzutów i strzałki nie określają kierunku powietrza wraz z ujściem powietrza z pomieszczenia?
Czy są normy określające miejsce dla wentylacji mechanicznej?
w zał rzuty oraz obrys jak to zostało wykonane

