Dzień dobry,
z racji na częste upały postanowiłem rozważyć montaż w mieszkaniu klimatyzacji ściennej.
Mieszkanie póki co się buduje, a ja zastanawiam się gdzie najrozsądniej (i jak) zamontować jednostkę zewnętrzną i wewnętrzną. Czy mógłbym prosić o fachowe sugestie?
Wiem, że jest obostrzenie nt. montażu jednostki zewnętrznej tylko na balkonie, a problem jest taki, że owy balkon mam od sypialni, a jednostkę wewnętrzną pewnie dobrze byłoby umieścić w salonie. :/ Dlatego jestem ciekaw co by było w tej sytuacji polecane.
Czy ktoś pomoże?
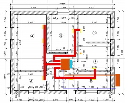
Link do planu mieszkania:
https://i.postimg.cc/PT0tkGfF/mieszkanie-wymiary-01.jpg
Pozdrawiam,
Hidden
Pomoc przy lokalizowaniu klimatyzatora - mieszkanie 70m2
Moderator: Redakcja e-instalacje.pl
-
Tomasz_Brzeczkowski
- Superużytkownik

- Posty: 24711
- Rejestracja: 16 mar 2006, 13:07
- Lokalizacja: Warszawa
Re: Pomoc przy lokalizowaniu klimatyzatora - mieszkanie 70m2
Można założyć kanałówkę 4700+3000 montaż
Lub konsole 3700 + 1000 montaż
Z tym, że przy konsoli drzwi pokoi powinny zostać otwarte
WARUNKIEM KOMFORTOWEJ I CICHEJ PRACY KLIMATYZACJI JEST WENTYLACJA Z ODZYSKIEM CIEPŁA.
Przy chłodzeniu nie działa tzw wentylacja grawitacyjna, powietrze w mieszkaniu jest cięższe niż na zewnątrz. jak pootwieramy okna, klimatyzator będzie głośniejszy i mało przyjemny, zbyt silny nawiew zimnego powietrza.
Lub konsole 3700 + 1000 montaż
Z tym, że przy konsoli drzwi pokoi powinny zostać otwarte
WARUNKIEM KOMFORTOWEJ I CICHEJ PRACY KLIMATYZACJI JEST WENTYLACJA Z ODZYSKIEM CIEPŁA.
Przy chłodzeniu nie działa tzw wentylacja grawitacyjna, powietrze w mieszkaniu jest cięższe niż na zewnątrz. jak pootwieramy okna, klimatyzator będzie głośniejszy i mało przyjemny, zbyt silny nawiew zimnego powietrza.
rekuperacja od 1989r
