Ceny szaleją, a ja zdecydowałem się budować na wiosnę 2023 roku
Dom z poddaszem użytkowym i częściowym podpiwniczeniem.
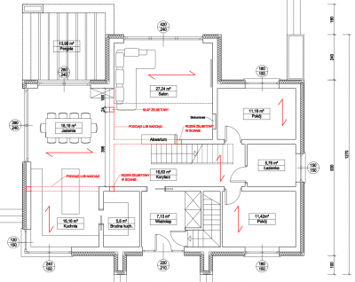
Powierzchnia i cechy stropu między parterem, a piętrem:
- 128,3 m2 licząc razem z powierzchnią ścian zewnętrznych
- 120 m2 bez powierzchni ścian zewnętrznych
- w części salonowej nie będzie stropu - antresola (zaznaczone na rzucie linią przerywaną)
- będą rdzenie żelbetowe od parteru podtrzymujące dach
- zamiast słupa (jak na rzucie) będzie przedłużenie ściany nośnej o 80 cm
- na podciągu w salonie będzie opierać się ściana działowa na piętrze i możliwe że część dachu (wszystko się jeszcze projektuje)
Powierzchnia stropu między piwnicą a parterem:
- 63,1 m2 licząc razem z powierzchnią ścian zewnętrznych
- 55,4 m2 bez powierzchni ścian zewnętrznych
- strop prostokątny, opierający się na ścianach nośnych, bez żadnych podciągów itp
Nie mam jeszcze szczegółów ile stali, jakie zbrojenie itp ponieważ stoję przez wyborem - jaki strop. Jak wybiorę to on dopiero taki zaprojektuje, a ciężko wybrać nie znając kompletnie kosztów i innych parametrów. Jak pytam budowlańców to każdy twierdzi że "ceny zmienne i nie mogę powiedzieć", albo "to zależy". Ja mam świadomość że to zależy od wielu czynników, ale chyba da się oszacować tak mniej więcej. Może jest ktoś na forum kto aktualnie buduje podobny dom i może się podzielić informacjami ile kosztował m2 takiego stropu? Budowa będzie w okolicach Zamościa (woj. lubelskie).
Nawet stwierdzenie że monolit jest droższy o X procent od terivy da mi dużo bo będę wiedział czy opłaca mi się dopłacać te X procent kwoty.

