garaż + buro

Jak nie zginąć w gąszczu przepisów i co zrobić, by podejmowane przez nas prace były wykonane zgodnie z przepisami? Niedopełnienie przepisów prawa budowlanego może mieć bardzo poważne konsekwencje. Jeśli zastanawiasz się na jakie prace potrzebne jest pozwolenia na budowę, jak je uzyskać, jakie wymagania formalne trzeba spełnić ? tu znajdziesz pomoc.

Moderator: Redakcja e-mieszkanie.pl

q92
Początkujący
Początkujący
Posty: 1
Rejestracja: 26 lis 2020, 14:10

garaż + buro

Post autor: q92 »

Witam wszystkich

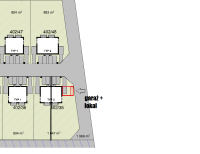
Jesteśmy na etapie zakupu połowy bliźniaka od dewelopera . Na wstępnie dodam ,że jestem amatorem jeśli chodzi o budowlankę .Bliźniak nie posiada on garażu i mamy w planie jeśli będzie to możliwe wykonanie garażu szkieletowego pokrytego blachą (podobną jak dach ) zdj w załączeniu . z prawej strony domu deweloper miał w projekcie wiatę , z której zrezygnowaliśmy ponieważ chcemy zrobić właśnie swój garaż z lokalem na biuro . Nie wiem gdzie uzyskać informacje czy właśnie taki mogę postawić:

garaż z lokalem szerokość 9m dł 6,5 m .

Z góry będę wdzięczny za informacje czy mimo ,że postawię go bez fundamentów to potrzebuję pozwolenie na budowę . Czy jeśli będzie one potrzebne to może lepiej będzie zrobić murowany w podobnej elewacji do budynku oraz jak wygląda postawienie pawilonów znalazłem takie gotowe ok 50-60 m2 garaż plus mały lokal .
Załączniki
3 (1).jpg
Bez tytułu.png

Diodu
Początkujący
Początkujący
Posty: 4
Rejestracja: 21 paź 2020, 11:49

Re: garaż + buro

Post autor: Diodu »

Wiesz co, szczerze, gdybym był na twoim miejscu, to kupowałbym raczej bliźniak już z garażem. Zobacz, nie dość, że inwestujesz sporą kasę w dom, to teraz masz dodatkowe koszty, bo sam musisz zatroszczyć się o garaż. To chyba słaba opcja? Bliźniaki Piaseczno od dewelopera mają, co trzeba. Przyjaciel właśnie od nich kupował swój wymarzony dom. Realizacja na poziomie, wykończenie w wysokim standardzie, do tego przestrzeń zagospodarowana bardzo funkcjonalnie.

ODPOWIEDZ

Wróć do „Prawo budowlane”