Aktualnie wanna znajduje się tam gdzie prysznic (na zielono wrysowana) a miska wc i umywalka prawie identycznie jak na nowym rysunku. Proszę o poradę
Remont łazienki odpływ liniowy
Moderator: Redakcja e-mieszkanie.pl
Remont łazienki odpływ liniowy
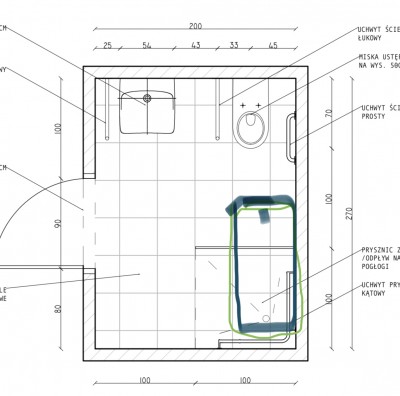
Witajcie! Robię remont łazienki w bloku z wielkiej płyty. Łazienka będzie dostosowana do potrzeb osoby niepełnosprawnej. Moje pytanie dotyczy prysznica z odpływem liniowym- czy jest narysowany w dobrym miejscu? Wykonawca upiera się, że prysznic powinien być tam gdzie jest narysowana umywalka.
Aktualnie wanna znajduje się tam gdzie prysznic (na zielono wrysowana) a miska wc i umywalka prawie identycznie jak na nowym rysunku. Proszę o poradę
Aktualnie wanna znajduje się tam gdzie prysznic (na zielono wrysowana) a miska wc i umywalka prawie identycznie jak na nowym rysunku. Proszę o poradę
