Zmiana aranżacji kuchni

Pomysły na wystrój kuchni, dobór armatury kuchennej i mebli. Porady jak zaprojektować funkcjonalną, oryginalną kuchnię. Radzimy jakie dobrać meble kuchenne, sprzęt AGD oraz odpowiedni zlewozmywak. Nowości dotyczące trendów w aranżacji przestrzeni kuchennej.

Moderator: Redakcja e-mieszkanie.pl

aniajagla
Początkujący
Początkujący
Posty: 1
Rejestracja: 12 lis 2020, 23:16

Zmiana aranżacji kuchni

Post autor: aniajagla »

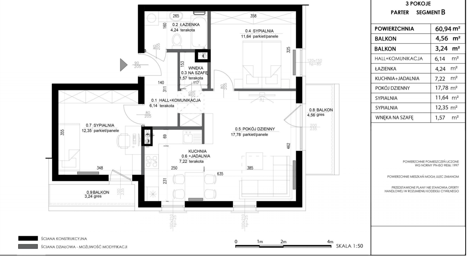
Chciałabym trochę zmienić projekt mieszkania przez wyburzenie jednej ściany w kuchni (ta ze zlewozmywakiem na rysunku). Spowoduje to otwarcie przestrzeni, ale również pomniejszenie kuchni i jej blatów roboczych.
Z tego powodu postanowiłam (w miejsce stołu na rysunku) postawić wyspę na której będzie znajdowała się płyta indukcyjna. Wyspa miałaby ok. 220 cm.
Teraz moje pytanie jest takie. Co zrobić z pionem który widać w kuchni? Ma wymiary ok 30x69 cm i z jednej strony mogę go zabudować. Czy pociągnąć szafki od lodówki do pionu, czy tam zrobić cargo, które będzie wystawało od boku.
A piekarnik? Musi być zlokalizowany pod wyspą bo innego rozwiązania za bardzo nie widzę, chociaż marzy mi się taki zabudowany jak lodówka, ale po drugiej stronie.
Na ścianie byłaby lodówka, kawałek blatu, zlewozmywak i dalej blat.
Pomóżcie, w jaki sposób przeprojektować tą kuchnie żeby była funkcjonalna?
Załączniki
M 3B.png
3B.png
3B.png (27.89 KiB) Przejrzano 3163 razy

tureqt0
Aktywny
Aktywny
Posty: 137
Rejestracja: 27 lip 2017, 19:46

Re: Zmiana aranżacji kuchni

Post autor: tureqt0 »

A nie lepiej by było dać lodówkę tu gdzie masz zlewozmywak, a go przesunąć pod te piony? I wtedy piekarnik można zrobić w miejscu lodówki w formie takiego wyższego mebla, komina, by był nie na dole ale wyżej. Można nawet zaszaleć i poszukac takiego piekarnika, który pozwala na pieczenie dwóch potraw jednocześnie (zamiast dwóch piekarników, których i tak byś tutaj nie zmieściła). Na pewno Solgaz ma takie dwa modele. I chyba u kogoś jeszcze widziałem ale nie kojarzę. Ten pamiętam, bo widziałem jak to fajnie działa :)

MarcinJ1985
Początkujący
Początkujący
Posty: 28
Rejestracja: 01 paź 2020, 10:19

Re: Zmiana aranżacji kuchni

Post autor: MarcinJ1985 »

Do dekoracji ścian w takich kuchniach można zastosować płytki ręcznie formowane Vandersanden. Mamu siebie, ekstra sie prezentują, do tego nadają kuchni charakteru

e-Rzecznik Śnieżka
Superużytkownik
Superużytkownik
Posty: 1227
Rejestracja: 25 maja 2012, 8:26
Kontakt:

Re: Zmiana aranżacji kuchni

Post autor: e-Rzecznik Śnieżka »

A gdyby całą ścianę z pionem zabudować wysoko a wyspę przedłużyć blatem pod oknem? Układ urządzeń mógłby wtedy wyglądać tak jak na rysunku (w zabudowie lodówka, piekarnik na wysokości a pod nim zmywarka) Na pionie płytkie szafki na akcesoria kuchenne a w zabudowie pojemne cargo.
Nad wyspą można (w zależności od stylu aranżacji) zaplanować minimalistyczny okap sufitowy lub ozdobne wieszaki. Przy takim rozplanowaniu przestrzeni grzejnik pod oknem trzeba zamienić na ogrzewanie podłogowe
11.jpg

szymiszymi
Zainteresowany
Zainteresowany
Posty: 65
Rejestracja: 11 sty 2016, 0:13

Re: Zmiana aranżacji kuchni

Post autor: szymiszymi »

Macie rację co do dekoracji ścian, są materiały łatwe w obróbce i układaniu, które dają bardzo ciekawy efekt. Fajnie wyglądają płytki ręcznie formowane Vandersanden. Można je stosować na różne powierzchnie w różnych miejscach

Romano75
Zainteresowany
Zainteresowany
Posty: 75
Rejestracja: 24 kwie 2020, 12:33

Re: Zmiana aranżacji kuchni

Post autor: Romano75 »

tez myslalem u siebie o zmianie kuchni z zona ale ciezko cos wymyslec fajnego szukamy inspiracji poki co w internecie moze cos fajnego znajdziemy

ideakuchni
Początkujący
Początkujący
Posty: 5
Rejestracja: 10 kwie 2021, 13:17

Re: Zmiana aranżacji kuchni

Post autor: ideakuchni »

Fajne inspiracje można znaleźć na pintereście lub na stronach, gdzie chwalą się swoimi zrealizowanymi projektami. Ja osobiście bardzo często w praktyce skupiam się na tym, żeby klienci pokazali mi przykładowe projekty, np. właśnie z pinteresta lub instagrama i potem projektujemy/aranżujemy wnętrze :)

waldi79
Aktywny
Aktywny
Posty: 278
Rejestracja: 28 gru 2018, 11:09

Re: Zmiana aranżacji kuchni

Post autor: waldi79 »

Polecam płytki ze starej cegły. nie dość, że prezentują się fantastycznie, to i służą na długie lata!

plagit
Początkujący
Początkujący
Posty: 5
Rejestracja: 23 cze 2021, 16:52

Re: Zmiana aranżacji kuchni

Post autor: plagit »

sprawdz czy to nie są ściany nośne

lorenss
Początkujący
Początkujący
Posty: 32
Rejestracja: 22 lis 2018, 11:14

Re: Zmiana aranżacji kuchni

Post autor: lorenss »

Z tym akurat nie ma żartów.

lideropinii
Superużytkownik
Superużytkownik
Posty: 1648
Rejestracja: 03 kwie 2015, 18:26

Re: Zmiana aranżacji kuchni

Post autor: lideropinii »

waldi79 pisze:Polecam płytki ze starej cegły. nie dość, że prezentują się fantastycznie, to i służą na długie lata!
Tak naturalna stara cegła we wnętrzu, dobrze wkomponowana w aranżację wygląda pięknie.
Pozdrawiamy, zespół Decoroom

Prawdziwe piękno kryje się we wnętrzu ...

e-Rzecznik_Magnat
Superużytkownik
Superużytkownik
Posty: 654
Rejestracja: 27 lis 2014, 20:38
Lokalizacja: Warszawa

Re: Zmiana aranżacji kuchni

Post autor: e-Rzecznik_Magnat »

Szanowni Państwo,
Do malowania sufitu oraz ścian rekomenduję farbę Magnat Creative Kitchen&Bathroom. Farba bardzo dobrze kryje, nie chlapie podczas malowania, równomiernie wysycha tworząc estetyczną powierzchnię, odporną na plamy, zabrudzenia, tłuszcze, środki czystości. Dodatkowo posiada właściwości hydrofobowe (odpycha zabrudzenia wodne) oraz oleofobowe (odpycha zabrudzenia na bazie tłuszczy).

Allexx
Początkujący
Początkujący
Posty: 2
Rejestracja: 16 mar 2021, 12:18

Re: Zmiana aranżacji kuchni

Post autor: Allexx »

Polecam płytki ze starej cegły Vikto Brick.

ODPOWIEDZ

Wróć do „Kuchnie”