Czy jest szansa aby jeszcze wstawić stół dla 4osób. Dodam że budynek nie ma jeszcze ścian jedynie fundamenty a więc wszystkie chwyty dozwolone
Aranżacja kuchni - czy można wstawić stół
Moderator: Redakcja e-mieszkanie.pl
-
Gość7067
Aranżacja kuchni - czy można wstawić stół
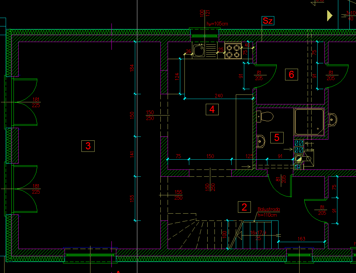
Chciałbym prosić o pomoc przy aranżacji kuchni (rzut w załączniku)
Czy jest szansa aby jeszcze wstawić stół dla 4osób. Dodam że budynek nie ma jeszcze ścian jedynie fundamenty a więc wszystkie chwyty dozwolone
Czy jest szansa aby jeszcze wstawić stół dla 4osób. Dodam że budynek nie ma jeszcze ścian jedynie fundamenty a więc wszystkie chwyty dozwolone
Re: Aranżacja kuchni - czy można wstawić stół
Zamów sobie koniecznie stół na zamówienie, wtedy będziesz miała pewny kształt i wymiary. Może stół okrągły? Prześlij projekt do https://www.paulbunyan.pl/ myślę, że Ci coś podpowiedzą, tam na zamówiony asortyment czeka się około 8-10 tygodni 
-
lideropinii
- Superużytkownik

- Posty: 1648
- Rejestracja: 03 kwie 2015, 18:26
Re: Aranżacja kuchni - czy można wstawić stół
Warto też pomyśleć o tym aby była opcja korzystania z niego na co dzień w wersji mini i w przypadku potrzeby z możliwością rozłożenia na większą ilość osób.
Pozdrawiamy, zespół Decoroom
Prawdziwe piękno kryje się we wnętrzu ...
Prawdziwe piękno kryje się we wnętrzu ...
Re: Aranżacja kuchni - czy można wstawić stół
Zgadzam się z bobik5
Słyszałem wiele pozytywnych opinii na temat stołów marki PaulBunyan. Niebawem będziemy się budować i też planuję zamówić u nich stół do jadalni. Podobno ich wyroby są tak dobrej jakości, że spokojnie mogą przetrwać w rodzinie kilka pokoleń, także zakup jak najbardziej na lata. A Wy co sądzicie o tego typu stołach ?
Re: Aranżacja kuchni - czy można wstawić stół
Ktoś proponował stół składany i rozkładany - świetna sprawa. Nie tylko ławiej go tam umieścić, ale też nie potrzeba cały czas aż tyle miejsca - a na czas rozkładania, można coś lekko przesunąć 
Re: Aranżacja kuchni - czy można wstawić stół
Rozkładany stół to dobry pomysł. Moim zdaniem nie ma co kupować zwykłego.
Re: Aranżacja kuchni - czy można wstawić stół
Jasne, że możesz wstawić stół - może standardowy z meblowego będzie trochę zawadzał, dlatego ja na Twoim miejscu zdecydowałabym się na stół na zamówienie.Będzie przynajmniej taki jak chcesz. Fajną ofertę ma firma http://pracowniastolow.pl/
Re: Aranżacja kuchni - czy można wstawić stół
A może wyspa kuchenna i hokery do tego?
-
sambonierka
- Początkujący

- Posty: 4
- Rejestracja: 03 cze 2017, 20:56
Re: Aranżacja kuchni - czy można wstawić stół
szansa jest ale stół nie może być za duży, pomyśl nad rozkładanym.
-
Patrycja267
- Aktywny

- Posty: 164
- Rejestracja: 07 wrz 2016, 10:59
Re: Aranżacja kuchni - czy można wstawić stół
Jasne, że tak
W końcu gdzieś trzeba jeść rodzinne posiłki, a nie każdy ma oddzielną jadalnię. Przejrzyj sobie internetowy sklep meblo domu z Rzeszowa: https://meble-do.pl/meble-kuchenne.html
Re: Aranżacja kuchni - czy można wstawić stół
Potwierdzam pozytywne opinie na temat stołów Paul Bunyan. Moi rodzice mają taki w swojej jadalni i serio robi wrażenie. Ogromny, masywny i wykonany bardzo starannie. Na pewno jest wart swojej ceny.
-
KarolinaSarnecka
- Początkujący

- Posty: 7
- Rejestracja: 28 cze 2017, 9:39
Re: Aranżacja kuchni - czy można wstawić stół
Gdybym ja teraz aranżowała kuchnię, to na pewno znalazłyby się w niej panele szklane z ilustracjami warzyw i owoców. Dodatkowo chciałabym mieć bar i wszystkie blaty wykonane ze spieków kwarcowych.
-
kat.kowalska
- Początkujący

- Posty: 9
- Rejestracja: 06 lip 2017, 14:30
Re: Aranżacja kuchni - czy można wstawić stół
Sądzę, że zmieści bez problemu, jednak najlepszym rozwiązaniem będzie zamówić u stolarza stół okrągły. Może nawet delikatnie rozkładany.
Re: Aranżacja kuchni - czy można wstawić stół
Widzę tutaj wiele naprawdę przydatnych wskazówek.
-
lideropinii
- Superużytkownik

- Posty: 1648
- Rejestracja: 03 kwie 2015, 18:26
Re: Aranżacja kuchni - czy można wstawić stół
Jeśli mamy naprawdę duży salon to dlaczego nie? Jakąś to przestrzeń trzeba zagospodarować.rannata pisze:Rozkładany stół to dobry pomysł. Moim zdaniem nie ma co kupować zwykłego.
Pozdrawiamy, zespół Decoroom
Prawdziwe piękno kryje się we wnętrzu ...
Prawdziwe piękno kryje się we wnętrzu ...

