Dom jednorodzinny dwulokalowy problem z akustyką
Moderator: Redakcja e-izolacje.pl
-
HenekSiewarga
- Początkujący

- Posty: 6
- Rejestracja: 09 sie 2021, 12:45
Dom jednorodzinny dwulokalowy problem z akustyką
Witam serdecznie.
Pisze do was z prośbą o wskazówki, zanim jednak problem opiszę to powiem jak wygląda rzut lokalu
Jest to dom jednorodzinny dwulokalowy, parter piętro i poddasze, ściana dzieląca lokale to silikat 24 cm, klasa gęstości chyba 1600. Pozostałe ściany są zbudowane z betonu komórkowego. Zamysł dewelopera to to żeby ściana dzieląca była dobra akustycznie a reszta z BK żeby było ciepło.
Strop wspólny.
Problem jest związany z łazienką sąsiada na piętrze. Wzdłuż wspólnej ściany lecą dwa pokoje a na środku między nimi jest łazienka, za scianą łazienka sąsiada,
Gdy sąsiad korzysta z łazienki to dźwięk lanej wody niesie się ścianami i słyszę te dźwięki nawet w biurze, które nie przylega do ściany sąsiada. Słyszę gdy spuszcza wodę, mocno kaszlnie, szura piętami po wannie itd. I jest to mocno irytujące. Ten dźwięk niesie się ścianami albo stropem, na pewno nie powietrzem bo generalnie dźwięki powietrzne są dosyć dobrze tłumione.
Czy da się temu zaradzić jakoś domowymi sposobami ? Jakieś lifehacki ?
Problem pogłębiać może to że sąsiad ma schody z płyt kamiennych a nie z drewna, ma dużo płytek ceramicznych na podłogach, podłogę drewnianą ma tylko w pokojach na piętrze i na poddaszu.
Znaczenie może mieć też to że ja nie mam jeszcze podłogi zrobionej na poddaszu, jest sama wylewka. Może dlatego to się tak niesie ? Tylko że to jest nad poziomem w którym problem się pojawia.
U mnie też mało rzeczy wisi na ścianach, jest spore echo na piętrze.
I druga sprawa. Róg każdego z pokoi przylega do łazienki sąsiada. Za rogiem jednego z nich jest wanna w łazience sąsiada. Pokój jest prawie pusty.
Czy jeżeli w róg ten ściany wsadzę szafę za pomocą której docisnę korek akustyczny to uda się wyciszyć ten róg ? Spałem w rogu tej ściany i słychać jak cholera jak się sąsiad myje, nie chcę mówić jak to działa na wyobraźnię
Będę wdzięczny za porady, niestety nie chce już niczego demolować i szukam jakichkolwiek rozwiązań które częściowo poradzą Sobie z problemem.
Pisze do was z prośbą o wskazówki, zanim jednak problem opiszę to powiem jak wygląda rzut lokalu
Jest to dom jednorodzinny dwulokalowy, parter piętro i poddasze, ściana dzieląca lokale to silikat 24 cm, klasa gęstości chyba 1600. Pozostałe ściany są zbudowane z betonu komórkowego. Zamysł dewelopera to to żeby ściana dzieląca była dobra akustycznie a reszta z BK żeby było ciepło.
Strop wspólny.
Problem jest związany z łazienką sąsiada na piętrze. Wzdłuż wspólnej ściany lecą dwa pokoje a na środku między nimi jest łazienka, za scianą łazienka sąsiada,
Gdy sąsiad korzysta z łazienki to dźwięk lanej wody niesie się ścianami i słyszę te dźwięki nawet w biurze, które nie przylega do ściany sąsiada. Słyszę gdy spuszcza wodę, mocno kaszlnie, szura piętami po wannie itd. I jest to mocno irytujące. Ten dźwięk niesie się ścianami albo stropem, na pewno nie powietrzem bo generalnie dźwięki powietrzne są dosyć dobrze tłumione.
Czy da się temu zaradzić jakoś domowymi sposobami ? Jakieś lifehacki ?
Problem pogłębiać może to że sąsiad ma schody z płyt kamiennych a nie z drewna, ma dużo płytek ceramicznych na podłogach, podłogę drewnianą ma tylko w pokojach na piętrze i na poddaszu.
Znaczenie może mieć też to że ja nie mam jeszcze podłogi zrobionej na poddaszu, jest sama wylewka. Może dlatego to się tak niesie ? Tylko że to jest nad poziomem w którym problem się pojawia.
U mnie też mało rzeczy wisi na ścianach, jest spore echo na piętrze.
I druga sprawa. Róg każdego z pokoi przylega do łazienki sąsiada. Za rogiem jednego z nich jest wanna w łazience sąsiada. Pokój jest prawie pusty.
Czy jeżeli w róg ten ściany wsadzę szafę za pomocą której docisnę korek akustyczny to uda się wyciszyć ten róg ? Spałem w rogu tej ściany i słychać jak cholera jak się sąsiad myje, nie chcę mówić jak to działa na wyobraźnię
Będę wdzięczny za porady, niestety nie chce już niczego demolować i szukam jakichkolwiek rozwiązań które częściowo poradzą Sobie z problemem.
Re: Dom jednorodzinny dwulokalowy problem z akustyką
Witaj HenekSiewarga
Zamieść proszę na forum rzut parteru i piętra.
Sprawdź, czy w ścianie międzylokalowej wmurowano pustaki wentylacyjne lub wykonano bruzdy instalacyjne w ścianach? Jeśli tak, to znaczy, że w murze o dobrej izolacyjności akustycznej wykonano mostki akustyczne. W poprawnie wykonanej przegrodzie międzylokalowej przewody wentylacyjne powinny być dostawione do pełnej ściany.
Sprawdź, czy otwory w ścianie na puszki elektryczne były wykonywane w obu lokalach w tym samym miejscu (tzn. przelotowo)? Jeśli tak, oznacza to kolejny błąd.
Jeśli posiadasz zdjęcia ścian międzylokalowych, przed ich otynkowaniem lub w jakimś miejscu ściana nie została jeszcze otynkowana, to przyjrzyj się spoinom pionowym. Silikaty akustyczne powinny mieć również wypełnione zaprawą spoiny pionowe. To pozwala zapewnić wysoką izolacyjność akustyczną deklarowaną przez producenta.
Zamieść proszę na forum rzut parteru i piętra.
-
HenekSiewarga
- Początkujący

- Posty: 6
- Rejestracja: 09 sie 2021, 12:45
Re: Dom jednorodzinny dwulokalowy problem z akustyką
Witam.Om3k pisze:Witaj HenekSiewarga
Zamieść proszę na forum rzut parteru i piętra.
Sprawdź, czy w ścianie międzylokalowej wmurowano pustaki wentylacyjne lub wykonano bruzdy instalacyjne w ścianach? Jeśli tak, to znaczy, że w murze o dobrej izolacyjności akustycznej wykonano mostki akustyczne. W poprawnie wykonanej przegrodzie międzylokalowej przewody wentylacyjne powinny być dostawione do pełnej ściany.
Sprawdź, czy otwory w ścianie na puszki elektryczne były wykonywane w obu lokalach w tym samym miejscu (tzn. przelotowo)? Jeśli tak, oznacza to kolejny błąd.
Jeśli posiadasz zdjęcia ścian międzylokalowych, przed ich otynkowaniem lub w jakimś miejscu ściana nie została jeszcze otynkowana, to przyjrzyj się spoinom pionowym. Silikaty akustyczne powinny mieć również wypełnione zaprawą spoiny pionowe. To pozwala zapewnić wysoką izolacyjność akustyczną deklarowaną przez producenta.
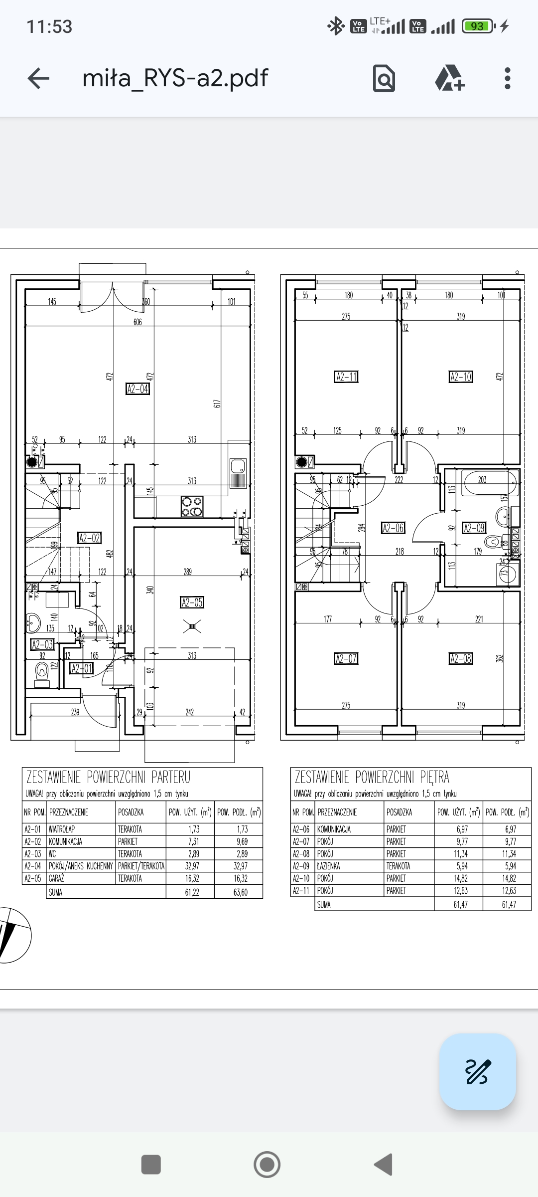
Dodaje w załączeniu rzut parteru i piętra, bez poddasza
Jeżeli chodzi o instalacje wentylacyjną w łazience, to posiadam ( sąsiad tak samo ) dodatkową warstwę ściany w której znajdują się kanały wentylacyjne.
Czyli silikat idzie po całej szerokości lokalu a w łazience domurowany jest fragment na wentylację. Do niego także wmurowano część instalacji sanitarnej. Więc jeżeli chodzi o to to nie ingerowano w ścianę miedzylokalową.
W ścianie międzylokalowej na piętrze nie było wogóle puszek. Sam je później dodałem. Jak zrobił sąsiad to nie wiem.
Nie jestem już w stanie zweryfikować jakości spoin.
Natomiast chcę zaznaczyć że dźwięki te przenoszą się albo ścianami albo stropem. Dźwięki pochodzące rozmów zza sciany słyszę tylko wtedy gdy do sąsiada przyjedzie rodzina z dziećmi.
Re: Dom jednorodzinny dwulokalowy problem z akustyką
Czy ściana międzylokalowa zastoła wymurowana do samego dachu?
Czy możesz opisać jak wygląda poddasze lub wstawić zdjęcie poddasza?
Jak wykonano sufit nad pierwszym piętrem?
Czy możesz opisać jak wygląda poddasze lub wstawić zdjęcie poddasza?
Jak wykonano sufit nad pierwszym piętrem?
-
HenekSiewarga
- Początkujący

- Posty: 6
- Rejestracja: 09 sie 2021, 12:45
Re: Dom jednorodzinny dwulokalowy problem z akustyką
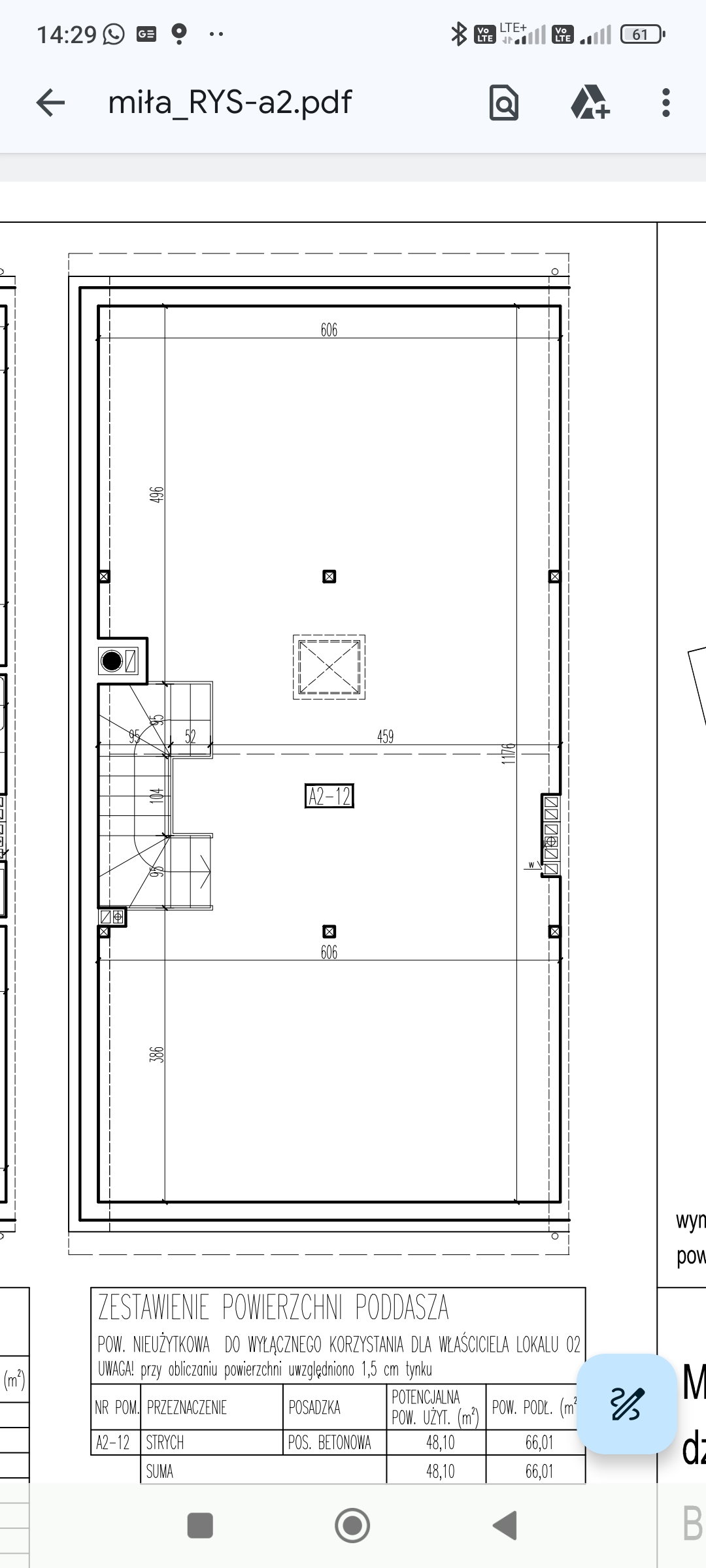
Rzut poddasza w załączeniu.Om3k pisze:Czy ściana międzylokalowa zastoła wymurowana do samego dachu?
Czy możesz opisać jak wygląda poddasze lub wstawić zdjęcie poddasza?
Jak wykonano sufit nad pierwszym piętrem?
Samo poddasze jest póki co graciarnią rzeczy, zrobiłem ocieplenie plus skosy, ściany pomalowane plus elektryka i tyle.
Ściana miedzylokalowa wybudowana do samego dachu. Coś pamiętam że szczyt tej ściany został dokończony nie z silikatu tylko z betonu komórkowego.
Nie mam tam podłogi, sama posadzka.
Sufit nad pierwszym piętrem to ok 16-17 cm stropu żelbetowego, warstwa styropianu ok 4-5 cm i ok 6 cm wylewki.
Re: Dom jednorodzinny dwulokalowy problem z akustyką
Umeblowanie pustego mieszkania, montaż mebli w zabudowie, zawieszenie firanek, zasłon, położenie wykładzin dywanowych, a więc materiałów pochłaniających dźwięki, powinno poprawić komfort akustyczny.
-
HenekSiewarga
- Początkujący

- Posty: 6
- Rejestracja: 09 sie 2021, 12:45
Re: Dom jednorodzinny dwulokalowy problem z akustyką
Problem polega na tym że ja mieszkanie mam prawie umeblowane, no może poza jednym pokojem.
Dzisiaj natomiast zauważylem jedna rzecz. Gdy przyłoży się głowę do ściany w mojej łazience to jeszcze bardziej słuchać co się dzieje w łazience sąsiada. Więc to tak jakby te dźwięki przenosiły się ścianami.
Czy gdybym porozwieszał na ścianach obrazy z korka akustycznego to to coś zmieni ? Jakoś wchłonie te dźwięki.
Dzisiaj natomiast zauważylem jedna rzecz. Gdy przyłoży się głowę do ściany w mojej łazience to jeszcze bardziej słuchać co się dzieje w łazience sąsiada. Więc to tak jakby te dźwięki przenosiły się ścianami.
Czy gdybym porozwieszał na ścianach obrazy z korka akustycznego to to coś zmieni ? Jakoś wchłonie te dźwięki.
