Ślad wyciekającej wody z instalacji na korytarzu
Moderator: Redakcja e-instalacje.pl
Ślad wyciekającej wody z instalacji na korytarzu
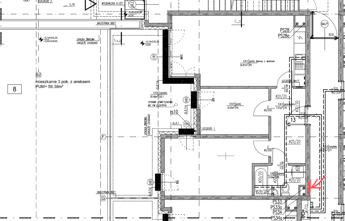
Dzień dobry wszystkim. Bardzo prosiłbym i poradę: otóż, miesiąc temu rozpocząłem wykańczanie mieszkania ze stanu deweloperskiego. Na pierwszy ogień poszła łazienka, przerobione zostały 2 punkty wody: odpływ i dopływy do umywalki zostały wyklute w żelbeton, oraz punkt dopływu wannowego został podniesiony do 120cm na prysznic. Na klatce (ciężko mi powiedzieć kiedy dokładnie) pojawił się ślad wyciekającej w ścianie wody. Zaraz przy skrzynce z zaworami i wodomierzami. Wygląda na to, że rury ze skrzynki wchodzą w ścianę, a następnie podłoga do mieszkania. Ślad widoczny jest na odcinku zanim rury wchodzą w podłogę. Sprawa zgłoszona do dewelopera, ale ten zaczyna już zrzucać odpowiedzialność na mnie, za przerobienie instalacji. Czy to możliwe, że wyciek spowodowany był pracami w łazience? Ślad jest dość wysoko- jak woda z mojej łazienki cofnęła by się podłogą do miejsca gdzie rury są wyżej... inżynier budowy napisał, że jemu wyciek wyglada już na suchy i że to mogła być jakaś jednorazowa historia przy wykańczaniu. W załączniku dodaje zdjęcia. Z góry dziękuję bardzo za każdą pomoc
Re: Ślad wyciekającej wody z instalacji na korytarzu
Na rzucie wskazujesz ścianę, za którą są piony kanalizacyjne i zapewne zaciek jest z pietra wyżej.
Od rur w szafce nic nie powinno wchodzić w ścianę mieszkania.
Piony zw, cw i c.o. są poza lokalem a podłączenia na lokal idą w podłożu pod posadzkami: korytarz klatki schodowej, pod drzwiami wejściowymi a potem na lewo łazienka, na prawo kuchnia.
Zimna woda i ciepła jest zaznaczona, brak rozprowadzenia c.o. ???
Mam nadzieję, że rzemieślnicy wykonali odpowiednie spadki kanalizacji i podejście pod WC jest na prawidłowej wysokości.
Od rur w szafce nic nie powinno wchodzić w ścianę mieszkania.
Piony zw, cw i c.o. są poza lokalem a podłączenia na lokal idą w podłożu pod posadzkami: korytarz klatki schodowej, pod drzwiami wejściowymi a potem na lewo łazienka, na prawo kuchnia.
Zimna woda i ciepła jest zaznaczona, brak rozprowadzenia c.o. ???
Mam nadzieję, że rzemieślnicy wykonali odpowiednie spadki kanalizacji i podejście pod WC jest na prawidłowej wysokości.
Re: Ślad wyciekającej wody z instalacji na korytarzu
Centralne również jest poprowadzone korytarzem (inny rzut). Dziękuję bardzo za pomoc, ściana będzie pod obserwacją, póki co jest sucha

