mam parę pytań, w sprawie podłogówki i ogrzewania Pompą Ciepła
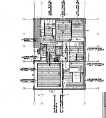
Dom A
1) Załącznik -> taki zrzut dostaliśmy od jednego z deweloperów, czy tak położona podłogówka jest ok? Gdzieś tu na forum czytałem o zagęszczeniach przy wyjściach na taras, a tu nic takiego nie widzę.
Dom B
2) Dziwnie położona podłogówka? Nie wiem, deweloper nie umie się określić, ale w salonie i łazienkach jest podłogówka, a w pokojach wyjścia na grzejniki no i w porównaniu do Domu A nie ma nic w garażu. Deweloper nie ma też zdjęć, ani nic jak przechodziła podłogówka.
Czy takie rozbicie ogrzewania to dobry pomysł? Czy raczej poszli na łatwiznę.
Warto iść w dom, bez rzutów i zdjęć jak pociągnięta jest podłogówka?
Z góry dziękuję za pomoc i odpowiedzi, oraz ewentualne podpowiedzi
