Dzień dobry,
jestem na etapie gruntownej modernizacji domku. Był to drewniany domek postawiony 40 lat temu, z izolacją trocinami i tego typu wymysłami. Po modernizacji domek będzie całoroczny (lekko go rozbudowuje, zmieniam porycie dachu, izoluje, ale nadal będzie to domek drewniany). Pojawił się bardzo ważny temat ogrzewania. Dotychczas sprawa była jasna, bo wybór padł na:
1. Piec kaflowy w kuchni (ogrzanie kuchni)
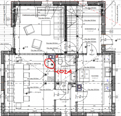
2. Koza w salonie (jak na rysunku poniżej)
3. grzejniki na podczerwień (salon + 3 pokoje na piętrze).
Z tego co zacząłem pytać, grzejniki na podczerwień nie ogrzeją efektywnie domku (to jest tylko opinia). Korzystając z wyliczeń (moc 40W na każde m2) wybrałem 2 grzejniki o mocy 700W do salonu i po jednym takim w każdym pokoju.
Jakie mam zagwozdki:
1. Czy takie ogrzewanie będzie efektywne (zakładając sprawnie działającą koze + piec kaflowy w kuchni)? Czyli czy będzie ciepło?
2. Czy będzie efektywne kosztowo?
3. Jest możliwość zamiany kozy na wkład kominkowy (+ ewentualne rozprowadzenie ciepła po domu). Nie przekonuje mnie to rozprowadzenie, bo rury zwyczajnie wyglądają źle.
4. Elektryczne ogrzewanie podłogowe? Czy brać to pod uwagę? Na podłodze będą deski/panele drewniane, więc czy taka forma będzie efektywna?
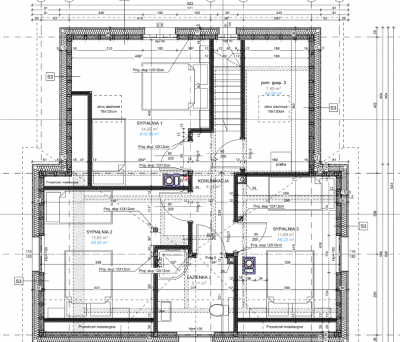
W załączniku umieszczam dwa rzuty:
1. Domek dół (z zaznaczoną kozą)
2. Domek góra.
Z góry dziękuję za sugestie.
Ogrzewanie domku całorocznego
Moderator: Redakcja e-instalacje.pl
-
JasioCebulak
- Początkujący

- Posty: 1
- Rejestracja: 08 lis 2024, 10:45
-
Justyna Kukwa
- Początkujący

- Posty: 3
- Rejestracja: 19 lis 2024, 16:47
Re: Ogrzewanie domku całorocznego
Kominek/ piec wstaw koniecznie jako dodatkowe/ awaryjne źródło ciepła. Wszystkie urządzenia sprzedawane obecnie na rynku spełniają normy EKOPROJEKTU, więc można w nich spokojnie palić.
Re: Ogrzewanie domku całorocznego
Każdy dom i jego mieszkańcy mają inne potrzeby, dlatego warto dokładnie przeanalizować dostępne opcje i wybrać najlepsze rozwiązanie dostosowane do indywidualnych warunków. Niezależnie od wyboru, warto również inwestować w odpowiednią izolację budynku, która pomoże zmniejszyć straty ciepła i obniżyć koszty ogrzewania.
Re: Ogrzewanie domku całorocznego
Kotły elektryczne cieszą się coraz większą popularnością ze względu na ich liczne zalety. Brak emisji spalin sprawia, że kotły elektryczne są przyjazne dla środowiska, nie ma konieczności składowania paliwa ani przeprowadzania skomplikowanych konserwacji. Dla mnie zalety są oczywiste.