Witam
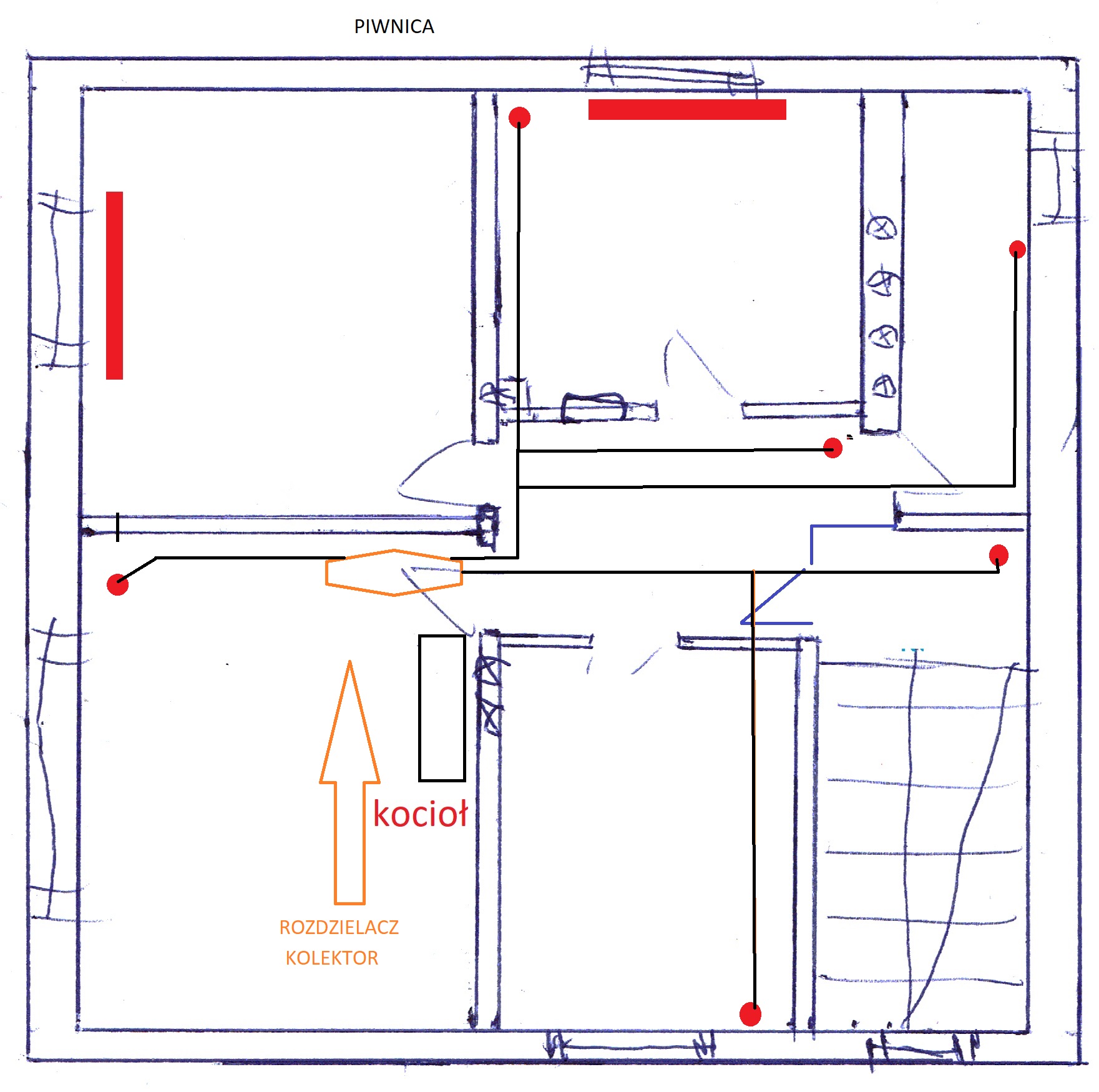
w domu jest stara (bardzo stara instalacja CO zasilana kotłem węglowym. Powoli chcę to wymieniać ale wymiana wszystkiego na raz nie przejdzie w moim przypadku dlatego zaczynam od grzejników i rur. Układ jest jak w załączniku, są trzy poziomy tj, piwnica gdzie jest kocioł (wysokość 1,7m) parter (wysokość 2,7m) i piętro (wysokość 2,6m). Każda kondygnacja ma taki sam układ tyle że w piwnicy nie ma grzejników. Na rysunku podałem obecne średnice zewnętrzne rur i na ile znalazłem średnice wew. w calach. Piony również są opisane te co idą w górę i w dół. Moje pytanie dotyczy rur bo mam zamiar je zmienić na PP lub pex jak dobrać średnicę. Czy też może ktoś podać dokładnie jakie stosować średnicę??
Jak dobrać średnice rur
Informacje na temat instalacji grzewczych, ogrzewania domu, kotłów CO. Dowiedz się jak ogrzać mieszkanie i jakie wybrać instalacje grzewcze aby rachunki nas nie zaskoczyły.
Moderator: Redakcja e-instalacje.pl
Wróć do „Instalacje grzewcze i ogrzewanie domu”
Przejdź do
- PORADY EKSPERTÓW
- ↳ Dachy i elewacje Blachy Pruszyński
- ↳ Ekspertyzy budowlane i opinie techniczne
- ↳ Aranżacje wnętrz
- ↳ Projekty domów jednorodzinnych
- ARANŻACJA WNĘTRZA
- ↳ Kuchnie
- ↳ Łazienki
- ↳ Salon / Pokój dzienny
- ↳ Sypialnie
- ↳ Pokoje dziecięce, pokoje młodzieżowe
- ↳ Wnętrza na poddaszu
- ↳ Pomieszczenia inne
- ↳ Ogrody, balkony i tarasy
- ↳ Podłogi
- ↳ Ściany elewacje fasady
- ↳ Oświetlenie wnętrz
- ↳ Dekoracja wnętrz
- ↳ Sprzęt RTV i AGD
- INSTALACJE BUDOWLANE
- ↳ Instalacje wodne
- ↳ Kanalizacja i odwodnienia
- ↳ Wentylacja i klimatyzacja
- ↳ Instalacje gazowe
- ↳ Instalacje grzewcze i ogrzewanie domu
- ↳ Instalacje elektryczne
- ↳ Kolektory słoneczne
- ↳ Instalacje fotowoltaiczne i panele słoneczne
- ↳ Dom inteligentny, dom bezpieczny
- ↳ Odkurzacze centralne
- DACH I PODDASZE
- ↳ Więźba dachowa
- ↳ Impregnacja drewna, impregnacja więźby dachowej
- ↳ Pokrycia dachowe
- ↳ Azbest na dachu
- ↳ Obróbki blacharskie
- ↳ Okna dachowe
- ↳ Rynny
- ↳ Kominy, Systemy kominowe
- ↳ Poddasze
- ↳ Akcesoria dachowe
- ↳ Narzędzia dekarskie, narzędzia budowlane
- IZOLACJE BUDOWLANE
- ↳ Fundamenty
- ↳ Stropy
- ↳ Certyfikaty energetyczne
- ↳ Ściany
- ↳ Ocieplenie skalną wełną mineralną
- ↳ Dachy
- ↳ Chemia budowlana
- ↳ Okna i drzwi
- ↳ Bramy garażowe
- ↳ Izolacje termiczne i akustyczne
- ↳ Hydroizolacje
- ↳ Izolacje techniczne
- ↳ Docieplanie budynków
- ↳ Dom energooszczędny i dom pasywny
- ↳ Materiały uszczelniające
- ↳ Osuszanie budynków - wilgoć i grzyb na ścianach
- BUDOWA DOMU
- ↳ Zdjęcia z budowy domu
- ↳ Ceny materiałów budowlanych
- ↳ Domy Drewniane
- ↳ ADD Autonomiczny Dom Dostępny
- ↳ Dziennik budowy - budowa dzień po dniu
- ↳ Prawo budowlane
- ↳ Opinie o deweloperach
- ↳ Lista płac wykonawców budowlanych
- ↳ Porozmawiajmy o wykonawcach
- ↳ Błędy budowlane
- ↳ Kryzys w budownictwie - spostrzeżenia, uwagi
- ↳ Ile kosztuje budowa domu, remont domu
- ↳ Materiały budowlane - opinie
- ↳ Materiały wykończeniowe - opinie
- ↳ Inne - najróżniejsze problemy, pytania ...
- ↳ Zrób to sam - rozwiązania własne
- ↳ Baseny i zadaszenia basenów
- ↳ Ogrodzenia
- ↳ Drobne ogłoszenia - posiadam niepotrzebne, szukam, zlecę, sprzedam, kupię
- FORUM
- ↳ Uwagi o naszym Forum
