Witam.
Kończę remont i wprowadzam się do niewielkiego mieszkania z ogrzewaniem gazowym.
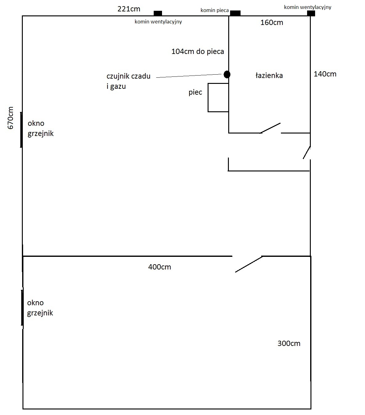
Mieszkanie ma 38m^2, salon połączony z kuchnią i sypialnia. Piec z otwartą komorą spalania znajduje się w kuchni.
Chciałbym żebyście mi pomogli dobrać wentylację, tzn jakie nawiewniki zastosować i w jakiej ilości. Wygląda to mniej więcej tak jak na zdjęciu niżej.
Czy wystarczy czujnik czadu umieszczony na ścianie obok pieca ok 40 cm od sufitu? (jak na zdjęciu)
Myślę, żeby jescze gdzieś umieścić jeden czujnik dla pewności, tylko czy lepiej na tej ścianie przy wejściu do sypialni, czy też w samej sypialni?
Co do wentylacji- jakie nawiewniki okienne zastosować przy tak niewielkim mieszkaniu z piecem gazowym?
Oczywiście, że będzie jeszcze robiony projekt instalacji gazowej, ale wolę poczytać i się dowiedzieć dokładniej samemu jak ma to wyglądać prawidłowo
pozdrawiam
Wentylacja mieszkania z ogrzewaniem gazowym
Moderator: Redakcja e-instalacje.pl
-
Tomasz_Brzeczkowski
- Superużytkownik

- Posty: 24712
- Rejestracja: 16 mar 2006, 13:07
- Lokalizacja: Warszawa
Re: Wentylacja mieszkania z ogrzewaniem gazowym
Ogrzewanie klimatyzacją wyjdzie kilka razy taniej, W tak małym mieszkaniu to 3 do 5 razy.
Oczywiście pod warunkiem zrobienia wentylacji z odzyskiem ciepła.
Sporo taniej, bez kłopotów i ryzyka i komfort cały rok.
https://www.youtube.com/watch?v=MsYiHHH7lb4
Oczywiście pod warunkiem zrobienia wentylacji z odzyskiem ciepła.
Sporo taniej, bez kłopotów i ryzyka i komfort cały rok.
https://www.youtube.com/watch?v=MsYiHHH7lb4
rekuperacja od 1989r
Re: Wentylacja mieszkania z ogrzewaniem gazowym
dziękuję za odpowiedź, ale nie chcę już nić zmieniać w tym mieszkaniu. Ja tam nie mam zamiaru długo mieszkać (do kilku lat), a mieszkanie jest już praktycznie wykończone, piec był już zamontowany. Jest to piec dwufunkcyjny więc grzejniki i woda na gaz..
Zdaję sobie sprawę, że to nie jest najlepsze rozwiązanie, ale jak pisałem chcę to wykończyć tak jak jest i czuć się przy tym przede wszystkim bezpiecznie
Zdaję sobie sprawę, że to nie jest najlepsze rozwiązanie, ale jak pisałem chcę to wykończyć tak jak jest i czuć się przy tym przede wszystkim bezpiecznie
-
Tomasz_Brzeczkowski
- Superużytkownik

- Posty: 24712
- Rejestracja: 16 mar 2006, 13:07
- Lokalizacja: Warszawa
Re: Wentylacja mieszkania z ogrzewaniem gazowym
Zrobi Pan sobie masakrę.
Kociołek biorąc powietrze z mieszkania będzie działał jak "generator" im więcej grzeje, tym więcej wchodzi zimnego powietrza, więc musi grzać...
Kolejna sprawa, ciepłe powietrze jest wyrzucane, przez dziury w stropie, a zimne, nawiewane oknami wychładza pokoje. Jak jeszcze jakiś niedouczony zainstalował Panu grzejniki pod oknem ( grzejniki montuje się na ścianach działowych, tak by dążąc do wyrównania temperatury grzały pokój, a nie ciepło wyrzucały bezpośrednio przez ścianę szczytową i okno) to będzie masakra cenowa. . Instalatorzy gazowego z definicji są źle wykształceni, więc jest też bardzo prawdopodobne, że ma Pan w łazience grzejnik konwekcyjny lub tzw drabinkę, a te się do łazienki nie nadają, bo tam jest wentylacja z dołu do góry i ogrzać powietrza w strefie przebywania ludzi nie mają prawa.
Kolejna sprawa to urządzenie. Panu potrzeba kocioł 2 kW z modulacją, a takich nie ma.
- Opłaty roczne nie powinny w takim mieszkaniu przekraczać 500 zł!
Rachunki z mieszkania 55m2 wszystko ( światło, ogrzewanie , klimatyzacja , wentylacja , kuchnia i woda )
PODSTAWĄ INSTALACJI GRZEWCZEJ JEST WENTYLACJA Z ODZYSKIEM CIEPŁA.
W roku 2021 wchodzi Ep (75kWh/m2) a to oznacza, że by ogrzewać gazem, musiałby się Pan zmieścić w 230m3 rocznie!
Kociołek biorąc powietrze z mieszkania będzie działał jak "generator" im więcej grzeje, tym więcej wchodzi zimnego powietrza, więc musi grzać...
Kolejna sprawa, ciepłe powietrze jest wyrzucane, przez dziury w stropie, a zimne, nawiewane oknami wychładza pokoje. Jak jeszcze jakiś niedouczony zainstalował Panu grzejniki pod oknem ( grzejniki montuje się na ścianach działowych, tak by dążąc do wyrównania temperatury grzały pokój, a nie ciepło wyrzucały bezpośrednio przez ścianę szczytową i okno) to będzie masakra cenowa. . Instalatorzy gazowego z definicji są źle wykształceni, więc jest też bardzo prawdopodobne, że ma Pan w łazience grzejnik konwekcyjny lub tzw drabinkę, a te się do łazienki nie nadają, bo tam jest wentylacja z dołu do góry i ogrzać powietrza w strefie przebywania ludzi nie mają prawa.
Kolejna sprawa to urządzenie. Panu potrzeba kocioł 2 kW z modulacją, a takich nie ma.
- Opłaty roczne nie powinny w takim mieszkaniu przekraczać 500 zł!
Rachunki z mieszkania 55m2 wszystko ( światło, ogrzewanie , klimatyzacja , wentylacja , kuchnia i woda )
PODSTAWĄ INSTALACJI GRZEWCZEJ JEST WENTYLACJA Z ODZYSKIEM CIEPŁA.
W roku 2021 wchodzi Ep (75kWh/m2) a to oznacza, że by ogrzewać gazem, musiałby się Pan zmieścić w 230m3 rocznie!
rekuperacja od 1989r
