Zbrojenie stropu typu filigran
Moderator: Redakcja e-mieszkanie.pl
Zbrojenie stropu typu filigran
Witam, jutro ekipa ma wykonać zbrojenie stropu filigran. W projekcie jaki dostałem jest napisane że zbrojenie dolne układać bezpośrednio na płytach, fachowiec który jak mówi kład już dziesiątki stropów typ filigran chce dać 2 cm dystanse pod dolne zbrojenie. Czy fachowiec ma rację? Mój kierownik budowy jest obecnie na l4 w szpitalu więc wolę sam ich przypilnować żeby później jak kierownik wyzdrowieje i zobaczy co oni zrobili nie musieli od nowa kłaść zbrojenia, bo szkoda mi czasu. Mam jeszcze pytanie jak powinno się wykonać zbrojenie styków między płytami? Rozumiem że zbrojenie górne jest nad kratownica stalową a dolne zbrojenie pod nią.
Re: Zbrojenie stropu typu filigran
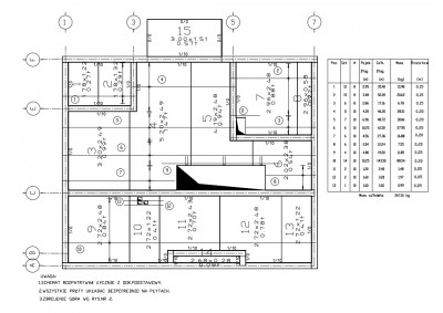
Dodatkowe zbrojenie dolne (poprzeczne do płyt) należy kłaść na szorstkiej powierzchni prefabrykowanych płyt filigran. Należy zwrócić uwagę żeby pod zbrojeniem poprzecznym nie leżały siatki zbrojeniowe styku prefabrykatów.
Jeśli pod dodatkowe zbrojenie dolne poprzeczne do płyt filigran, wykonawca zastosuje podkładki dystansowe wysokości 2 cm, to spowoduje to obniżenie nośności stropu*.
Jeśli wykonawca ma wątpliwości w tym zakresie to pilnie skontaktuj się z projektantem stropu/producentem.
W miejscach, w których nie ma zaprojektowanego dodatkowe zbrojenia poprzecznego dolnego, układa się zbrojenie styków płyt w formie gotowych siatek lub prętów.
Górne zbrojenie montuje się nad kratownicami. W taki sposób aby betonowa otulina górnych prętów wynosiła 2 cm. Pamiętaj też o prętach rozdzielczych górą (nie są ujęte w zestawieniu stali) średnicy 8 mm w rozstawie co 25 cm.
* - zmniejszenie ramienia sił wewnętrznych ze względu na zwiększenie (C+20mm) grubości otuliny dolnej.
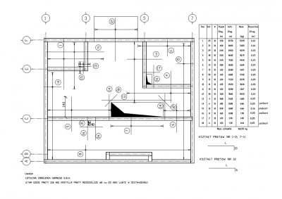
Jeśli pod dodatkowe zbrojenie dolne poprzeczne do płyt filigran, wykonawca zastosuje podkładki dystansowe wysokości 2 cm, to spowoduje to obniżenie nośności stropu*.
Jeśli wykonawca ma wątpliwości w tym zakresie to pilnie skontaktuj się z projektantem stropu/producentem.
W miejscach, w których nie ma zaprojektowanego dodatkowe zbrojenia poprzecznego dolnego, układa się zbrojenie styków płyt w formie gotowych siatek lub prętów.
Górne zbrojenie montuje się nad kratownicami. W taki sposób aby betonowa otulina górnych prętów wynosiła 2 cm. Pamiętaj też o prętach rozdzielczych górą (nie są ujęte w zestawieniu stali) średnicy 8 mm w rozstawie co 25 cm.
* - zmniejszenie ramienia sił wewnętrznych ze względu na zwiększenie (C+20mm) grubości otuliny dolnej.

