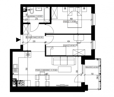
Naniesienie zmian na rysunku w celu przekazania wykonawcom.

Szukasz pomysłów na oryginalne rozwiązania lub masz nietypowe pytania dotyczące budowy albo wykończenia domu? Tu znajdziesz radę i podpowiedzi.

Moderator: Redakcja e-mieszkanie.pl

wolas99
Początkujący
Początkujący
Posty: 1
Rejestracja: 05 mar 2022, 22:44

Naniesienie zmian na rysunku w celu przekazania wykonawcom.

Post autor: wolas99 »

Witam,
Prośba o pomoc w wykonaniu zmian na rysunku dla dewelopera. Chodzi o zmianę dotyczącą łazienki - prysznic zamiast wanny oraz naniesienie informacji dotyczącej zamontowania rolet zewnętrznych sterowanych elektrycznie na wszystkich oknach.
Załączniki
Rysunek
Rysunek

ODPOWIEDZ

Wróć do „Inne - najróżniejsze problemy, pytania ...”