Szukam architekta Dom - 2 ściany nośne

Koszt budowy domu lub remontu to często najważniejsza kwestia, decydująca o rozpoczęciu prac, wyborze technologii lub wykonawcy. W tym dziale uzyskasz odpowiedzi na pytania dotyczące realnych kosztów budowy, rady jak zaoszczędzić i jak budować z określonym budżetem.

Moderator: Redakcja e-mieszkanie.pl

robert_m
Początkujący
Początkujący
Posty: 3
Rejestracja: 02 sie 2016, 10:24

Szukam architekta Dom - 2 ściany nośne

Post autor: robert_m »

Witam,

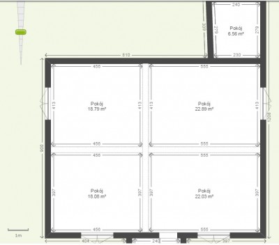
Posiadam dom z 1965r. o wymiarach: 9mx11m, oraz jest dobudowane pomieszczenie z tyłu domu 3x3, wysokość stropu w pomieszczeniach ok.2,80m. Dom posiada strop Kleina, o rozstawieniu belek co 1,20m na całej długości domu ( 9m długość belek ) oraz dwie ściany nośne. Chciałbym dom wyremontować i zrobić użytkowe poddasze. Mam kilka pytań odnośnie zarysu pomieszczeń, gdzie można je usytuować, zrobić schody. Na dole chciałbym mieć 2 pokoje, kuchnie-jadalnie połączoną z salonem oraz łazienkę, wc i kotłownię na paliwo stałe ( węgiel, drewno ). Sam próbuję coś naszkicować, ale bardzo ciężko mi wychodzi np. zaprojektować schody, które muszą? być ukierunkowane wzdłuż belek, ponieważ nie wolno ich przecinać?. Rozmieszczenie pokoii, nie umiem znaleść w takim metrarzu 2 sypialni na dole.... Przekrój domu zamieszczam niżej, oraz moj projekt, który jest najsensowniejszy ale nie wiem czy dobrze wykonany.Schody lekkie, podciągi na ścianach nośnych, pod schodami wejście do kuchni, tam już musi być 2m na schodach.... Schody tak są narysowane, żeby zmieściły się między belkami ( rozpiętość belek 1,20 ) schody szer. ok 75cm.... Szukam Architekta, który mógłby mi pomóc odpłatnie. Dziękuję z góry za pomoc i pomysły.... Pozdrawiam!
Załączniki
9x11.jpg
MOJ PROJEKT.jpg

Jan_Kalita
Superużytkownik
Superużytkownik
Posty: 501
Rejestracja: 05 sie 2016, 14:45

Re: Szukam architekta Dom - 2 ściany nośne

Post autor: Jan_Kalita »

Przydałaby się jeszcze informacja z jakich okolic pan jest. Zmiana sposobu użytkowania poddasza nie użytkowego na mieszkalny wymaga pozwolenia na budowę. Co do schodów i innych części konstrukcyjnych będzie potrzebna ekspertyza techniczna wykonana przez uprawnionego konstruktora. Wszystko to co powyżej wymaga wizji lokalnej na budowie. I trochę głupio by było żeby architekt zachodniopomorskiego przyjeżdżał na przykład na Śląsk. Pozdrawiam.

http://www.architektura.info/index.php/ ... ne_budynki

Schody np powinny mieć szerokość biegu minimum 80 cm (liczy się samo światło, po odjęciu balustrady).
Kolejna rzecz to kotłownia. Budynek stoi na terenie miasta czy wsi? Na terenie niektórych miast nie wolno budować nowych kotłowni na paliwo stałe. Tak czy siak będzie potrzebny plan miejscowy lub warunki zabudowy. Do tego architekta na szczęście nie potrzeba, ale w wypadku warunków zabudowy będzie potrzebna inwentaryzacja i podanie dokładnej kubatury, wysokości budynku, powierzchni zabudowy i wrysowanie lokalizacji budynku na mapce zasadniczej.

Innymi słowy - zanim Pan się zabierze za pokoje to jeszcze długa droga.

robert_m
Początkujący
Początkujący
Posty: 3
Rejestracja: 02 sie 2016, 10:24

Re: Szukam architekta Dom - 2 ściany nośne

Post autor: robert_m »

Witam, wszystko rozumiem, co Pan napisał, ale pomijając to wszystko, chciałbym, żeby architekt/ projekt mniej więcej rozrysował, gdzie mogą być pomieszczenia. Nie chce fatygować kogoś setki kilometrów do mnie, po prostu chciałbym suchy projekt pomieszczeń jaki np. zrobiłem ja. Nie potrzebuje planów, gdzie ma być położona elektryka, hydraulika itd. Dzięki za wyrozumiałość i pozdrawiam.

Jan_Kalita
Superużytkownik
Superużytkownik
Posty: 501
Rejestracja: 05 sie 2016, 14:45

Re: Szukam architekta Dom - 2 ściany nośne

Post autor: Jan_Kalita »

Proszę w takim razie wysłać do mnie na maila (jest w podpisie) swoje rysunki jeżeli da radę w większym rozmiarze/rozdzielczości. Zapoznam się dokładniej z tematem i dam znać.

madzia1995
Początkujący
Początkujący
Posty: 14
Rejestracja: 07 cze 2016, 13:36

Re: Szukam architekta Dom - 2 ściany nośne

Post autor: madzia1995 »

a z jakiego regionu Pan jest?

catty
Początkujący
Początkujący
Posty: 21
Rejestracja: 21 sie 2016, 11:42

Re: Szukam architekta Dom - 2 ściany nośne

Post autor: catty »

Ja Ci mogę wskazać biuro architektoniczne, które pomogło mi z podobnym problemem. Tutaj masz adres - http://rau-architekci.pl/ . Państwo są z Łodzi, ale z tego co wiem świadczą także niektóre usługi zdalnie (np. projekty koncepcyjne), więc może nie zaszkodzi napisać maila lub zadzwonić. Pozdrawiam.

SeaGroove
Początkujący
Początkujący
Posty: 10
Rejestracja: 24 lis 2017, 3:28

Re: Szukam architekta Dom - 2 ściany nośne

Post autor: SeaGroove »

Może oni? http://ecoreadyhouse.com/pl Strona wygląda profesjonalnie, portfolio świetnie się prezentuje... Myślę, że w czasach, kiedy mamy tyle możliwości, warto stawiać na najlepszych i nie oszczędzać na projekcie swojego wymarzonego domku. :)

ODPOWIEDZ

Wróć do „Ile kosztuje budowa domu, remont domu”