Stoimy przed decyzją wyboru mieszkania, właściwie to już prawie podjęliśmy decyzję na tak, ale mam coraz poważniejsze obawy co do funkcjonalności i rozkładu mieszkania, totalnie nie wiem w tym momencie co zrobić i boję się, że będę żałować, dlatego baaaardzo bardzo będę wdzięczna za jakiekolwiek komentarze/rady/pomoc dotyczącą poniższego mieszkania, bo czasu na decyzje coraz mniej, a mam wrażenie, że jeszcze trochę i oszaleję
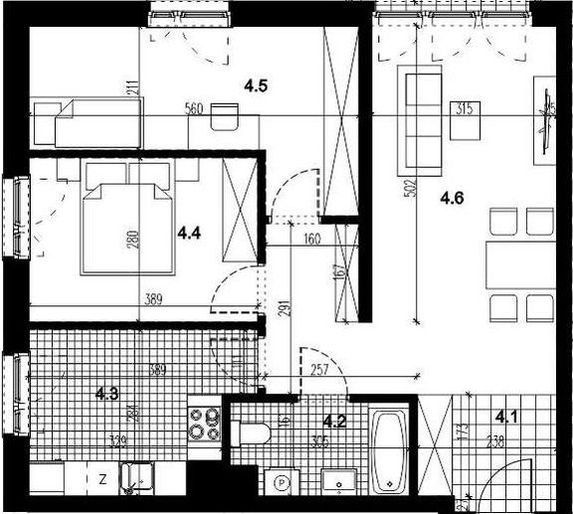
Moje główne obawy, to rozkłąd mieszkania, niby 69 m, a mam wrażenie, że każde z pomieszczeń potencjalnie problematyczne.
1. Kuchnia, niby duża, ale główny problem, to okna, dłuższe niż standardowe, odpada opcja z blatem pod oknem. Niby spore pomieszczenie, a okazuje się że może być problem z wystarczającą ilością blatu roboczego.
2. Oba pokoje niby spore, ale ten większe jest bardzo wąski, nie zmieści się ta raczej łóżko sypialne, a chcielibyśmy zrobić go sypialnią, bo pracuje z domu i potrzebuje biurka, a w drugim szerszym pokoju, po wstawieniu łóżka sypialnego, nie dość że dużo szafa mniejsza, to może być problem z wstawieniem biurka.
3. Salon bardzo wąski, trochę wagon, za dużo się tam nie zmieści...
Wszelki komentarze będą dla mnie bardzo cenne, bo zaczynam coraz bardziej się stresować czy nie będzie to problematyczne mieszkanie. A jest na razie na etapie dziury w ziemi, więc jeszcze trochę to potrwa no i nie ma opcji, żeby wejść i zobaczyć jak się czuje w tej przestrzeni..
Z góry dziękuję za pomoc!
