Aranżacja mieszkania 56m2
Aranżacja mieszkania 56m2
Witam,
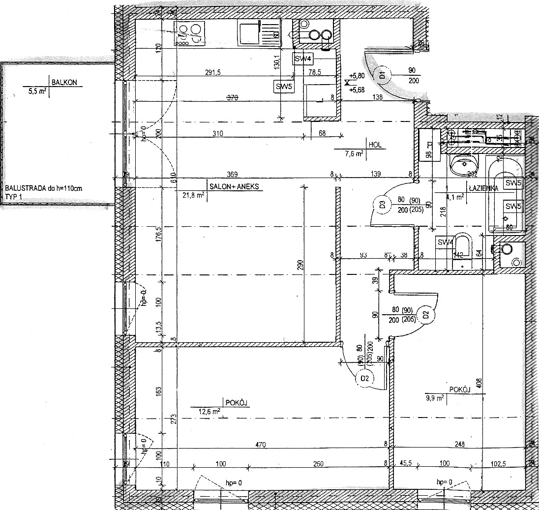
Proszę o pomoc przy aranżacji mieszkania. Budynek dopiero zaczyna być budowany więc mam możliwość własnej aranżacji przestrzeni, wszystkie ściany są ścianami działowymi i można je przestawić.
Zależy mi na dużej kuchni (bardziej niż na salonie) oraz na wyspie/ półwyspie i dużej ilości szafek (ewentualnie stół).
Oraz jak urządzić mniejsza sypialnię aby zmieściło się łóżko małżeńskie i szafa.
Proszę o Wasze pomysły.
Proszę o pomoc przy aranżacji mieszkania. Budynek dopiero zaczyna być budowany więc mam możliwość własnej aranżacji przestrzeni, wszystkie ściany są ścianami działowymi i można je przestawić.
Zależy mi na dużej kuchni (bardziej niż na salonie) oraz na wyspie/ półwyspie i dużej ilości szafek (ewentualnie stół).
Oraz jak urządzić mniejsza sypialnię aby zmieściło się łóżko małżeńskie i szafa.
Proszę o Wasze pomysły.
Re: Aranżacja mieszkania 56m2
Pierwsze co przychodzi na myśl:
Półwysep od strony salony z krzesłami. Dodatkowy stół nie wejdzie - chyba że tylko stół.
Ściana dzieląca salon z holem do usunięcia - to optycznie powiększy mieszkanie.
W to miejsca można wstawić (jeśli zajdzie potrzeba ścianę/regał z ikea http://www.ikea.com/pl/pl/catalog/categ ... ies/27534/
Gdy nie będzie ściany to drzwi do większej sypialni można przesunąć o 70cm w ten sposób powstanie miejsce na szafę w sypialni gł. 60cm - szafa na całą ścianę.
Łóżko w poprzek głową w kierunku salonu.
Zamiast likwidowania ściany między salonem a holem, można zrobić w innym miejscu wejście do salonu np. przy sypialniach. Wtedy w kuchni wejdzie więcej szafek obok lodówki bo powstanie ściana.
W kuchni układ jest dobry mam na myśli kolejność - lodówka>blat>zlew>blat>kuchnia>blat.
Mały pokój ma niefortunnie umiejscowione drzwi. Przydało by się żeby za drzwiami można było wstawić szafę lub płytszy regał.
Łazienka.
Można powiększyć szakt do szerokości wanny - wizualnie będzie lepiej.
Można spróbować przemeblować w celu uzyskania lepszej funkcjonalności.
W ścianie między łazienką a pokojem proponuje nie umieszczać żadnych rur bo będzie głośno w pokoju podczas napuszczania wody.
To jest tylko koncepcja wymagająca sprawdzenia i policzenia wymiarów czy wszystko będzie grało.
Półwysep od strony salony z krzesłami. Dodatkowy stół nie wejdzie - chyba że tylko stół.
Ściana dzieląca salon z holem do usunięcia - to optycznie powiększy mieszkanie.
W to miejsca można wstawić (jeśli zajdzie potrzeba ścianę/regał z ikea http://www.ikea.com/pl/pl/catalog/categ ... ies/27534/
Gdy nie będzie ściany to drzwi do większej sypialni można przesunąć o 70cm w ten sposób powstanie miejsce na szafę w sypialni gł. 60cm - szafa na całą ścianę.
Łóżko w poprzek głową w kierunku salonu.
Zamiast likwidowania ściany między salonem a holem, można zrobić w innym miejscu wejście do salonu np. przy sypialniach. Wtedy w kuchni wejdzie więcej szafek obok lodówki bo powstanie ściana.
W kuchni układ jest dobry mam na myśli kolejność - lodówka>blat>zlew>blat>kuchnia>blat.
Mały pokój ma niefortunnie umiejscowione drzwi. Przydało by się żeby za drzwiami można było wstawić szafę lub płytszy regał.
Łazienka.
Można powiększyć szakt do szerokości wanny - wizualnie będzie lepiej.
Można spróbować przemeblować w celu uzyskania lepszej funkcjonalności.
W ścianie między łazienką a pokojem proponuje nie umieszczać żadnych rur bo będzie głośno w pokoju podczas napuszczania wody.
To jest tylko koncepcja wymagająca sprawdzenia i policzenia wymiarów czy wszystko będzie grało.
Re: Aranżacja mieszkania 56m2
Dziękuję bardzo za odpowiedz.
A jak będzie lepiej wyglądać, gdy półwysep będzie na wysokości końca balkonu czy w połowie?
i co myślisz o ustawieniu szafek od góry do dołu po lewej stornie kuchni, czyli pomiędzy szafkami pod ściana a półwyspem?
A jak będzie lepiej wyglądać, gdy półwysep będzie na wysokości końca balkonu czy w połowie?
i co myślisz o ustawieniu szafek od góry do dołu po lewej stornie kuchni, czyli pomiędzy szafkami pod ściana a półwyspem?
Re: Aranżacja mieszkania 56m2
Wygląd to rzecz gustu, i ciężko jest mi ocenić tylko na podstawie rysunków technicznych.
Ostateczne decyzje warto podjąć na miejscu, mając cały obraz przestrzeni przed oczami, na żywo.
Poza tym proponuję skupić uwagę przede wszystkim na wygodzie. Do wyglądu, jaki by nie był dosyć szybko się przyzwyczajamy, ale do niewygody ciężko przywyknąć. Nie wiem czy tak mają wszyscy ale rzeczy najbardziej lubię gdy są wygodne i poręczne.
Półwysep spróbował bym umieścić w jak najwygodniejszym położeniu. Wygląd postawił bym na drugim miejscu lub złapał kompromis z naciskiem na wygodę. Z ilością szafek kuchennych również bym nie przesadzał.
Zabudowa do sufitu robi przyciężkawe wrażenie. Białe szafki trochę niwelują przyciężkawą zabudowę, ale tylko trochę.
Oprócz dokładnego rozrysowania nowych pomysłów na kartce proponuję taśmą malarską lub w inny sposób zaznaczyć położenie kluczowych mebli na podłodze. To znacznie ułatwi ocenę zagospodarowania przestrzeni i zorientowanie się czy nie będzie gdzieś za wąsko.
Ostateczne decyzje warto podjąć na miejscu, mając cały obraz przestrzeni przed oczami, na żywo.
Poza tym proponuję skupić uwagę przede wszystkim na wygodzie. Do wyglądu, jaki by nie był dosyć szybko się przyzwyczajamy, ale do niewygody ciężko przywyknąć. Nie wiem czy tak mają wszyscy ale rzeczy najbardziej lubię gdy są wygodne i poręczne.
Półwysep spróbował bym umieścić w jak najwygodniejszym położeniu. Wygląd postawił bym na drugim miejscu lub złapał kompromis z naciskiem na wygodę. Z ilością szafek kuchennych również bym nie przesadzał.
Zabudowa do sufitu robi przyciężkawe wrażenie. Białe szafki trochę niwelują przyciężkawą zabudowę, ale tylko trochę.
Oprócz dokładnego rozrysowania nowych pomysłów na kartce proponuję taśmą malarską lub w inny sposób zaznaczyć położenie kluczowych mebli na podłodze. To znacznie ułatwi ocenę zagospodarowania przestrzeni i zorientowanie się czy nie będzie gdzieś za wąsko.
Re: Aranżacja mieszkania 56m2
Jeżeli będzie Ci czegoś brakować - mebli, dodatków lub innych rzeczy to polecam Ci zajrzeć na homlando.com - mają tam naprawdę bogaty asortyment, wybierzesz coś na pewno!
-
lideropinii
- Superużytkownik

- Posty: 1648
- Rejestracja: 03 kwie 2015, 18:26
Re: Aranżacja mieszkania 56m2
Dobrze zacząć aranżację od podstaw, czyli określenia mniej więcej budżetu jakim będziemy dysponować na wykończenie, od tego czy chcemy coś wykorzystać z tego co mamy, czy kupiliśmy wcześniej, od stylu i kolorystyki w jakich aranżacja ma być utrzymana, a potem dobry projektant i efekt końcowy musi być udany.
Pozdrawiamy, zespół Decoroom
Prawdziwe piękno kryje się we wnętrzu ...
Prawdziwe piękno kryje się we wnętrzu ...
Re: Aranżacja mieszkania 56m2
Jeśli chodzi o sypialnię to polecam zajrzeć na stronę mebli Forte. Mają spory wybór mebli właśnie do sypialnie, w różnych systemach meble mają różne wielkości więc wydaje mi się, że powinniście coś skomponować
Kwestia tego jaką kolorystykę lubicie, poniżej coś nowoczesnego do sypialni. Powodzenia!

Kwestia tego jaką kolorystykę lubicie, poniżej coś nowoczesnego do sypialni. Powodzenia!

Re: Aranżacja mieszkania 56m2
Przemyślałby tą wyspę w kuchni jeszcze raz bo nie zawsze jest ona funkcjonalna. Zrobiłem taką żonie w kuchni i na prawdę do dużego gotowania jest fajna, ale wada jest taka, że wszystko stoi na wierzchu.
Re: Aranżacja mieszkania 56m2
Rany wygląda to na prawdę dobrze, tylko zastanawia mnie jaki jest koszt takiej aranżacji ?
-
e-Rzecznik Śnieżka
- Superużytkownik

- Posty: 1227
- Rejestracja: 25 maja 2012, 8:26
- Kontakt:
Re: Aranżacja mieszkania 56m2
Taka propozycja aranżacji przestrzeni bez zmiany układu ścianek.
Pozdrawiam serdecznie,
E-rzecznik FFiL Śnieżka
E-rzecznik FFiL Śnieżka
-
Marcepan33
- Aktywny

- Posty: 114
- Rejestracja: 28 lis 2018, 12:18
Re: Aranżacja mieszkania 56m2
Myślę że warto popatrzeć na stronie 7kd.pl. Mają dużo dywanów w różnych stylizacjach, sporo typowo dziecięcych i młodzieżowych plus bardzo eleganckie do salonu biura czy sypialni. Chwalę sobie ten sklep, szybko robią dostawę, nie trzeba wcale jakiś super drogich zakupów robić żeby dostawa była za free.
-
marcinmalinka
- Aktywny

- Posty: 104
- Rejestracja: 11 lis 2018, 23:13
Re: Aranżacja mieszkania 56m2
Znam kogoś, kto na pewno jest w stanie dobrze doradzić również online -https://projektowaniewnetrz24.eu
-
lideropinii
- Superużytkownik

- Posty: 1648
- Rejestracja: 03 kwie 2015, 18:26
Re: Aranżacja mieszkania 56m2
Zamiast wyspy chyba lepiej tą przestrzeń w kuchni i w salonie rozdzielić stołem.
Pozdrawiamy, zespół Decoroom
Pozdrawiamy, zespół Decoroom
Pozdrawiamy, zespół Decoroom
Prawdziwe piękno kryje się we wnętrzu ...
Prawdziwe piękno kryje się we wnętrzu ...
Re: Aranżacja mieszkania 56m2
Myślę, że może Wam przydac sie również ten blog https://scandicsofa.pl/pl/n/list znajdziecie tu mnóstwo świetnych artykułów. W naszym przypadku okazał się bardzo pomocny, wiele porad i podpowiedzi wykorzystaliśmy przy aranżowaniu naszego mieszkania. Może i Wam się przydadzą takie wskazówki, a polecam również obejrzeć ich meble. My jesteśmy zadowolenie i to bardzo.
iza72
Re: Aranżacja mieszkania 56m2
Ciężko jest na własną rękę zaprojektować wnętrze tak, aby wyszło nam równie przytulnie co przestrzennie. Wiem po sobie, że w tego typu sprawach lepiej jest udać się do specjalistów. Wraz z żoną znaleźliśmy Pracownię Projektową Bozart. Tak bardzo spodobały nam się ich aranżacje, że postanowiliśmy skorzystać z ich pomocy. Zdecydowanie było warto . Rozkład naszego salonu zmienił się o 180 stopni, co wyszło mu na dobre. W pokoju pojawiło się więcej światła, a cały wystrój został dobrany kolorystycznie i tematycznie. Świetna robota!

